Objekt 4 von 14
Nächstes Objekt
Vorheriges Objekt
Zurück zur Übersicht
code
Zurück zur Übersicht
Nächstes Objekt
Vorheriges Objekt
Zurück zur ÜbersichtHéviz: (AAA) Fertighaus am Standort Ihrer Wahl für 1.250 € / m²
Objekt-Nr.: CM245
Schnellkontakt
Optionen
Optionen
Basisinformationen
Adresse:
8380 Héviz
Region:
Zala
Gebiet:
Wohngebiet
Preis:
125.000 €
Wohnfläche ca.:
100 m²
Grundstück ca.:
1.150 m²
Zimmeranzahl:
3
Weitere Informationen
Weitere Informationen
Haustyp:
Fertighaus
Etagenanzahl:
1
Provisionspflichtig:
ja
Provision:
2,54% des Kaufpreises zzgl. MwSt
Küche:
Einbauküche
Bad:
Dusche
Anzahl Schlafzimmer:
2
Anzahl Badezimmer:
1
Terrasse:
1
Seniorengerecht:
ja
Möbliert:
nein
Zustand:
Erstbezug
Heizung:
voll klimatisiert
Befeuerungsart:
Elektro, Wärmepumpe
Energietyp:
Niedrigenergie
Beschreibung
Beschreibung
Objektbeschreibung:
Fertighaus am Standort Ihrer Wahl – schlüsselfertig ab 1.250 €/m² mit Wärmepumpe, Fußbodenheizung & Solarmodulen (Obj.-Nr. CM245)
Preisbeispiel: ab 1.250 € / m² (z. B. 100 m² ≈ 125.000 €) • Haustyp: Fertighaus, 1 Ebene, 3 Zimmer / 2 Schlafzimmer / 1 Bad • Ausstattung: Einbauküche, Terrasse, seniorengerecht • Energie & Technik: Wärmepumpe, Fußbodenheizung, Solarmodule, „Niedrigenergie“-Standard • Möblierung: nein • Zustand: Erstbezug / schlüsselfertig • Lage: Grundstück frei wählbar in Westungarn (u. a. Raum Hévíz/Balaton).
immocenter-ungarn.com
Warum dieses Fertighaus perfekt für Auswanderer ist:
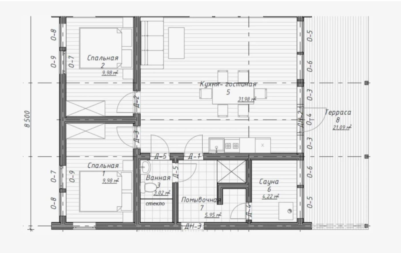
Planungssicherheit & Tempo: Schlüsselfertige Ausführung – einziehen statt sanieren. Beispielgrundriss mit 3 Zimmern auf einer Ebene: familien- & seniorentauglich.
Niedrige Nebenkosten: Wärmepumpe + Fußbodenheizung + Solarmodule – auf Effizienz ausgelegt, Nebenkosten nahe null laut Anbieter.
Standort frei wählen: Sie entscheiden den Bauort – der Anbieter hat passende Grundstücke in Westungarn (Balaton-/Thermal-Region).
Langfristige Sicherheit: 25 Jahre Garantie auf die Außenfassade (Anbieterangabe).
Ausstattung & Technik (Kurzüberblick):
Wohnen/Essen mit Zugang zur Terrasse
2 Schlafzimmer, 1 Bad (Dusche)
Einbauküche
Voll klimatisiert (Kühl-/Heizfunktion über System)
Wärmepumpe + Fußbodenheizung + Solarmodule
Niedrigenergie-Standard, Erstbezug.
Grundstück & Lage:
Grundstück: frei wählbar; typische Beispielgröße in Angeboten um ~1.150 m² – Auswahl nach Wunsch (z. B. Hévíz/Plattensee-Region, Thermalorte, ruhige Dörfer).
Regionale Vorteile: sehr gute Gesundheits-/Thermalinfrastruktur, Balaton-Nähe, internationale Community, viel Natur.
immocenter-ungarn.com
Leistungen & Provision:
Käuferprovision: 2,54 % inkl. ungarischer MwSt. – inklusive Grundbuch-Check, Vermittlung deutschsprachiger Rechtsanwält:innen, deutscher Vertragsübersetzung und Ummeldung der Versorger (Strom, Gas, Wasser, Müll).
immocenter-ungarn.com
Für wen eignet sich das Haus?
Auswanderer & Neustarter, die neu & effizient bauen wollen
Familien/Best Ager, dank barrierearmer 1-Ebene-Lösung
Homeoffice & Remote-Worker, mit sehr niedrigen Betriebskosten
Investoren im Balaton-/Thermalumfeld (Feriennutzung je nach lokaler Regelung)
Preisbeispiel: ab 1.250 € / m² (z. B. 100 m² ≈ 125.000 €) • Haustyp: Fertighaus, 1 Ebene, 3 Zimmer / 2 Schlafzimmer / 1 Bad • Ausstattung: Einbauküche, Terrasse, seniorengerecht • Energie & Technik: Wärmepumpe, Fußbodenheizung, Solarmodule, „Niedrigenergie“-Standard • Möblierung: nein • Zustand: Erstbezug / schlüsselfertig • Lage: Grundstück frei wählbar in Westungarn (u. a. Raum Hévíz/Balaton).
immocenter-ungarn.com
Warum dieses Fertighaus perfekt für Auswanderer ist:
Planungssicherheit & Tempo: Schlüsselfertige Ausführung – einziehen statt sanieren. Beispielgrundriss mit 3 Zimmern auf einer Ebene: familien- & seniorentauglich.
Niedrige Nebenkosten: Wärmepumpe + Fußbodenheizung + Solarmodule – auf Effizienz ausgelegt, Nebenkosten nahe null laut Anbieter.
Standort frei wählen: Sie entscheiden den Bauort – der Anbieter hat passende Grundstücke in Westungarn (Balaton-/Thermal-Region).
Langfristige Sicherheit: 25 Jahre Garantie auf die Außenfassade (Anbieterangabe).
Ausstattung & Technik (Kurzüberblick):
Wohnen/Essen mit Zugang zur Terrasse
2 Schlafzimmer, 1 Bad (Dusche)
Einbauküche
Voll klimatisiert (Kühl-/Heizfunktion über System)
Wärmepumpe + Fußbodenheizung + Solarmodule
Niedrigenergie-Standard, Erstbezug.
Grundstück & Lage:
Grundstück: frei wählbar; typische Beispielgröße in Angeboten um ~1.150 m² – Auswahl nach Wunsch (z. B. Hévíz/Plattensee-Region, Thermalorte, ruhige Dörfer).
Regionale Vorteile: sehr gute Gesundheits-/Thermalinfrastruktur, Balaton-Nähe, internationale Community, viel Natur.
immocenter-ungarn.com
Leistungen & Provision:
Käuferprovision: 2,54 % inkl. ungarischer MwSt. – inklusive Grundbuch-Check, Vermittlung deutschsprachiger Rechtsanwält:innen, deutscher Vertragsübersetzung und Ummeldung der Versorger (Strom, Gas, Wasser, Müll).
immocenter-ungarn.com
Für wen eignet sich das Haus?
Auswanderer & Neustarter, die neu & effizient bauen wollen
Familien/Best Ager, dank barrierearmer 1-Ebene-Lösung
Homeoffice & Remote-Worker, mit sehr niedrigen Betriebskosten
Investoren im Balaton-/Thermalumfeld (Feriennutzung je nach lokaler Regelung)
Lage:
Das entscheiden Sie :-)
Wir haben hervorragende Grundstücke für Sie in Westungarn
Wir haben hervorragende Grundstücke für Sie in Westungarn
Provision:
Als Käufer zahlen Sie bei diesem Objekt 2,54% inkl. ungarischer MwSt gegen Rechnungslegung und Unterzeichnung des Kaufvertrages. In diesem Preis enthalten ist die
- Überprüfung des Grundbuchs nach Lastenfreiheit und Eigentümerrechten
- Vermittlung eines deutschsprachigen Rechtsanwaltes (in HU beglaubigen Rechtsanwälte die Kaufverträge, keine Notare wie z.B.in D)
- eine deutschsprachige Übersetzung des Kaufvertrages
- alle Ummeldungen der Versorger wie Strom, Gas, Wasser, Müll etc.
- Überprüfung des Grundbuchs nach Lastenfreiheit und Eigentümerrechten
- Vermittlung eines deutschsprachigen Rechtsanwaltes (in HU beglaubigen Rechtsanwälte die Kaufverträge, keine Notare wie z.B.in D)
- eine deutschsprachige Übersetzung des Kaufvertrages
- alle Ummeldungen der Versorger wie Strom, Gas, Wasser, Müll etc.
Anmerkung:
Die von uns gemachten Informationen beruhen auf Angaben des Verkäufers bzw. der Verkäuferin. Für die Richtigkeit und Vollständigkeit der Angaben kann keine Gewähr bzw. Haftung übernommen werden. Ein Zwischenverkauf und Irrtümer sind vorbehalten.
AGB:
Wir weisen auf unsere Allgemeinen Geschäftsbedingungen hin. Durch weitere Inanspruchnahme unserer Leistungen erklären Sie die Kenntnis und Ihr Einverständnis.
Legen Sie ein kostenloses Gesuch an und wir informieren Sie automatisch, wenn passende Objekte eintreffen!
www.immocenter-ungarn.com
www.immocenter-ungarn.com
Die Preisangabe in Euro dient der Orientierung und kann je nach Wechselkurs geringfügig abweichen.
Unsere Preisgestaltung für unsere deutschen und ungarischen Kunden ist identisch
Zurück zur Übersicht




















+43 (0) 677 6282 0325