Property 4 from 14
Next property
Previous property
Back to the overview

Héviz: (AAA) Prefabricated house at the location of your choice for 1,250 € / m²

Property ID: CM245
  •  
  •  
  •  
  •  
  •  
  •  
  •  
  •  
  •  
  •  
  •  
  •  
  •  
  •  
  •  
 
 
 
 
 
 
 
 
 
 
 
 
 
 
 
Quick Contact
Basic information
Address:
8380 Héviz
Region:
Zala
Area:
Residential area
Price:
125.000 €
Living space:
100 sq. m.
Plot size:
1.150 sq. m.
No. of rooms:
3
Details
Details
Type of house:
Prefabricated house
Number of floors:
1
Subject to commission:
yes
Commission Rate:
2.54% of the purchase price plus VAT
Kitchen:
Fitted kitchen
Bathroom:
Shower
Number of bedrooms:
2
Number of bathrooms:
1
Terrace:
1
Suitable for the elderly:
yes
Furnished:
no
Condition:
First occupier
Heating:
Completely air-conditioned
Type of heating system:
Electric, Heat pump
Energy type:
low-energy
Further information
Further information
Property description:
Prefabricated house at the location of your choice – turnkey from €1,250/m² with heat pump, underfloor heating, and solar panels (Property No. CM245)

Price example: from €1,250/m² (e.g., 100 m² ≈ €125,000) • House type: Prefabricated house, 1 level, 3 rooms / 2 bedrooms / 1 bathroom • Features: Fitted kitchen, terrace, suitable for seniors • Energy & technology: Heat pump, underfloor heating, solar panels, "low-energy" standard • Furnishing: No • Condition: First occupancy / turnkey • Location: Freely selectable plot in western Hungary (including the Hévíz/Balaton area).
immocenter-ungarn.com

Why this prefabricated house is perfect for expatriates:

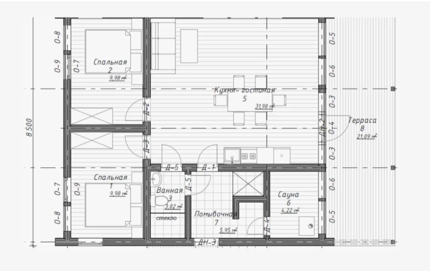
Planning security & speed: Turnkey construction – move in instead of renovating. Example floor plan with 3 rooms on one level: suitable for families and seniors.

Low utility costs: Heat pump + underfloor heating + solar panels – designed for efficiency, utility costs close to zero according to the provider.

Free choice of location: You decide the construction site – the provider has suitable plots in western Hungary (Balaton/Thermal region).

Long-term security: 25-year warranty on the exterior facade (provider information).

Furnishings & technology (brief overview):
Living/dining room with access to the terrace
2 bedrooms, 1 bathroom (shower)
Fitted kitchen
Fully air-conditioned (cooling/heating function via system)
Heat pump + underfloor heating + solar panels
Low-energy standard, first occupancy.

Plot & location:

Plot: freely selectable; Typical example size in listings around 1,150 m² – selection as desired (e.g., Hévíz/Lake Balaton region, thermal resorts, quiet villages).

Regional advantages: excellent healthcare/thermal infrastructure, proximity to Lake Balaton, international community, abundant nature.

immocenter-ungarn.com

Services & Commission:

Buyer's commission: 2.54% incl. Hungarian VAT – including land registry check, referral of German-speaking lawyers, German contract translation, and re-registration of utilities (electricity, gas, water, garbage).

immocenter-ungarn.com

Who is this house suitable for?

Expats and newcomers looking to build new and efficient homes

Families/older adults, thanks to a barrier-free single-level solution

Home office and remote workers, with very low operating costs

Investors in the Balaton/thermal spa area (vacation use depends on local regulations)
Location:
You decide :-)
We have excellent properties for you in Western Hungary
Commission Rate:
As a buyer, you will pay 2.54% including Hungarian VAT for this property upon presentation of the invoice and signing the purchase agreement. This price includes:

- Review of the land register for encumbrances and owner rights
- Provision of a German-speaking lawyer (in Hungary, lawyers notarize purchase agreements, not notaries like in Germany)
- A German translation of the purchase agreement
- All utility changes such as electricity, gas, water, garbage, etc.
Remarks:
The information provided by us is based on information provided by the seller or the seller. For the correctness and completeness of the information, no responsibility or liability can be accepted. An intermediate sale and mistakes are reserved.
General business conditions:
We refer to our terms and conditions. Through further use our services do you explain your knowledge and consent.
 
Pay attention to our unique A-B-C classification of the objects at the beginning of the object heading! Explanation on www.ungarn.online

Have you found a house and want to know whether the offer is in order? Often there is the "foreigner surcharge" or hidden defects, let our building surveyor look at the house and verify the purchase price. After the purchase as seen Complaints are practically no longer enforceable.

You have the opportunity to conclude a consulting contract with us! This service is not tied to a specific object, is voluntary and includes the following services:

- Create an application in which you describe exactly which property is desired on the page https://ogy.de/gesuch 

-Suggestions for suitable properties from various channels and from private sellers until you have found the right property

-Joint inspection of your dream property & Risk assessment by our building expert & Energy advisor (within a radius of Héviz | Keszthely 30 km)

- Support in handling all purchase formalities

- ion of an English-speaking notary (layer)

- English sales contract translation

- Re-registration of all providers such as electricity, water, gas etc.

- Housekeeping during your absence

At the following fixed price:
a) Purchase price greater than 50.000 € = 1.27% of the purchase price (including VAT)
b) Purchase price less than 50.000 € = 2.54% of the purchase price (including VAT)

You can find many more of our properties at:
www.immocenter-ungarn.com
code

Die Preisangabe in Euro dient der Orientierung und kann je nach Wechselkurs geringfügig abweichen.
Unsere Preisgestaltung für unsere deutschen und ungarischen Kunden ist identisch


Back to the overview