Objeto 4 de 14
Inmueble siguiente
Inmueble anterior
Volver al resumen
code
Volver al resumen
Inmueble siguiente
Inmueble anterior
Volver al resumenHéviz: (AAA) Casa prefabricada en el lugar que elijas por 1.250 € / m²
Referencia: CM245
Contacto rápido
Opciones
Opciones
Datos generales
Dirección:
8380 Héviz
Región:
Zala
Área:
Área residencial
Precio:
125.000 €
Superficie útil aprox.:
100 m²
Terreno aprox.:
1.150 m²
Cantidad habitaciones:
3
Más datos
Más datos
Tipo de casa:
Casa prefabricada
N° de plantas:
1
Comisionable:
sí
Comisión:
2,54% del precio de compra más IVA
Cocina:
Cocina completa
Baño:
Ducha
Cantidad dormitorios:
2
Cantidad baños:
1
Terraza:
1
Adoptada para la tercera edad:
sí
Mobiliario:
no
Estado:
A estrenar
Calefacción:
A/C por conductos
Tipo de calefacción:
Eléctrico, Bomba de calor
Tipo de energía:
Bajo consumo de energía
Descripción detallada
Descripción detallada
Descripción del inmueble:
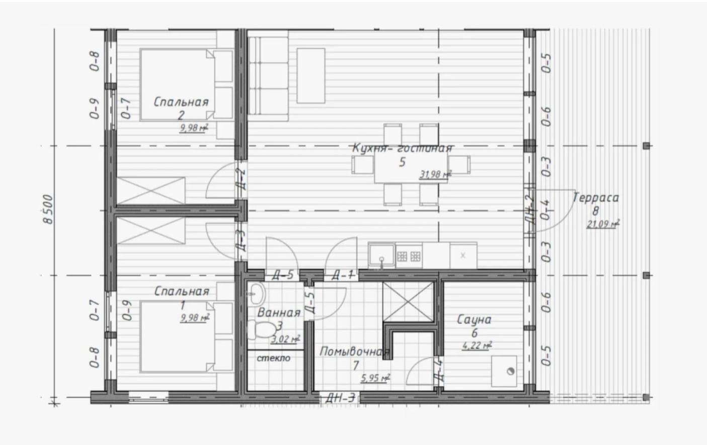
Casa prefabricada en la ubicación que elija: llave en mano desde 1250 €/m² con bomba de calor, suelo radiante y paneles solares (Propiedad n.° CM245)
Ejemplo de precio: desde 1250 €/m² (p. ej., 100 m² ≈ 125 000 €) • Tipo de casa: Casa prefabricada, 1 planta, 3 habitaciones / 2 dormitorios / 1 baño • Características: Cocina equipada, terraza, apta para personas mayores • Energía y tecnología: Bomba de calor, suelo radiante, paneles solares, estándar de bajo consumo • Amueblado: No • Estado: Primera ocupación / llave en mano • Ubicación: Parcela de libre elección en el oeste de Hungría (incluida la zona de Hévíz/Balaton).
immocenter-ungarn.com
¿Por qué esta casa prefabricada es perfecta para expatriados?
Seguridad y rapidez en la planificación: Construcción llave en mano: muévase en lugar de reformar. Ejemplo de plano de planta con 3 habitaciones en una sola planta: ideal para familias y personas mayores.
Bajos costes de suministros: Bomba de calor + suelo radiante + paneles solares: diseñado para la eficiencia, costes de suministros prácticamente nulos según el proveedor.
Libre elección de ubicación: Usted decide el lugar de construcción; el proveedor dispone de parcelas adecuadas en el oeste de Hungría (Balaton/Región Termal).
Seguridad a largo plazo: 25 años de garantía en la fachada exterior (información del proveedor).
Mobiliario y tecnología (breve resumen):
Salón-comedor con acceso a la terraza
2 dormitorios, 1 baño (ducha)
Cocina equipada
Aire acondicionado (frío/calor mediante sistema)
Bomba de calor + suelo radiante + paneles solares
Bajo consumo energético, primera ocupación.
Parcela y ubicación:
Parcela: a libre elección; Ejemplo típico de superficie en propiedades en venta: alrededor de 1150 m²; selección a elección (p. ej., región de Hévíz/Lago Balaton, balnearios termales, pueblos tranquilos).
Ventajas regionales: excelente infraestructura sanitaria/termal, proximidad al lago Balaton, comunidad internacional, naturaleza exuberante.
immocenter-ungarn.com
Servicios y comisiones:
Comisión del comprador: 2,54 % (IVA húngaro incluido). Incluye comprobación del registro de la propiedad, recomendación de abogados de habla alemana, traducción de contratos al alemán y nueva alta de suministros (electricidad, gas, agua, basura).
immocenter-ungarn.com
¿Para quién es adecuada esta casa?
Expatriados y recién llegados que buscan construir viviendas nuevas y eficientes.
Familias/personas mayores, gracias a una solución de una sola planta sin barreras.
Teletrabajo y teletrabajo, con costes operativos muy bajos.
Inversores en la zona de Balaton/balnearios termales (el uso vacacional depende de la normativa local).
Ejemplo de precio: desde 1250 €/m² (p. ej., 100 m² ≈ 125 000 €) • Tipo de casa: Casa prefabricada, 1 planta, 3 habitaciones / 2 dormitorios / 1 baño • Características: Cocina equipada, terraza, apta para personas mayores • Energía y tecnología: Bomba de calor, suelo radiante, paneles solares, estándar de bajo consumo • Amueblado: No • Estado: Primera ocupación / llave en mano • Ubicación: Parcela de libre elección en el oeste de Hungría (incluida la zona de Hévíz/Balaton).
immocenter-ungarn.com
¿Por qué esta casa prefabricada es perfecta para expatriados?
Seguridad y rapidez en la planificación: Construcción llave en mano: muévase en lugar de reformar. Ejemplo de plano de planta con 3 habitaciones en una sola planta: ideal para familias y personas mayores.
Bajos costes de suministros: Bomba de calor + suelo radiante + paneles solares: diseñado para la eficiencia, costes de suministros prácticamente nulos según el proveedor.
Libre elección de ubicación: Usted decide el lugar de construcción; el proveedor dispone de parcelas adecuadas en el oeste de Hungría (Balaton/Región Termal).
Seguridad a largo plazo: 25 años de garantía en la fachada exterior (información del proveedor).
Mobiliario y tecnología (breve resumen):
Salón-comedor con acceso a la terraza
2 dormitorios, 1 baño (ducha)
Cocina equipada
Aire acondicionado (frío/calor mediante sistema)
Bomba de calor + suelo radiante + paneles solares
Bajo consumo energético, primera ocupación.
Parcela y ubicación:
Parcela: a libre elección; Ejemplo típico de superficie en propiedades en venta: alrededor de 1150 m²; selección a elección (p. ej., región de Hévíz/Lago Balaton, balnearios termales, pueblos tranquilos).
Ventajas regionales: excelente infraestructura sanitaria/termal, proximidad al lago Balaton, comunidad internacional, naturaleza exuberante.
immocenter-ungarn.com
Servicios y comisiones:
Comisión del comprador: 2,54 % (IVA húngaro incluido). Incluye comprobación del registro de la propiedad, recomendación de abogados de habla alemana, traducción de contratos al alemán y nueva alta de suministros (electricidad, gas, agua, basura).
immocenter-ungarn.com
¿Para quién es adecuada esta casa?
Expatriados y recién llegados que buscan construir viviendas nuevas y eficientes.
Familias/personas mayores, gracias a una solución de una sola planta sin barreras.
Teletrabajo y teletrabajo, con costes operativos muy bajos.
Inversores en la zona de Balaton/balnearios termales (el uso vacacional depende de la normativa local).
Ubicación:
Tú decides :-)
Tenemos excelentes propiedades para ti en el oeste de Hungría.
Tenemos excelentes propiedades para ti en el oeste de Hungría.
Comisión:
Como comprador, pagará el 2,54% (IVA húngaro incluido) por esta propiedad al presentar la factura y firmar el contrato de compraventa. Este precio incluye:
- Revisión del registro de la propiedad para comprobar la existencia de gravámenes y derechos de propiedad
- Servicios de un abogado que hable alemán (en Hungría, los abogados certifican los contratos de compraventa, no los notarios, como en Alemania)
- Traducción al alemán del contrato de compraventa
- Cambios en los servicios públicos, como electricidad, gas, agua, basura, etc.
- Revisión del registro de la propiedad para comprobar la existencia de gravámenes y derechos de propiedad
- Servicios de un abogado que hable alemán (en Hungría, los abogados certifican los contratos de compraventa, no los notarios, como en Alemania)
- Traducción al alemán del contrato de compraventa
- Cambios en los servicios públicos, como electricidad, gas, agua, basura, etc.
Nota:
La información proporcionada por nosotros se basa en la información proporcionada por el vendedor o el vendedor. Para la exactitud e integridad de la información, ninguna responsabilidad puede ser aceptada. Una venta intermedia y los errores son reservados.
Condiciones generales:
Nos referimos a nuestros términos y condiciones. A través de más utilizar nuestros servicios usted explicar su conocimiento y consentimiento.
Cree una solicitud gratuita y le informaremos automáticamente cuando lleguen los objetos adecuados.
www.immocenter-ungarn.com
www.immocenter-ungarn.com
Die Preisangabe in Euro dient der Orientierung und kann je nach Wechselkurs geringfügig abweichen.
Unsere Preisgestaltung für unsere deutschen und ungarischen Kunden ist identisch
Volver al resumen



















