Ajánlat 4 tól 14
Következo
Elozo
Vissza az ajánlatlistához
code
Vissza az ajánlatlistához
Következo
Elozo
Vissza az ajánlatlistáhozHéviz: (AAA) Előregyártott ház az Ön által választott helyszínen 1250 €/m²-ért
Nyilvántartási sz.: CM245
Gyors kapcsolat
Opciók
Opciók
Legfontosabb adatok
Cím:
8380 Héviz
Régió:
Zala
Terület:
Lakóterület
Vételár:
125.000 €
Lakóterület kb.:
100 nm;
Telek kb.:
1.150 nm;
Szobák száma:
3
További adatok
További adatok
Ház típusa:
Kész ház
Szintek száma:
1
Jutalékköteles:
igen
Jutalék:
a vételár 2,54%-a + ÁFA
Konyha:
Beépített konyha
Fürdoszoba:
Zuhanyzó
Hálószobák száma:
2
Fürdoszobák száma:
1
Terasz:
1
Idosek számára alkalmas:
igen
Bútorozás:
nem
Állapot:
Elso beköltözo
Futés:
teljesen klimatizált
Futés módja:
Elektromos, Hoszivattyú
Energiatípus:
Alacsony energiafelhasználás
Részletes leírás
Részletes leírás
ingatlanleírás:
Előregyártott ház az Ön által választott helyszínen – kulcsrakészen 1250 €/m²-től hőszivattyúval, padlófűtéssel és napelemekkel (Ingatlanszám: CM245)
Ár példa: 1250 €/m²-től (pl. 100 m² ≈ 125 000 €) • Ház típusa: Előregyártott ház, 1 szintes, 3 szoba / 2 hálószoba / 1 fürdőszoba • Jellemzők: Beépített konyha, terasz, idősek számára alkalmas • Energia és technológia: Hőszivattyú, padlófűtés, napelemek, "alacsony energiafogyasztású" szabvány • Berendezés: Nincs • Állapot: Első beköltöző / kulcsrakész • Elhelyezkedés: Szabadon választható telek Nyugat-Magyarországon (beleértve a Hévíz/Balaton környékét is).
immocenter-ungarn.com
Miért tökéletes ez az előregyártott ház külföldiek számára:
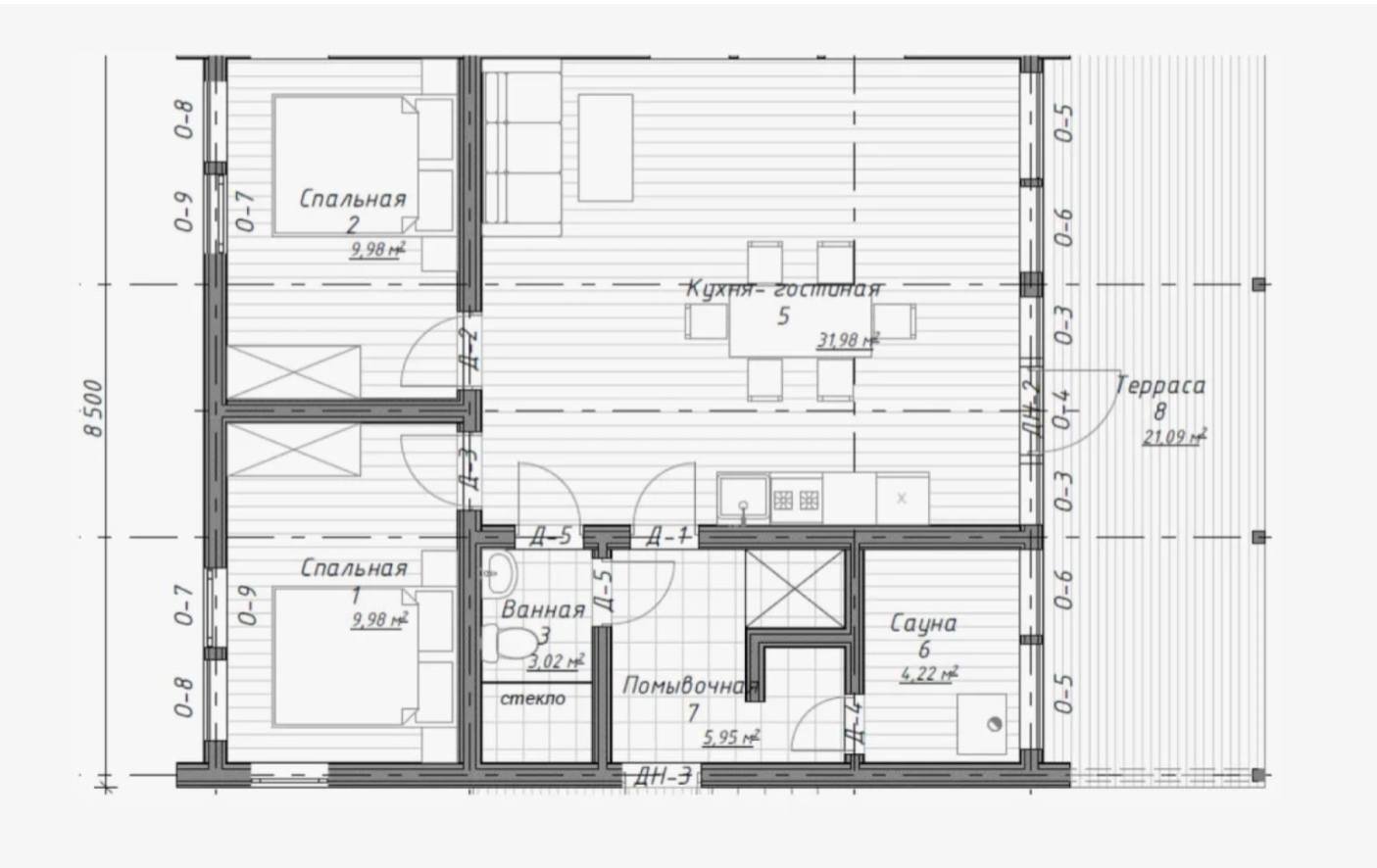
Tervezési biztonság és gyorsaság: Kulcsrakész építés – beköltözés felújítás helyett. Példa alaprajz 3 szobával egy szinten: alkalmas családok és idősek számára.
Alacsony rezsiköltségek: Hőszivattyú + padlófűtés + napelemek – hatékonyságra tervezve, a szolgáltató szerint közel nulla rezsiköltség.
Szabad helyszínválasztás: Ön dönti el az építési helyszínt – a szolgáltató megfelelő telkekkel rendelkezik Nyugat-Magyarországon (Balaton/Termál régió).
Hosszú távú biztonság: 25 év garancia a külső homlokzatra (szolgáltatói információk).
Berendezés és technológia (rövid áttekintés):
Nappali/étkező teraszkapcsolattal
2 hálószoba, 1 fürdőszoba (zuhanyzós)
Beépített konyha
Teljesen légkondicionált (hűtés/fűtés funkció rendszeren keresztül)
Hőszivattyú + padlófűtés + napelemek
Alacsony energiafogyasztású, első beköltöző.
Telek és elhelyezkedés:
Telek: szabadon választható; Tipikus példaméret a listákban körülbelül 1150 m² – igény szerint választható (pl. Hévíz/Balaton régió, termálüdülők, csendes falvak).
Régióbeli előnyök: kiváló egészségügyi/termál infrastruktúra, a Balaton közelsége, nemzetközi közösség, gazdag természeti környezet.
immocenter-ungarn.com
Szolgáltatások és jutalék:
Vevői jutalék: 2,54%, beleértve a magyar ÁFA-t – beleértve a földhivatali ellenőrzést, németül beszélő ügyvédek ajánlását, német szerződésfordítást és a közművek (villany, gáz, víz, szemétszállítás) átjelentkezését.
immocenter-ungarn.com
Kinek ajánlott ez a ház?
Külföldieknek és újonnan érkezőknek, akik új és hatékony otthont szeretnének építeni
Családoknak/idősebbeknek az akadálymentes, egyszintes megoldásnak köszönhetően
Otthoni irodának és távmunkában dolgozóknak, nagyon alacsony üzemeltetési költségekkel
Befektetőknek a balatoni/termálfürdői területen (a nyaralóhasználat a helyi előírásoktól függ)
Ár példa: 1250 €/m²-től (pl. 100 m² ≈ 125 000 €) • Ház típusa: Előregyártott ház, 1 szintes, 3 szoba / 2 hálószoba / 1 fürdőszoba • Jellemzők: Beépített konyha, terasz, idősek számára alkalmas • Energia és technológia: Hőszivattyú, padlófűtés, napelemek, "alacsony energiafogyasztású" szabvány • Berendezés: Nincs • Állapot: Első beköltöző / kulcsrakész • Elhelyezkedés: Szabadon választható telek Nyugat-Magyarországon (beleértve a Hévíz/Balaton környékét is).
immocenter-ungarn.com
Miért tökéletes ez az előregyártott ház külföldiek számára:
Tervezési biztonság és gyorsaság: Kulcsrakész építés – beköltözés felújítás helyett. Példa alaprajz 3 szobával egy szinten: alkalmas családok és idősek számára.
Alacsony rezsiköltségek: Hőszivattyú + padlófűtés + napelemek – hatékonyságra tervezve, a szolgáltató szerint közel nulla rezsiköltség.
Szabad helyszínválasztás: Ön dönti el az építési helyszínt – a szolgáltató megfelelő telkekkel rendelkezik Nyugat-Magyarországon (Balaton/Termál régió).
Hosszú távú biztonság: 25 év garancia a külső homlokzatra (szolgáltatói információk).
Berendezés és technológia (rövid áttekintés):
Nappali/étkező teraszkapcsolattal
2 hálószoba, 1 fürdőszoba (zuhanyzós)
Beépített konyha
Teljesen légkondicionált (hűtés/fűtés funkció rendszeren keresztül)
Hőszivattyú + padlófűtés + napelemek
Alacsony energiafogyasztású, első beköltöző.
Telek és elhelyezkedés:
Telek: szabadon választható; Tipikus példaméret a listákban körülbelül 1150 m² – igény szerint választható (pl. Hévíz/Balaton régió, termálüdülők, csendes falvak).
Régióbeli előnyök: kiváló egészségügyi/termál infrastruktúra, a Balaton közelsége, nemzetközi közösség, gazdag természeti környezet.
immocenter-ungarn.com
Szolgáltatások és jutalék:
Vevői jutalék: 2,54%, beleértve a magyar ÁFA-t – beleértve a földhivatali ellenőrzést, németül beszélő ügyvédek ajánlását, német szerződésfordítást és a közművek (villany, gáz, víz, szemétszállítás) átjelentkezését.
immocenter-ungarn.com
Kinek ajánlott ez a ház?
Külföldieknek és újonnan érkezőknek, akik új és hatékony otthont szeretnének építeni
Családoknak/idősebbeknek az akadálymentes, egyszintes megoldásnak köszönhetően
Otthoni irodának és távmunkában dolgozóknak, nagyon alacsony üzemeltetési költségekkel
Befektetőknek a balatoni/termálfürdői területen (a nyaralóhasználat a helyi előírásoktól függ)
Ház /Telek fekvése:
Ön dönt :-)
Kiváló ingatlanokat kínálunk Önnek Nyugat-Magyarországon
Kiváló ingatlanokat kínálunk Önnek Nyugat-Magyarországon
Jutalék:
Vevőként 2,54%-os áfát fizet az ingatlanért a számla bemutatásakor és a vételi szerződés aláírásakor. Ez az ár tartalmazza:
- Az ingatlan-nyilvántartás felülvizsgálata a terhek és a tulajdonosi jogok tekintetében
- Németül beszélő ügyvéd biztosítása (Magyarországon ügyvédek hitelesítik a vételi szerződéseket, nem pedig közjegyzők, mint Németországban)
- A vételi szerződés német fordítása
- Minden közműváltozás, például villany, gáz, víz, szemétszállítás stb.
- Az ingatlan-nyilvántartás felülvizsgálata a terhek és a tulajdonosi jogok tekintetében
- Németül beszélő ügyvéd biztosítása (Magyarországon ügyvédek hitelesítik a vételi szerződéseket, nem pedig közjegyzők, mint Németországban)
- A vételi szerződés német fordítása
- Minden közműváltozás, például villany, gáz, víz, szemétszállítás stb.
Megjegyzés:
Az általunk nyújtott információk az eladó által szolgáltatott információkon alapulnak. Az információk helyességéért és teljességéért semmilyen garancia vagy felelősség nem vállalható. A köztes értékesítés és a hibák fenntartva vannak.
Általános üzleti feltételek:
Hivatkozunk az Általános Szerződési Feltételeinkre. A szolgáltatásaink további használatával kijelenti, hogy tudatában van ennek és egyetértésben van.
Hozzon létre egy ingyenes kérést, és mi automatikusan tájékoztatjuk Önt, ha megfelelő tárgyak érkeznek!
www.immocenter-ungarn.com
www.immocenter-ungarn.com
Die Preisangabe in Euro dient der Orientierung und kann je nach Wechselkurs geringfügig abweichen.
Unsere Preisgestaltung für unsere deutschen und ungarischen Kunden ist identisch
Vissza az ajánlatlistához



















