Objekt 142 von 323
Nächstes Objekt
Vorheriges Objekt
Zurück zur Übersicht
code
Zurück zur Übersicht
Nächstes Objekt
Vorheriges Objekt
Zurück zur ÜbersichtSzentgotthárd: (AAA) Renoviertes Einfamilienhaus nahe der österreichischen Grenze
Objekt-Nr.: RV025
Schnellkontakt
Optionen
Optionen
Basisinformationen
Adresse:
9970 Szentgotthárd
Region:
Vas
Gebiet:
Wohngebiet
Preis:
150.000 €
Wohnfläche ca.:
79 m²
Grundstück ca.:
394 m²
Zimmeranzahl:
2
Weitere Informationen
Weitere Informationen
Haustyp:
Einfamilienhaus
Provisionspflichtig:
ja
Provision:
1,27% des Kaufpreises
Nutzfläche ca.:
96 m²
Küche:
Einbauküche
Bad:
Wanne, Fenster
Anzahl Schlafzimmer:
1
Anzahl Badezimmer:
1
Terrasse:
2
Gäste-WC:
ja
Kamin:
ja
Keller:
teil unterkellert
Möbliert:
nein
Bodenbelag:
Fliesen, Parkett
Zustand:
vollständig renoviert
Heizung:
Zentralheizung, Radiatoren
Befeuerungsart:
Elektro, Holz
Beschreibung
Beschreibung
Objektbeschreibung:
Nur wenige Gehminuten vom Stadtzentrum von Szentgotthárd entfernt steht dieses hervorragend gelegene Einfamilienhaus zum Verkauf. Es ist die ideale Wahl für alle, die den Komfort des Stadtlebens genießen möchten, ohne auf einen Garten verzichten zu müssen.
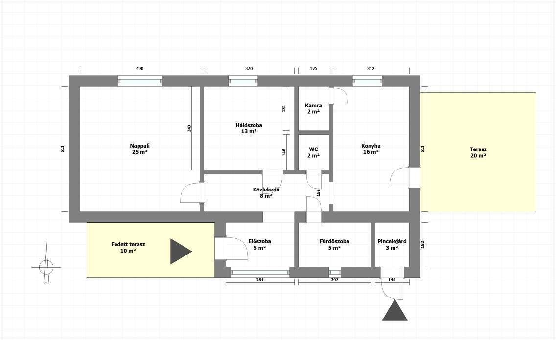
Auf dem 396 m² großen Grundstück steht ein Haus mit 79 m² Wohnfläche, das durchdacht und großzügig aufgeteilt ist.
Räumlichkeiten: zwei Zimmer, Küche, Vorraum, Flur, Badezimmer, separates WC, Speisekammer. Vor dem Eingang befindet sich eine 10 m² große Terrasse, von der Küche aus öffnet sich eine 20 m² große Terrasse.
Unter der Küche liegt ein Keller mit preußischer Kappendecke, der sich ideal als Abstellraum eignet. Auf dem Grundstück gibt es zudem einen überdachten, 10 m² großen Grillplatz, der sowohl zum Entspannen als auch zur Aufbewahrung von Gartengeräten und -Ausrüstung hervorragend geeignet ist.
Das Gebäude befindet sich in ausgezeichnetem technischem Zustand und wurde in den letzten Jahren umfassend renoviert. Dabei wurde das Dach erneuert, die Fassade gedämmt und moderne, wärmeisolierte Holzfenster eingebaut. Eine Zwischendecke im Dachgeschoss sorgt für zusätzliche Wärmedämmung.
Die Elektroinstallation wurde vollständig modernisiert und sorgt für ein sicheres und modernes System. Auch die Innenräume wurden erneuert: neue Bodenbeläge, eine moderne Küche und ein renoviertes Bad sorgen für Wohnkomfort. Ein installiertes Kamerasystem gewährleistet die Sicherheit des Hauses. Das Haus ist kurzfristig bezugsfertig und bietet langfristig ein komfortables, modernes Zuhause. Es wird unmöbliert übergeben.
Die Immobilie ist voll erschlossen: Wasser-, Strom-, Kanal- und Gasanschluss sind vorhanden, wobei das Gasnetz derzeit nicht genutzt wird.
Beheizt wird das Haus über einen im Keller installierten Festbrennstoffkessel sowie einen eingebauten elektrischen Kamin im Wohnzimmer, der eine energiesparende und zuverlässige Alternative für den Alltag bietet.
Die Infrastruktur von Szentgotthárd ist hervorragend: alle wichtigen Einrichtungen und Dienstleistungen – Schule, Kindergarten, Arztpraxis, Apotheke, Post und zahlreiche Einkaufsmöglichkeiten – sind nur wenige Gehminuten entfernt. Das kulturelle Leben ist lebendig: Theater, Museum, Veranstaltungsorte, Sportmöglichkeiten und Freiluftprogramme erwarten die Bewohner.
Dank der außergewöhnlichen geografischen Lage der Stadt befindet sich die österreichische Grenze nur 3 km entfernt, was sie ideal für tägliches Pendeln macht. Der Grenzübergang ist schnell erreichbar, und auch Arbeits- sowie Einkaufsmöglichkeiten in Österreich sind leicht zugänglich.
Auf dem 396 m² großen Grundstück steht ein Haus mit 79 m² Wohnfläche, das durchdacht und großzügig aufgeteilt ist.
Räumlichkeiten: zwei Zimmer, Küche, Vorraum, Flur, Badezimmer, separates WC, Speisekammer. Vor dem Eingang befindet sich eine 10 m² große Terrasse, von der Küche aus öffnet sich eine 20 m² große Terrasse.
Unter der Küche liegt ein Keller mit preußischer Kappendecke, der sich ideal als Abstellraum eignet. Auf dem Grundstück gibt es zudem einen überdachten, 10 m² großen Grillplatz, der sowohl zum Entspannen als auch zur Aufbewahrung von Gartengeräten und -Ausrüstung hervorragend geeignet ist.
Das Gebäude befindet sich in ausgezeichnetem technischem Zustand und wurde in den letzten Jahren umfassend renoviert. Dabei wurde das Dach erneuert, die Fassade gedämmt und moderne, wärmeisolierte Holzfenster eingebaut. Eine Zwischendecke im Dachgeschoss sorgt für zusätzliche Wärmedämmung.
Die Elektroinstallation wurde vollständig modernisiert und sorgt für ein sicheres und modernes System. Auch die Innenräume wurden erneuert: neue Bodenbeläge, eine moderne Küche und ein renoviertes Bad sorgen für Wohnkomfort. Ein installiertes Kamerasystem gewährleistet die Sicherheit des Hauses. Das Haus ist kurzfristig bezugsfertig und bietet langfristig ein komfortables, modernes Zuhause. Es wird unmöbliert übergeben.
Die Immobilie ist voll erschlossen: Wasser-, Strom-, Kanal- und Gasanschluss sind vorhanden, wobei das Gasnetz derzeit nicht genutzt wird.
Beheizt wird das Haus über einen im Keller installierten Festbrennstoffkessel sowie einen eingebauten elektrischen Kamin im Wohnzimmer, der eine energiesparende und zuverlässige Alternative für den Alltag bietet.
Die Infrastruktur von Szentgotthárd ist hervorragend: alle wichtigen Einrichtungen und Dienstleistungen – Schule, Kindergarten, Arztpraxis, Apotheke, Post und zahlreiche Einkaufsmöglichkeiten – sind nur wenige Gehminuten entfernt. Das kulturelle Leben ist lebendig: Theater, Museum, Veranstaltungsorte, Sportmöglichkeiten und Freiluftprogramme erwarten die Bewohner.
Dank der außergewöhnlichen geografischen Lage der Stadt befindet sich die österreichische Grenze nur 3 km entfernt, was sie ideal für tägliches Pendeln macht. Der Grenzübergang ist schnell erreichbar, und auch Arbeits- sowie Einkaufsmöglichkeiten in Österreich sind leicht zugänglich.
Ausstattung:
Alle Anschlüsse vorhanden
Lage:
Szentgotthárd – Tor zum Őrség, Klosterkunst & wohlig-warme Wellness
Ganz im Südwesten Ungarns, direkt an der Grenze zu Österreich, liegt Szentgotthárd – umgeben von Flüssen (Rába & Lafnitz/Lapincs) und den Wäldern des Nationalparks Őrség. Am Stadtrand fließen Lafnitz und Rába zusammen – beliebt bei Paddlern und Naturfans.
Gotthard Therme Hotel & Conference
Sehenswert ist die Barockkirche/Abtei der Zisterzienser (18. Jh.), deren Wurzeln bis 1183 zurückreichen; heute prägt sie mit Klosterflügeln und Kunst das Stadtbild.
Fürs Abschalten sorgt das St. Gotthard Spa & Wellness: ein mediterran gestaltetes Erlebnisbad mit Innen-/Außenbecken, Rutschen, Saunapark & Wellness – ganzjährig geöffnet. Perfekt als ruhige Alternative zu den großen Thermenorte, mit viel Grün drumherum.
Entfernungen (Straße, ca.)
Wien ↔ Szentgotthárd: ~175–185 km, rund 2 Std. (z. B. via A2/S7/S31; Anbieter geben 173–182 km an).
Budapest ↔ Szentgotthárd: ~245–265 km, etwa 3 Std.; es gibt außerdem eine Direktzugverbindung ab Budapest-Kelenföld (ca. 3 h 25 min).
Keszthely (West-Balaton) ↔ Szentgotthárd: ~100–107 km, ca. 1 h 40–1 h 50.
Ganz im Südwesten Ungarns, direkt an der Grenze zu Österreich, liegt Szentgotthárd – umgeben von Flüssen (Rába & Lafnitz/Lapincs) und den Wäldern des Nationalparks Őrség. Am Stadtrand fließen Lafnitz und Rába zusammen – beliebt bei Paddlern und Naturfans.
Gotthard Therme Hotel & Conference
Sehenswert ist die Barockkirche/Abtei der Zisterzienser (18. Jh.), deren Wurzeln bis 1183 zurückreichen; heute prägt sie mit Klosterflügeln und Kunst das Stadtbild.
Fürs Abschalten sorgt das St. Gotthard Spa & Wellness: ein mediterran gestaltetes Erlebnisbad mit Innen-/Außenbecken, Rutschen, Saunapark & Wellness – ganzjährig geöffnet. Perfekt als ruhige Alternative zu den großen Thermenorte, mit viel Grün drumherum.
Entfernungen (Straße, ca.)
Wien ↔ Szentgotthárd: ~175–185 km, rund 2 Std. (z. B. via A2/S7/S31; Anbieter geben 173–182 km an).
Budapest ↔ Szentgotthárd: ~245–265 km, etwa 3 Std.; es gibt außerdem eine Direktzugverbindung ab Budapest-Kelenföld (ca. 3 h 25 min).
Keszthely (West-Balaton) ↔ Szentgotthárd: ~100–107 km, ca. 1 h 40–1 h 50.
Sonstiges:
🏡 Ganz gleich, ob Sie eine Immobilie in Ungarn kaufen möchten oder Ihre Liegenschaft verkaufen wollen: Immocenter Ungarn ist Ihr kompetenter und vertrauensvoller Partner direkt vor Ort. Mit unserer langjährigen Erfahrung, exzellenter Marktkenntnis und persönlicher Betreuung begleiten wir Sie sicher und transparent durch den gesamten Kauf- oder Verkaufsprozess.
💡 Tipp: Achten Sie auf unsere einzigartige A-B-C-Klassifizierung in der Überschrift unserer Objekte! Die Bedeutung dieser Einstufung finden Sie ausführlich erklärt auf unserer Startseite.
✅ Immobiliencheck – Sicherheit vor dem Kauf
Sie haben bereits eine Immobilie gefunden und möchten sicher sein, dass Preis und Zustand stimmen? Unser zertifizierter Bausachverständiger prüft Ihre Wunschimmobilie gründlich und bewertet den angemessenen Kaufpreis. So vermeiden Sie teure Überraschungen – denn in Ungarn gilt meist „gekauft wie gesehen“, nachträgliche Mängelrügen sind kaum durchsetzbar.
🤝 Individuelle Beratung – persönlich, unabhängig und fair
Auf Wunsch können Sie mit uns einen unabhängigen Beratungsvertrag abschließen – selbstverständlich freiwillig und nicht an ein bestimmtes Objekt gebunden. Unser Service umfasst:
✔️ Detaillierte Erfassung Ihrer Suchkriterien in einem persönlichen Suchprofil
✔️ Vorschläge passender Immobilien – so lange, bis Sie Ihr Wunschobjekt gefunden haben
✔️ Gemeinsame Besichtigungen inklusive fundierter Risikoabschätzung durch unseren Bausachverständigen und Energieberater (im Umkreis von ca. 50 km um Hévíz/Keszthely)
✔️ Betreuung und Unterstützung bei der Abwicklung aller Kauf-Formalitäten
✔️ Vermittlung eines deutschsprachigen Notars oder Rechtsanwalts
✔️ Bereitstellung einer deutschen Kaufvertragsübersetzung und Begleitung durch einen deutschsprachigen Anwalt
✔️ Unterstützung bei der Ummeldung von Strom, Gas, Wasser & Co.
✔️ Auf Wunsch: zuverlässige Hausbetreuung während Ihrer Abwesenheit
🌟 Immocenter Ungarn – sicher, kompetent und immer an Ihrer Seite.
Wir freuen uns darauf, Sie persönlich kennenzulernen und Ihren Traum von einer Immobilie in Ungarn Wirklichkeit werden zu lassen!
💡 Tipp: Achten Sie auf unsere einzigartige A-B-C-Klassifizierung in der Überschrift unserer Objekte! Die Bedeutung dieser Einstufung finden Sie ausführlich erklärt auf unserer Startseite.
✅ Immobiliencheck – Sicherheit vor dem Kauf
Sie haben bereits eine Immobilie gefunden und möchten sicher sein, dass Preis und Zustand stimmen? Unser zertifizierter Bausachverständiger prüft Ihre Wunschimmobilie gründlich und bewertet den angemessenen Kaufpreis. So vermeiden Sie teure Überraschungen – denn in Ungarn gilt meist „gekauft wie gesehen“, nachträgliche Mängelrügen sind kaum durchsetzbar.
🤝 Individuelle Beratung – persönlich, unabhängig und fair
Auf Wunsch können Sie mit uns einen unabhängigen Beratungsvertrag abschließen – selbstverständlich freiwillig und nicht an ein bestimmtes Objekt gebunden. Unser Service umfasst:
✔️ Detaillierte Erfassung Ihrer Suchkriterien in einem persönlichen Suchprofil
✔️ Vorschläge passender Immobilien – so lange, bis Sie Ihr Wunschobjekt gefunden haben
✔️ Gemeinsame Besichtigungen inklusive fundierter Risikoabschätzung durch unseren Bausachverständigen und Energieberater (im Umkreis von ca. 50 km um Hévíz/Keszthely)
✔️ Betreuung und Unterstützung bei der Abwicklung aller Kauf-Formalitäten
✔️ Vermittlung eines deutschsprachigen Notars oder Rechtsanwalts
✔️ Bereitstellung einer deutschen Kaufvertragsübersetzung und Begleitung durch einen deutschsprachigen Anwalt
✔️ Unterstützung bei der Ummeldung von Strom, Gas, Wasser & Co.
✔️ Auf Wunsch: zuverlässige Hausbetreuung während Ihrer Abwesenheit
🌟 Immocenter Ungarn – sicher, kompetent und immer an Ihrer Seite.
Wir freuen uns darauf, Sie persönlich kennenzulernen und Ihren Traum von einer Immobilie in Ungarn Wirklichkeit werden zu lassen!
Provision:
Als Käufer zahlen Sie bei diesem Objekt 1,27% inkl. ungarischer MwSt gegen Rechnungslegung und Unterzeichnung des Kaufvertrages. In diesem Preis enthalten ist die
- Überprüfung des Grundbuchs nach Lastenfreiheit und Eigentümerrechten
- Vermittlung eines deutschsprachigen Rechtsanwaltes (in HU beglaubigen Rechtsanwälte die Kaufverträge, keine Notare wie z.B.in D)
- eine deutschsprachige Übersetzung des Kaufvertrages
- alle Ummeldungen der Versorger wie Strom, Gas, Wasser, Müll etc.
- Überprüfung des Grundbuchs nach Lastenfreiheit und Eigentümerrechten
- Vermittlung eines deutschsprachigen Rechtsanwaltes (in HU beglaubigen Rechtsanwälte die Kaufverträge, keine Notare wie z.B.in D)
- eine deutschsprachige Übersetzung des Kaufvertrages
- alle Ummeldungen der Versorger wie Strom, Gas, Wasser, Müll etc.
Anmerkung:
Die von uns gemachten Informationen beruhen auf Angaben des Verkäufers bzw. der Verkäuferin. Für die Richtigkeit und Vollständigkeit der Angaben kann keine Gewähr bzw. Haftung übernommen werden. Ein Zwischenverkauf und Irrtümer sind vorbehalten.
AGB:
Wir weisen auf unsere Allgemeinen Geschäftsbedingungen hin. Durch weitere Inanspruchnahme unserer Leistungen erklären Sie die Kenntnis und Ihr Einverständnis.
Legen Sie ein kostenloses Gesuch an und wir informieren Sie automatisch, wenn passende Objekte eintreffen!
www.immocenter-ungarn.com
www.immocenter-ungarn.com
Die Preisangabe in Euro dient der Orientierung und kann je nach Wechselkurs geringfügig abweichen.
Unsere Preisgestaltung für unsere deutschen und ungarischen Kunden ist identisch
Zurück zur Übersicht













+43 (0) 677 6282 0325