Ajánlat 89 tól 151
Következo
Elozo
Vissza az ajánlatlistához
code
Vissza az ajánlatlistához
Következo
Elozo
Vissza az ajánlatlistáhozSzentgotthárd: Felújított családi ház az osztrák határ közelében
Nyilvántartási sz.: RV025
Gyors kapcsolat
Opciók
Opciók
Legfontosabb adatok
Cím:
9970 Szentgotthárd
Régió:
Vas
Terület:
Lakóterület
Vételár:
150.000 €
Lakóterület kb.:
79 nm;
Telek kb.:
394 nm;
Szobák száma:
2
További adatok
További adatok
Ház típusa:
családiház
Jutalékköteles:
igen
Jutalék:
a vételár 1,27%-a
Nem lakóterület kb.:
96 nm;
Konyha:
Beépített konyha
Fürdoszoba:
Fürdokád, Ablak
Hálószobák száma:
1
Fürdoszobák száma:
1
Terasz:
2
Vendég-WC:
igen
Kémény:
igen
Pince:
Részben alápincézett
Bútorozás:
nem
Padlóburkolat:
Járólap, Parketta
Állapot:
Teljesen felújított
Futés:
Központifutés, Radiators
Futés módja:
Elektromos, Fa
Részletes leírás
Részletes leírás
ingatlanleírás:
Szentgotthárd központjától rövid sétára eladó ez a kiváló helyen lévő családi ház. Ideális választás azok számára, akik a városi élet kényelmét szeretnék élvezni anélkül, hogy le kellene mondaniuk a kertjükről.
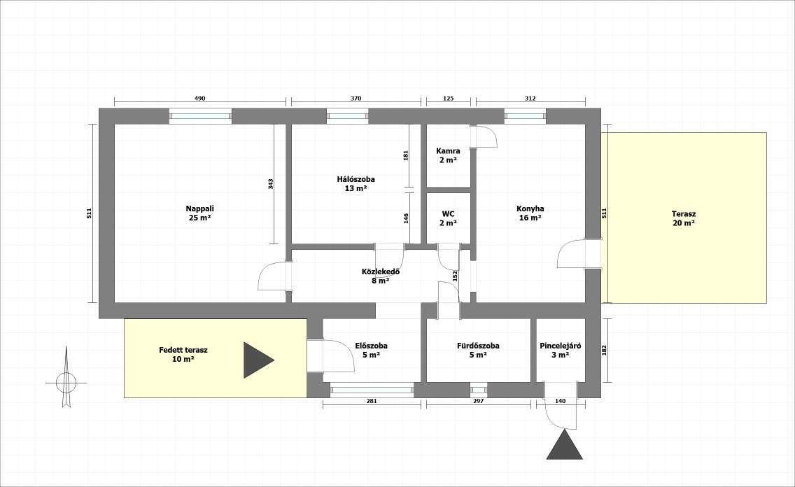
A 396 m²-es telken fekvő ház 79 m² lakóteret kínál, és átgondoltan megtervezett, tágas elrendezéssel rendelkezik.
Az elrendezés a következőket tartalmazza: két hálószoba, konyha, előszoba, közlekedő, fürdőszoba, külön WC és kamra. A bejárat előtt egy 10 m²-es terasz található, a konyhából pedig egy 20 m²-es terasz nyílik.
A konyha alatt egy porosz boltozatos mennyezetű pince található, amely ideális tárolásra. Az ingatlanhoz egy 10 m²-es fedett grillező is tartozik, amely tökéletes pihenésre vagy kerti szerszámok, felszerelések tárolására.
Az épület kiváló szerkezeti állapotban van, és az elmúlt években átfogó felújításon esett át. A tetőt kicserélték, a homlokzatot szigetelték, és modern, hőszigetelt fa ablakokat szereltek be. A padláson álmennyezet biztosítja a további szigetelést. Az elektromos rendszert teljes mértékben korszerűsítették, biztosítva a biztonságos és korszerű telepítést. A belső tereket is felújították: új padlóburkolat, modern konyha és felújított fürdőszoba biztosítja a kényelmes lakhatást. Az otthon biztonságát biztonsági kamerarendszer garantálja. A ház azonnal beköltözhető, és hosszú távra kényelmes, modern otthont kínál. Bútorozatlanul kerül értékesítésre.
Az ingatlan teljes közműszolgáltatással ellátott: víz-, villany-, csatorna- és gázcsatlakozás rendelkezésre áll, bár a gázvezeték jelenleg nincs használatban.
A ház fűtését a pincében található szilárd tüzelésű kazán és a nappaliban található elektromos kandalló biztosítja, így energiatakarékos és megbízható fűtési lehetőséget biztosít.
Szentgotthárd kiváló infrastruktúrával büszkélkedhet: minden alapvető létesítmény és szolgáltatás – iskola, óvoda, orvosi rendelő, gyógyszertár, posta és számos üzlet – gyalogosan is könnyen elérhető. A kulturális élet pezsgő: színházak, múzeumok, rendezvényhelyszínek, sportlétesítmények és szabadtéri programok várják a lakosokat.
A város kivételes földrajzi elhelyezkedésének köszönhetően az osztrák határ mindössze 3 km-re található, így ideális a napi ingázáshoz. A határátkelő könnyen megközelíthető, és Ausztriában munkalehetőségek és vásárlási lehetőségek is könnyen elérhetők.
...``
```
`````] ] ] ] ] ] ] ] ] ] 3 km-re található, így ideális a napi ingázáshoz.
A 396 m²-es telken fekvő ház 79 m² lakóteret kínál, és átgondoltan megtervezett, tágas elrendezéssel rendelkezik.
Az elrendezés a következőket tartalmazza: két hálószoba, konyha, előszoba, közlekedő, fürdőszoba, külön WC és kamra. A bejárat előtt egy 10 m²-es terasz található, a konyhából pedig egy 20 m²-es terasz nyílik.
A konyha alatt egy porosz boltozatos mennyezetű pince található, amely ideális tárolásra. Az ingatlanhoz egy 10 m²-es fedett grillező is tartozik, amely tökéletes pihenésre vagy kerti szerszámok, felszerelések tárolására.
Az épület kiváló szerkezeti állapotban van, és az elmúlt években átfogó felújításon esett át. A tetőt kicserélték, a homlokzatot szigetelték, és modern, hőszigetelt fa ablakokat szereltek be. A padláson álmennyezet biztosítja a további szigetelést. Az elektromos rendszert teljes mértékben korszerűsítették, biztosítva a biztonságos és korszerű telepítést. A belső tereket is felújították: új padlóburkolat, modern konyha és felújított fürdőszoba biztosítja a kényelmes lakhatást. Az otthon biztonságát biztonsági kamerarendszer garantálja. A ház azonnal beköltözhető, és hosszú távra kényelmes, modern otthont kínál. Bútorozatlanul kerül értékesítésre.
Az ingatlan teljes közműszolgáltatással ellátott: víz-, villany-, csatorna- és gázcsatlakozás rendelkezésre áll, bár a gázvezeték jelenleg nincs használatban.
A ház fűtését a pincében található szilárd tüzelésű kazán és a nappaliban található elektromos kandalló biztosítja, így energiatakarékos és megbízható fűtési lehetőséget biztosít.
Szentgotthárd kiváló infrastruktúrával büszkélkedhet: minden alapvető létesítmény és szolgáltatás – iskola, óvoda, orvosi rendelő, gyógyszertár, posta és számos üzlet – gyalogosan is könnyen elérhető. A kulturális élet pezsgő: színházak, múzeumok, rendezvényhelyszínek, sportlétesítmények és szabadtéri programok várják a lakosokat.
A város kivételes földrajzi elhelyezkedésének köszönhetően az osztrák határ mindössze 3 km-re található, így ideális a napi ingázáshoz. A határátkelő könnyen megközelíthető, és Ausztriában munkalehetőségek és vásárlási lehetőségek is könnyen elérhetők.
...``
```
`````] ] ] ] ] ] ] ] ] ] 3 km-re található, így ideális a napi ingázáshoz.
Felszereltség:
Minden csatlakozás elérhető.
Ház /Telek fekvése:
Szentgotthárd – Az Őrség kapuja, kolostori művészet és nyugtató wellness
Magyarország délnyugati részén, közvetlenül az osztrák határon fekszik Szentgotthárd – a Rába és a Lafnitz/Lapincs folyók, valamint az Őrségi Nemzeti Park erdei ölelik körül. A Lafnitz és a Rába folyók a város szélén találkoznak – népszerű hely a vízi sportok és a természet szerelmesei körében.
Gotthard Therme Hotel & Konferencia
A barokk ciszterci templom/apátság (18. század), amelynek gyökerei 1183-ig nyúlnak vissza, megér egy látogatást; ma a kolostori szárnyaival és művészetével együtt formálja a városképet.
A kikapcsolódáshoz a Szent Gotthárd Gyógyfürdő és Wellness mediterrán stílusú élménymedencét kínál beltéri és kültéri medencékkel, csúszdákkal, szaunakomplexummal és wellness-részlegekkel – egész évben nyitva. Tökéletes, nyugodt alternatívája a nagyobb gyógyfürdőknek, buja zöld környezetben.
Távolságok (út, kb.)
Bécs ↔ Szentgotthárd: ~175-185 km, 2 óra körül (pl. A2/S7/S31-en keresztül; a szolgáltatók szerint 173-182 km).
Budapest ↔ Szentgotthárd: ~245–265 km, kb 3 óra; Budapest-Kelenföldről is van közvetlen vonatkapcsolat (kb. 3 óra 25 perc).
Keszthely (Nyugat-Balaton) ↔ Szentgotthárd: ~100–107 km, kb. 1 óra 40 – 1 óra 50 óra.
Magyarország délnyugati részén, közvetlenül az osztrák határon fekszik Szentgotthárd – a Rába és a Lafnitz/Lapincs folyók, valamint az Őrségi Nemzeti Park erdei ölelik körül. A Lafnitz és a Rába folyók a város szélén találkoznak – népszerű hely a vízi sportok és a természet szerelmesei körében.
Gotthard Therme Hotel & Konferencia
A barokk ciszterci templom/apátság (18. század), amelynek gyökerei 1183-ig nyúlnak vissza, megér egy látogatást; ma a kolostori szárnyaival és művészetével együtt formálja a városképet.
A kikapcsolódáshoz a Szent Gotthárd Gyógyfürdő és Wellness mediterrán stílusú élménymedencét kínál beltéri és kültéri medencékkel, csúszdákkal, szaunakomplexummal és wellness-részlegekkel – egész évben nyitva. Tökéletes, nyugodt alternatívája a nagyobb gyógyfürdőknek, buja zöld környezetben.
Távolságok (út, kb.)
Bécs ↔ Szentgotthárd: ~175-185 km, 2 óra körül (pl. A2/S7/S31-en keresztül; a szolgáltatók szerint 173-182 km).
Budapest ↔ Szentgotthárd: ~245–265 km, kb 3 óra; Budapest-Kelenföldről is van közvetlen vonatkapcsolat (kb. 3 óra 25 perc).
Keszthely (Nyugat-Balaton) ↔ Szentgotthárd: ~100–107 km, kb. 1 óra 40 – 1 óra 50 óra.
Egyéb:
🏡 Akár ingatlant szeretne venni, akár eladni Magyarországon, az Immocenter Hungary az Ön hozzáértő és megbízható partnere a helyszínen. Sokéves tapasztalatunkkal, kiváló piaci ismereteinkkel és személyre szabott szolgáltatásunkkal biztonságosan és átláthatóan végigvezetjük Önt a teljes vételi vagy eladási folyamaton.
💡 Tipp: Keresse egyedi A-B-C besorolásunkat ingatlanjaink nevében! A besorolás részletes magyarázatát honlapunkon találja.
✅ Ingatlan felmérése – Nyugalom vásárlás előtt
Már talált egy ingatlant, és biztos szeretne lenni abban, hogy az ár és az állapot megfelelő? Okleveles épületfelmérőnk alaposan megvizsgálja a kívánt ingatlant, és korrekt vételárat állapít meg. Így elkerülheti a költséges meglepetéseket – mivel Magyarországon általában a „látható állapotban eladó” elve érvényesül, és a későbbi hibák miatti igények nehezen érvényesíthetők.
🤝 Egyéni konzultáció – személyes, független és korrekt
Kérésre független tanácsadói szerződést köthet velünk – teljesen önkéntes és nem kötött konkrét ingatlanhoz. Szolgáltatásunk a következőket tartalmazza:
✔️ Keresési kritériumainak részletes rögzítése személyes keresési profilban
✔️ Javaslatok megfelelő ingatlanokra – amíg meg nem találja az ideális ingatlant
✔️ Közös megtekintés, beleértve az épületfelmérőnk és energetikai tanácsadónk által végzett alapos kockázatértékelést (Hévíz/Keszthely kb. 50 km-es körzetében)
✔️ Támogatás és segítségnyújtás az összes adásvételi formaság intézésében
✔️ Németül beszélő közjegyző vagy ügyvéd ajánlása
✔️ Az adásvételi szerződés német fordításának biztosítása és németül beszélő ügyvéd támogatása
✔️ Segítségnyújtás a közművek (villany, gáz, víz stb.) átruházásában
✔️ Kérésre: megbízható ingatlankezelés távollétében
🌟 Immocenter Hungary – biztonságos, hozzáértő és mindig az Ön mellett.
Reméljük, hogy személyesen is találkozhatunk Önnel, és valóra válthatjuk álmát egy saját ingatlanról Magyarországon!
💡 Tipp: Keresse egyedi A-B-C besorolásunkat ingatlanjaink nevében! A besorolás részletes magyarázatát honlapunkon találja.
✅ Ingatlan felmérése – Nyugalom vásárlás előtt
Már talált egy ingatlant, és biztos szeretne lenni abban, hogy az ár és az állapot megfelelő? Okleveles épületfelmérőnk alaposan megvizsgálja a kívánt ingatlant, és korrekt vételárat állapít meg. Így elkerülheti a költséges meglepetéseket – mivel Magyarországon általában a „látható állapotban eladó” elve érvényesül, és a későbbi hibák miatti igények nehezen érvényesíthetők.
🤝 Egyéni konzultáció – személyes, független és korrekt
Kérésre független tanácsadói szerződést köthet velünk – teljesen önkéntes és nem kötött konkrét ingatlanhoz. Szolgáltatásunk a következőket tartalmazza:
✔️ Keresési kritériumainak részletes rögzítése személyes keresési profilban
✔️ Javaslatok megfelelő ingatlanokra – amíg meg nem találja az ideális ingatlant
✔️ Közös megtekintés, beleértve az épületfelmérőnk és energetikai tanácsadónk által végzett alapos kockázatértékelést (Hévíz/Keszthely kb. 50 km-es körzetében)
✔️ Támogatás és segítségnyújtás az összes adásvételi formaság intézésében
✔️ Németül beszélő közjegyző vagy ügyvéd ajánlása
✔️ Az adásvételi szerződés német fordításának biztosítása és németül beszélő ügyvéd támogatása
✔️ Segítségnyújtás a közművek (villany, gáz, víz stb.) átruházásában
✔️ Kérésre: megbízható ingatlankezelés távollétében
🌟 Immocenter Hungary – biztonságos, hozzáértő és mindig az Ön mellett.
Reméljük, hogy személyesen is találkozhatunk Önnel, és valóra válthatjuk álmát egy saját ingatlanról Magyarországon!
Jutalék:
Vevőként Ön 2,54%-os áfát fizet az ingatlanért a számlázás és a vételi szerződés aláírásakor. Ez az ár tartalmazza:
- Az ingatlan-nyilvántartás ellenőrzése a terhek és a tulajdonjogok tekintetében
- Németül beszélő ügyvéd ajánlása (Magyarországon ügyvédek hitelesítik a vételi szerződéseket, nem közjegyzők, mint Németországban)
- A vételi szerződés német fordítása
- Minden közműszolgáltatás, például villany, gáz, víz, hulladékkezelés stb.
- Az ingatlan-nyilvántartás ellenőrzése a terhek és a tulajdonjogok tekintetében
- Németül beszélő ügyvéd ajánlása (Magyarországon ügyvédek hitelesítik a vételi szerződéseket, nem közjegyzők, mint Németországban)
- A vételi szerződés német fordítása
- Minden közműszolgáltatás, például villany, gáz, víz, hulladékkezelés stb.
Megjegyzés:
Az általunk nyújtott információk az eladó által szolgáltatott információkon alapulnak. Az információk helyességéért és teljességéért semmilyen garancia vagy felelősség nem vállalható. A köztes értékesítés és a hibák fenntartva vannak.
Általános üzleti feltételek:
Hivatkozunk az Általános Szerződési Feltételeinkre. A szolgáltatásaink további használatával kijelenti, hogy tudatában van ennek és egyetértésben van.
Hozzon létre egy ingyenes kérést, és mi automatikusan tájékoztatjuk Önt, ha megfelelő tárgyak érkeznek!
www.immocenter-ungarn.com
www.immocenter-ungarn.com
Die Preisangabe in Euro dient der Orientierung und kann je nach Wechselkurs geringfügig abweichen.
Unsere Preisgestaltung für unsere deutschen und ungarischen Kunden ist identisch
Vissza az ajánlatlistához












