Property 4 from 238
Next property
Previous property
Back to the overview
Back to the overview
Next property
Previous property
Back to the overviewSopron: A site complex with unique features
Property ID: IN9413
Quick Contact
Options
Options
Basic information
Address:
9400 Sopron
Region:
Gyor-Moson-Sopron
Area:
Commercial area
Price:
1.615.000 €
Type of object:
Industry present
Details
Details
Subject to commission:
yes
Commission Rate:
1.27% of the purchase price including VAT
Plot size:
5.550 sq. m.
GLA:
2.750 sq. m.
Further information
Further information
Property description:
A unique commercial complex for your business: Production, warehousing, or logistics all under one roof!
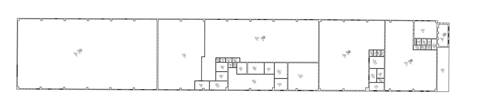
For sale is a commercial property with exceptional features on a 5,550 m² plot. It comprises two separate production halls (1,950 m²) and a warehouse (800 m²), totaling 2,750 m². The property is fully serviced and ready for immediate use – whether for production, logistics, or warehousing.
Why this property?
• Spacious and practical: Separate buildings for production and warehousing.
• Excellent accessibility: Good truck access, ideal for logistics.
• Versatile use: Suitable for manufacturers, distributors, logistics companies, and even agricultural businesses.
Who is this property ideal for?
- Manufacturing companies looking to establish or expand their own plant.
- Logistics companies seeking a regional warehouse location.
- Trading companies with high inventory requirements.
- For construction companies seeking a suitable location for storing machinery and materials.
- For agricultural businesses requiring processing or storage capacity.
Why move now?
The demand for commercial real estate is constantly increasing, especially for such versatile spaces with excellent conditions. Take advantage of this opportunity and operate your business in a location that can be perfectly adapted to your needs!
KEY PROPERTY FEATURES
Zoning:
The property is classified as commercial and service zone Gksz-6 within the city limits.
Land area: 5,550 m²
Total area (net): 1,950 + 800 = 2,750 m²
Usable area (reduced): 2,750 m²
Utilities: Fully equipped: water, electricity, sewage, connection to the public utility network, heating: gas combination boiler, air conditioning (heating/cooling)
Current use: Site
I. The 1,950 m² hall with storage and production area
II. 800 m² – Production and storage hall
Investment opportunity with existing tenants and businesses!
The property consists of several units, currently leased to stable, long-term tenants. This is an excellent opportunity for investors seeking immediate, continuous income and wishing to maintain the existing lease structure.
The property can be acquired together with the owner company, ensuring a smooth and straightforward transfer of ownership.
For sale is a commercial property with exceptional features on a 5,550 m² plot. It comprises two separate production halls (1,950 m²) and a warehouse (800 m²), totaling 2,750 m². The property is fully serviced and ready for immediate use – whether for production, logistics, or warehousing.
Why this property?
• Spacious and practical: Separate buildings for production and warehousing.
• Excellent accessibility: Good truck access, ideal for logistics.
• Versatile use: Suitable for manufacturers, distributors, logistics companies, and even agricultural businesses.
Who is this property ideal for?
- Manufacturing companies looking to establish or expand their own plant.
- Logistics companies seeking a regional warehouse location.
- Trading companies with high inventory requirements.
- For construction companies seeking a suitable location for storing machinery and materials.
- For agricultural businesses requiring processing or storage capacity.
Why move now?
The demand for commercial real estate is constantly increasing, especially for such versatile spaces with excellent conditions. Take advantage of this opportunity and operate your business in a location that can be perfectly adapted to your needs!
KEY PROPERTY FEATURES
Zoning:
The property is classified as commercial and service zone Gksz-6 within the city limits.
Land area: 5,550 m²
Total area (net): 1,950 + 800 = 2,750 m²
Usable area (reduced): 2,750 m²
Utilities: Fully equipped: water, electricity, sewage, connection to the public utility network, heating: gas combination boiler, air conditioning (heating/cooling)
Current use: Site
I. The 1,950 m² hall with storage and production area
II. 800 m² – Production and storage hall
Investment opportunity with existing tenants and businesses!
The property consists of several units, currently leased to stable, long-term tenants. This is an excellent opportunity for investors seeking immediate, continuous income and wishing to maintain the existing lease structure.
The property can be acquired together with the owner company, ensuring a smooth and straightforward transfer of ownership.
Furnishings:
Completely
Location:
From Sopron, Budapest, via the M1 motorway and main roads 85 and 84
by car, bus, or train.
The property is located in the northwest of the city, in an established industrial park.
Manufacturing, trading, and service businesses are nearby. The area is easily accessible by car, truck, or public transport.
The buildings are not directly on the street.
The train station is approximately 2500 m away, and the bus stop is 200 m away. The city center can be reached by car in a few minutes.
by car, bus, or train.
The property is located in the northwest of the city, in an established industrial park.
Manufacturing, trading, and service businesses are nearby. The area is easily accessible by car, truck, or public transport.
The buildings are not directly on the street.
The train station is approximately 2500 m away, and the bus stop is 200 m away. The city center can be reached by car in a few minutes.
Miscellaneous:
Whether you're looking to buy or sell a property in Hungary, Immocenter Hungary is your competent and trustworthy partner right on the ground. With our many years of experience, excellent market knowledge, and personalized service, we guide you safely and transparently through the entire buying or selling process.
Tip: Look out for our unique A-B-C classification in the title of our properties! You can find a detailed explanation of this classification on our homepage.
Property Inspection – Peace of Mind Before You Buy
Have you already found a property and want to be sure that the price and condition are right? Our certified building surveyor will thoroughly inspect your desired property and assess a fair purchase price. This way, you avoid costly surprises – because in Hungary, the principle of "sold as seen" generally applies, and subsequent claims for defects are difficult to enforce.
Individual Consultation – Personal, Independent, and Fair
If you wish, you can enter into an independent consulting agreement with us – entirely voluntary and not tied to any specific property. Our services include:
- Detailed recording of your search criteria in a personal search profile
- Suggestions of suitable properties – until you find your ideal property
- Joint viewings including a thorough risk assessment by our building surveyor and energy consultant (within a radius of approximately 50 km around Hévíz/Keszthely)
- Support and assistance with all purchase formalities
- Referral to a German-speaking notary or lawyer
- Provision of a German translation of the purchase agreement and support from a German-speaking lawyer
- Assistance with transferring utilities (electricity, gas, water, etc.)
- Upon request: reliable property management during your absence
Immocenter Hungary – secure, competent, and always by your side.
We look forward to meeting you personally and making your dream of owning a property in Hungary a reality!
Tip: Look out for our unique A-B-C classification in the title of our properties! You can find a detailed explanation of this classification on our homepage.
Property Inspection – Peace of Mind Before You Buy
Have you already found a property and want to be sure that the price and condition are right? Our certified building surveyor will thoroughly inspect your desired property and assess a fair purchase price. This way, you avoid costly surprises – because in Hungary, the principle of "sold as seen" generally applies, and subsequent claims for defects are difficult to enforce.
Individual Consultation – Personal, Independent, and Fair
If you wish, you can enter into an independent consulting agreement with us – entirely voluntary and not tied to any specific property. Our services include:
- Detailed recording of your search criteria in a personal search profile
- Suggestions of suitable properties – until you find your ideal property
- Joint viewings including a thorough risk assessment by our building surveyor and energy consultant (within a radius of approximately 50 km around Hévíz/Keszthely)
- Support and assistance with all purchase formalities
- Referral to a German-speaking notary or lawyer
- Provision of a German translation of the purchase agreement and support from a German-speaking lawyer
- Assistance with transferring utilities (electricity, gas, water, etc.)
- Upon request: reliable property management during your absence
Immocenter Hungary – secure, competent, and always by your side.
We look forward to meeting you personally and making your dream of owning a property in Hungary a reality!
Commission Rate:
As the buyer, you will pay 2.54% including Hungarian VAT for this property upon invoicing and signing of the purchase agreement. This price includes:
- Verification of the land register for encumbrances and ownership rights
- Referral to a German-speaking lawyer (in Hungary, lawyers authenticate purchase agreements, not notaries as in Germany)
- A German translation of the purchase agreement
- All utility transfers such as electricity, gas, water, waste disposal, etc.
- Verification of the land register for encumbrances and ownership rights
- Referral to a German-speaking lawyer (in Hungary, lawyers authenticate purchase agreements, not notaries as in Germany)
- A German translation of the purchase agreement
- All utility transfers such as electricity, gas, water, waste disposal, etc.
Remarks:
The information provided by us is based on information provided by the seller or the seller. For the correctness and completeness of the information, no responsibility or liability can be accepted. An intermediate sale and mistakes are reserved.
General business conditions:
We refer to our terms and conditions. Through further use our services do you explain your knowledge and consent.
Pay attention to our unique A-B-C classification of the objects at the beginning of the object heading! Explanation on www.ungarn.online
Have you found a house and want to know whether the offer is in order? Often there is the "foreigner surcharge" or hidden defects, let our building surveyor look at the house and verify the purchase price. After the purchase as seen Complaints are practically no longer enforceable.
You have the opportunity to conclude a consulting contract with us! This service is not tied to a specific object, is voluntary and includes the following services:
- Create an application in which you describe exactly which property is desired on the page https://ogy.de/gesuch
-Suggestions for suitable properties from various channels and from private sellers until you have found the right property
-Joint inspection of your dream property & Risk assessment by our building expert & Energy advisor (within a radius of Héviz | Keszthely 30 km)
- Support in handling all purchase formalities
- ion of an English-speaking notary (layer)
- English sales contract translation
- Re-registration of all providers such as electricity, water, gas etc.
- Housekeeping during your absence
At the following fixed price:
a) Purchase price greater than 50.000 € = 1.27% of the purchase price (including VAT)
b) Purchase price less than 50.000 € = 2.54% of the purchase price (including VAT)
You can find many more of our properties at:
www.immocenter-ungarn.com
Have you found a house and want to know whether the offer is in order? Often there is the "foreigner surcharge" or hidden defects, let our building surveyor look at the house and verify the purchase price. After the purchase as seen Complaints are practically no longer enforceable.
You have the opportunity to conclude a consulting contract with us! This service is not tied to a specific object, is voluntary and includes the following services:
- Create an application in which you describe exactly which property is desired on the page https://ogy.de/gesuch
-Suggestions for suitable properties from various channels and from private sellers until you have found the right property
-Joint inspection of your dream property & Risk assessment by our building expert & Energy advisor (within a radius of Héviz | Keszthely 30 km)
- Support in handling all purchase formalities
- ion of an English-speaking notary (layer)
- English sales contract translation
- Re-registration of all providers such as electricity, water, gas etc.
- Housekeeping during your absence
At the following fixed price:
a) Purchase price greater than 50.000 € = 1.27% of the purchase price (including VAT)
b) Purchase price less than 50.000 € = 2.54% of the purchase price (including VAT)
You can find many more of our properties at:
www.immocenter-ungarn.com
Die Preisangabe in Euro dient der Orientierung und kann je nach Wechselkurs geringfügig abweichen.
Unsere Preisgestaltung für unsere deutschen und ungarischen Kunden ist identisch
Back to the overview









