Property 12 from 20
Next property
Previous property
Back to the overview
Back to the overview
Next property
Previous property
Back to the overviewHévíz: () Project plot in the west of Hévíz
Property ID: 77590
Quick Contact
Options
Options
Basic information
Address:
8380 Hévíz
Region:
Zala
Area:
Residential area
Plot size:
1.125 sq. m.
Price:
145.000 €
Details
Details
Type of usage:
Living
Development:
Opened
May be developed from:
Built according to construction plan
Building permission:
yes
Outline:
yes
Recommended use:
Apartment building
Surroundings:
Shopping facilities, Quiet area
Further information
Further information
Property description:
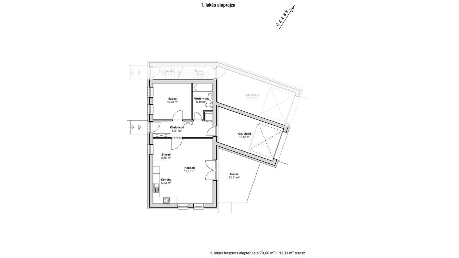
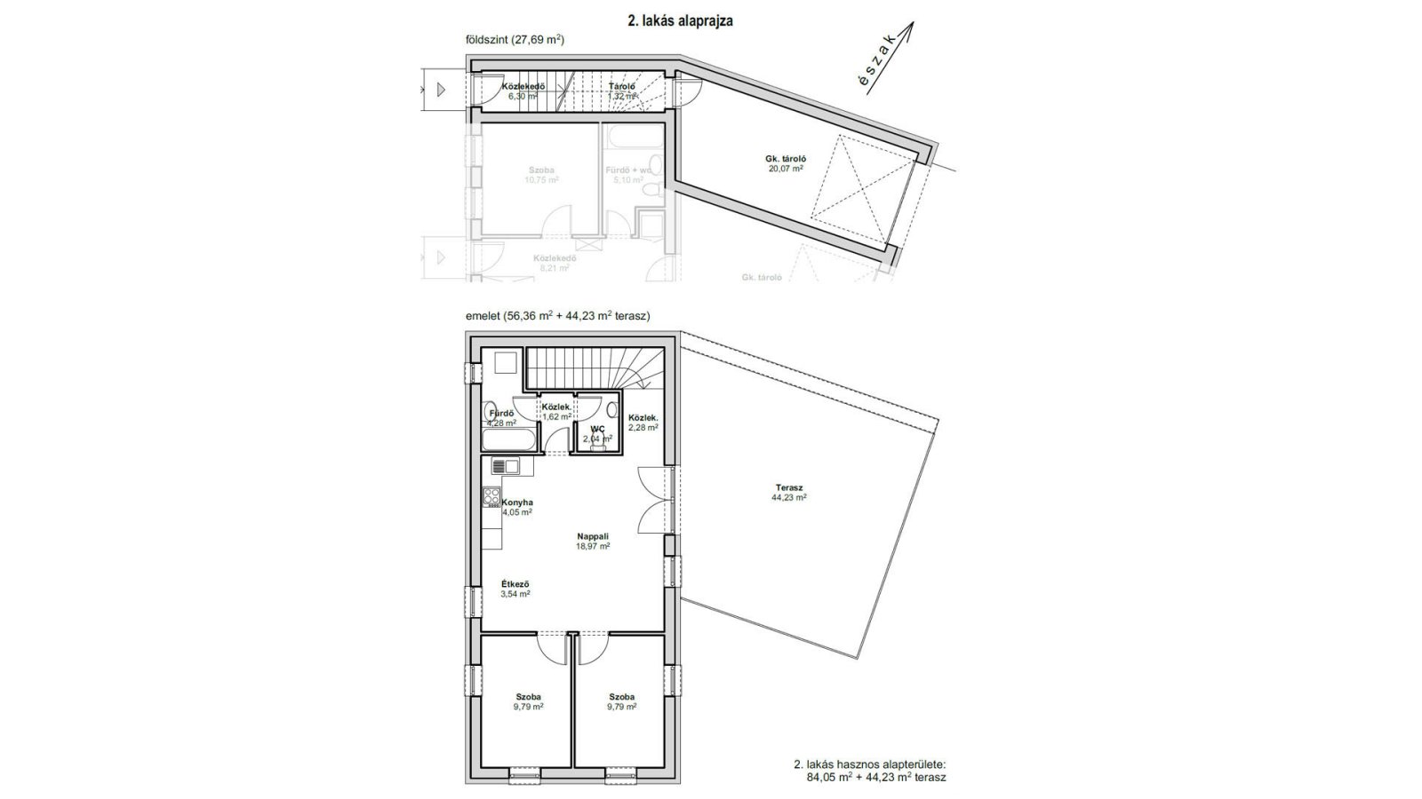
In a quiet location west of Hévíz, a 1125 m² plot of land with all utilities is for sale in a developed area. It features a south-facing courtyard and is ideally suited for the construction of a multi-family house with four residential units. Building plans and elevations in accordance with the Hungarian Housing Code are available. The planned apartments offer separate entrances, garages, terraces and private gardens, as well as living spaces ranging from 1.5 to 3 rooms.
Location:
West of Hévíz
7.2 km from Lake Balaton
7.2 km from Lake Balaton
Miscellaneous:
🏡 Whether you're looking to buy or sell a property in Hungary, Immocenter Hungary is your competent and trustworthy partner right on the ground. With our many years of experience, excellent market knowledge, and personalized service, we guide you safely and transparently through the entire buying or selling process.
💡 Tip: Look out for our unique A-B-C classification in the title of our properties! You can find a detailed explanation of this classification on our homepage.
✅ Property Inspection – Peace of Mind Before You Buy
Have you already found a property and want to be sure that the price and condition are right? Our certified building surveyor will thoroughly inspect your desired property and assess a fair purchase price. This way, you avoid costly surprises – because in Hungary, the principle of "sold as seen" generally applies, and subsequent claims for defects are difficult to enforce.
🤝 Individual consultation – personal, independent, and fair
Upon request, you can conclude an independent consulting agreement with us – entirely voluntary and not tied to any specific property. Our service includes:
✔️ Detailed recording of your search criteria in a personal search profile
✔️ Suggestions for suitable properties – until you find your ideal property
✔️ Joint viewings including a thorough risk assessment by our building surveyor and energy consultant (within a radius of approximately 50 km around Hévíz/Keszthely)
✔️ Support and assistance with handling all purchase formalities
✔️ Referral to a German-speaking notary or lawyer
✔️ Provision of a German translation of the purchase agreement and support from a German-speaking lawyer
✔️ Assistance with transferring utilities (electricity, gas, water, etc.) Co.
✔️ On request: reliable property management during your absence
🌟 Immocenter Hungary – secure, competent, and always by your side.
We look forward to meeting you personally and making your dream of owning a property in Hungary a reality!
💡 Tip: Look out for our unique A-B-C classification in the title of our properties! You can find a detailed explanation of this classification on our homepage.
✅ Property Inspection – Peace of Mind Before You Buy
Have you already found a property and want to be sure that the price and condition are right? Our certified building surveyor will thoroughly inspect your desired property and assess a fair purchase price. This way, you avoid costly surprises – because in Hungary, the principle of "sold as seen" generally applies, and subsequent claims for defects are difficult to enforce.
🤝 Individual consultation – personal, independent, and fair
Upon request, you can conclude an independent consulting agreement with us – entirely voluntary and not tied to any specific property. Our service includes:
✔️ Detailed recording of your search criteria in a personal search profile
✔️ Suggestions for suitable properties – until you find your ideal property
✔️ Joint viewings including a thorough risk assessment by our building surveyor and energy consultant (within a radius of approximately 50 km around Hévíz/Keszthely)
✔️ Support and assistance with handling all purchase formalities
✔️ Referral to a German-speaking notary or lawyer
✔️ Provision of a German translation of the purchase agreement and support from a German-speaking lawyer
✔️ Assistance with transferring utilities (electricity, gas, water, etc.) Co.
✔️ On request: reliable property management during your absence
🌟 Immocenter Hungary – secure, competent, and always by your side.
We look forward to meeting you personally and making your dream of owning a property in Hungary a reality!
Remarks:
The information provided by us is based on information provided by the seller or the seller. For the correctness and completeness of the information, no responsibility or liability can be accepted. An intermediate sale and mistakes are reserved.
General business conditions:
We refer to our terms and conditions. Through further use our services do you explain your knowledge and consent.
Pay attention to our unique A-B-C classification of the objects at the beginning of the object heading! Explanation on www.ungarn.online
Have you found a house and want to know whether the offer is in order? Often there is the "foreigner surcharge" or hidden defects, let our building surveyor look at the house and verify the purchase price. After the purchase as seen Complaints are practically no longer enforceable.
You have the opportunity to conclude a consulting contract with us! This service is not tied to a specific object, is voluntary and includes the following services:
- Create an application in which you describe exactly which property is desired on the page https://ogy.de/gesuch
-Suggestions for suitable properties from various channels and from private sellers until you have found the right property
-Joint inspection of your dream property & Risk assessment by our building expert & Energy advisor (within a radius of Héviz | Keszthely 30 km)
- Support in handling all purchase formalities
- ion of an English-speaking notary (layer)
- English sales contract translation
- Re-registration of all providers such as electricity, water, gas etc.
- Housekeeping during your absence
At the following fixed price:
a) Purchase price greater than 50.000 € = 1.27% of the purchase price (including VAT)
b) Purchase price less than 50.000 € = 2.54% of the purchase price (including VAT)
You can find many more of our properties at:
www.immocenter-ungarn.com
Have you found a house and want to know whether the offer is in order? Often there is the "foreigner surcharge" or hidden defects, let our building surveyor look at the house and verify the purchase price. After the purchase as seen Complaints are practically no longer enforceable.
You have the opportunity to conclude a consulting contract with us! This service is not tied to a specific object, is voluntary and includes the following services:
- Create an application in which you describe exactly which property is desired on the page https://ogy.de/gesuch
-Suggestions for suitable properties from various channels and from private sellers until you have found the right property
-Joint inspection of your dream property & Risk assessment by our building expert & Energy advisor (within a radius of Héviz | Keszthely 30 km)
- Support in handling all purchase formalities
- ion of an English-speaking notary (layer)
- English sales contract translation
- Re-registration of all providers such as electricity, water, gas etc.
- Housekeeping during your absence
At the following fixed price:
a) Purchase price greater than 50.000 € = 1.27% of the purchase price (including VAT)
b) Purchase price less than 50.000 € = 2.54% of the purchase price (including VAT)
You can find many more of our properties at:
www.immocenter-ungarn.com
Die Preisangabe in Euro dient der Orientierung und kann je nach Wechselkurs geringfügig abweichen.
Unsere Preisgestaltung für unsere deutschen und ungarischen Kunden ist identisch
Back to the overview

































