Property 21 from 22
Next property
Previous property
Back to the overview
Back to the overview
Next property
Previous property
Back to the overviewbei Kiskunfélegyháza: (AAA) Horse farm with guest apartments and 30 hectares of land
Property ID: WH0220-3
Quick Contact
Videos to the object
Videos to the object
Links
Links
Options
Options
Basic information
Address:
6100 bei Kiskunfélegyháza
Region:
Bács-Kiskun
Price:
336.000 €
Living space:
180 sq. m.
Plot size:
80.270 sq. m.
No. of rooms:
7
Details
Details
Type of house:
Apartment building
Subject to commission:
yes
Commission Rate:
2.54% of the purchase price including VAT
Kitchen:
Fitted kitchen
Bathroom:
Shower, Window
Number of bedrooms:
4
Number of bathrooms:
2
Terrace:
1
Loggia:
1
Outhouse:
yes
Fire Place:
yes
Furnished:
yes
Condition:
Well kept
Heating:
Central heating
Type of heating system:
Wood
Energy class:
G
Further information
Further information
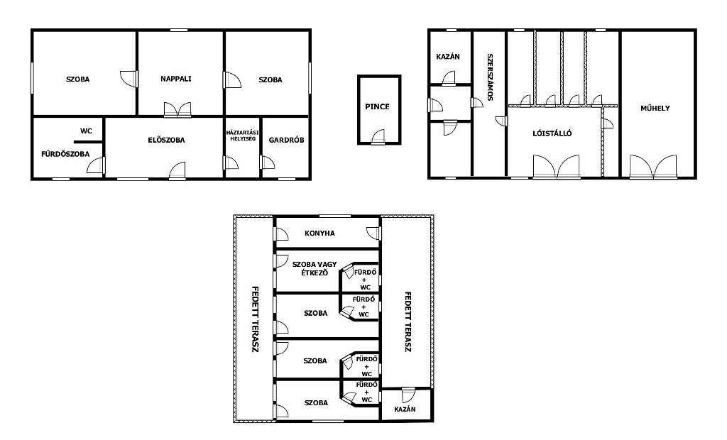
Property description:
Rare opportunity: Horse farm with a huge property, plus 3 guest rooms with their own kitchen and lounge.
Be sure to note our other pictures and videos on our main page: www.immocenter-ungarn.com
The plot is about 30 hectares in size and divided as follows:
• Courtyard with 8.6 hectares of fenced-in land can be acquired by foreigners, as it is excluded from the agricultural zone and can still be built on with approx. 1000m2. Entire country connected to a central cattle herding system, switchable, underground power supply.
• The courtyard has two entrances (visible on satellite image) • The parcel belonging to this with a small porter's house (in need of overhaul) approx. 2700m2
• Parcel with the former farmhouse and the farmhouse belonging to it 5755 m2, adjoining 20.65 hectares of land, for own feed supply (leased land, eligible for subsidies)
The property itself consists of the old Hungarian farmhouse, approx. 70 m²:
- anteroom
- bathroom with bathtub (electric boiler)
- 3 rooms
- Réduit and laundry room
new large brick oven, new air conditioners, new windows and main door
A new building by c. 110 m²:
- Kitchen (with oven, microwave, dishwasher, glass ceramic, pizza / bread oven and grilled meat with 380V electricity)
- dining room
- 3 guest rooms (with bath, toilet / shower / washbasin
TV German and Hungarian, WIFI), covered terrace (one for owners and one for guests), normal terrace, closed parking spaces, pond, everything is fenced and illuminated, wood central heating with radiators, buffer storage, 800 L boiler (can also be heated electrically, also suitable for later solar panels)
Stable building ça 280m2, with 5 boxes, saddle room, horse lavage, additional shower room with lavabo, wood heating with fan to heat the horse stable and separate large studio / workshop with 230/380 V electricity.
Outside area:
• Riding arena 20x 40 meters with solid floor
• Round pen 13 meters in diameter
• 2 weatherproof containers for food storage etc.
• Outside stable 32x8 meters with video surveillance and adjustable panels (currently used with Hungarian gray cattle and horses)
• 2 foil tents 25 meters and 28 meters for the use of hay, straw, machines, etc.
• Fenced park machine place
Price: from 355,000 euros (excluding leased land, machines and tools)
Be sure to note our other pictures and videos on our main page: www.immocenter-ungarn.com
The plot is about 30 hectares in size and divided as follows:
• Courtyard with 8.6 hectares of fenced-in land can be acquired by foreigners, as it is excluded from the agricultural zone and can still be built on with approx. 1000m2. Entire country connected to a central cattle herding system, switchable, underground power supply.
• The courtyard has two entrances (visible on satellite image) • The parcel belonging to this with a small porter's house (in need of overhaul) approx. 2700m2
• Parcel with the former farmhouse and the farmhouse belonging to it 5755 m2, adjoining 20.65 hectares of land, for own feed supply (leased land, eligible for subsidies)
The property itself consists of the old Hungarian farmhouse, approx. 70 m²:
- anteroom
- bathroom with bathtub (electric boiler)
- 3 rooms
- Réduit and laundry room
new large brick oven, new air conditioners, new windows and main door
A new building by c. 110 m²:
- Kitchen (with oven, microwave, dishwasher, glass ceramic, pizza / bread oven and grilled meat with 380V electricity)
- dining room
- 3 guest rooms (with bath, toilet / shower / washbasin
TV German and Hungarian, WIFI), covered terrace (one for owners and one for guests), normal terrace, closed parking spaces, pond, everything is fenced and illuminated, wood central heating with radiators, buffer storage, 800 L boiler (can also be heated electrically, also suitable for later solar panels)
Stable building ça 280m2, with 5 boxes, saddle room, horse lavage, additional shower room with lavabo, wood heating with fan to heat the horse stable and separate large studio / workshop with 230/380 V electricity.
Outside area:
• Riding arena 20x 40 meters with solid floor
• Round pen 13 meters in diameter
• 2 weatherproof containers for food storage etc.
• Outside stable 32x8 meters with video surveillance and adjustable panels (currently used with Hungarian gray cattle and horses)
• 2 foil tents 25 meters and 28 meters for the use of hay, straw, machines, etc.
• Fenced park machine place
Price: from 355,000 euros (excluding leased land, machines and tools)
Furnishings:
- 5 wells drilled
- septic tank
- Electricity 230 / 380V, maximum amperage
- septic tank
- Electricity 230 / 380V, maximum amperage
Location:
In a quiet region, 8 minutes from the M5 motorway exit and 1h15 from Budapest Liszt Ferenc Airport. Bus stop 5 minutes on foot from the farm. Nearest villages Kiskummajsa 8 km (thermal bath) or 10 km Kiskunfelegyhaza (train station, shopping center, doctors, pharmacies, restaurants etc.).
Miscellaneous:
You can find over 250 other checked properties at www.immocenter-ungarn.com
# NEW #
Electrosmog / radiation exposure - classification of the property #
Pay attention to our unique A-B-C classification of the objects at the beginning of the object heading! Explanation on our homepage!
Have you found a house and want to know whether the offer is in order? Often there is the & quot; foreigner surcharge & quot; or hidden defects, let our construction appraiser look at the house and verify the purchase price.
After the & quot; purchase as seen & quot; Complaints are as good as no longer enforceable.
If you wish, you can conclude a consulting contract with us! This service is not tied to a specific object, is voluntary and includes the following services:
* Create an application in which you describe exactly which property is desired
* Suggestions of suitable properties until you have found the right property
* Joint inspection of your dream property; Risk assessment by our building expert / energy consultant (within a radius of Héviz | Keszthely 50 km)
* Support in handling all purchase formalities
* Selection of a German-speaking notary (lawyer)
* German translation of the sales contract
* Re-registration of all suppliers such as electricity, water, gas etc.
* Housekeeping during your absence
At the following fixed price:
Purchase price greater than € 50,000 = 1.27% of the purchase price (including VAT)
Purchase price less than € 50,000 = 2.54% of the purchase price (including VAT)
# NEW #
Electrosmog / radiation exposure - classification of the property #
Pay attention to our unique A-B-C classification of the objects at the beginning of the object heading! Explanation on our homepage!
Have you found a house and want to know whether the offer is in order? Often there is the & quot; foreigner surcharge & quot; or hidden defects, let our construction appraiser look at the house and verify the purchase price.
After the & quot; purchase as seen & quot; Complaints are as good as no longer enforceable.
If you wish, you can conclude a consulting contract with us! This service is not tied to a specific object, is voluntary and includes the following services:
* Create an application in which you describe exactly which property is desired
* Suggestions of suitable properties until you have found the right property
* Joint inspection of your dream property; Risk assessment by our building expert / energy consultant (within a radius of Héviz | Keszthely 50 km)
* Support in handling all purchase formalities
* Selection of a German-speaking notary (lawyer)
* German translation of the sales contract
* Re-registration of all suppliers such as electricity, water, gas etc.
* Housekeeping during your absence
At the following fixed price:
Purchase price greater than € 50,000 = 1.27% of the purchase price (including VAT)
Purchase price less than € 50,000 = 2.54% of the purchase price (including VAT)
Commission Rate:
As a buyer, you pay 2.54% including Hungarian VAT for this property against the invoice and the signing of the purchase contract.
Included in this price is the
- Review of the land register for freedom from encumbrances and ownership rights
- Placement of a German-speaking lawyer (in HU lawyers certify the purchase contracts, no notaries such as in D)
- a German translation of the sales contract
- all re-registrations of the utility such as electricity, gas, water, garbage etc.
Included in this price is the
- Review of the land register for freedom from encumbrances and ownership rights
- Placement of a German-speaking lawyer (in HU lawyers certify the purchase contracts, no notaries such as in D)
- a German translation of the sales contract
- all re-registrations of the utility such as electricity, gas, water, garbage etc.
Remarks:
The information provided by us is based on information provided by the seller or the seller. For the correctness and completeness of the information, no responsibility or liability can be accepted. An intermediate sale and mistakes are reserved.
General business conditions:
We refer to our terms and conditions. Through further use our services do you explain your knowledge and consent.
Pay attention to our unique A-B-C classification of the objects at the beginning of the object heading! Explanation on www.ungarn.online
Have you found a house and want to know whether the offer is in order? Often there is the "foreigner surcharge" or hidden defects, let our building surveyor look at the house and verify the purchase price. After the purchase as seen Complaints are practically no longer enforceable.
You have the opportunity to conclude a consulting contract with us! This service is not tied to a specific object, is voluntary and includes the following services:
- Create an application in which you describe exactly which property is desired on the page https://ogy.de/gesuch
-Suggestions for suitable properties from various channels and from private sellers until you have found the right property
-Joint inspection of your dream property & Risk assessment by our building expert & Energy advisor (within a radius of Héviz | Keszthely 30 km)
- Support in handling all purchase formalities
- ion of an English-speaking notary (layer)
- English sales contract translation
- Re-registration of all providers such as electricity, water, gas etc.
- Housekeeping during your absence
At the following fixed price:
a) Purchase price greater than 50.000 € = 1.27% of the purchase price (including VAT)
b) Purchase price less than 50.000 € = 2.54% of the purchase price (including VAT)
You can find many more of our properties at:
www.immocenter-ungarn.com
Have you found a house and want to know whether the offer is in order? Often there is the "foreigner surcharge" or hidden defects, let our building surveyor look at the house and verify the purchase price. After the purchase as seen Complaints are practically no longer enforceable.
You have the opportunity to conclude a consulting contract with us! This service is not tied to a specific object, is voluntary and includes the following services:
- Create an application in which you describe exactly which property is desired on the page https://ogy.de/gesuch
-Suggestions for suitable properties from various channels and from private sellers until you have found the right property
-Joint inspection of your dream property & Risk assessment by our building expert & Energy advisor (within a radius of Héviz | Keszthely 30 km)
- Support in handling all purchase formalities
- ion of an English-speaking notary (layer)
- English sales contract translation
- Re-registration of all providers such as electricity, water, gas etc.
- Housekeeping during your absence
At the following fixed price:
a) Purchase price greater than 50.000 € = 1.27% of the purchase price (including VAT)
b) Purchase price less than 50.000 € = 2.54% of the purchase price (including VAT)
You can find many more of our properties at:
www.immocenter-ungarn.com
Die Preisangabe in Euro dient der Orientierung und kann je nach Wechselkurs geringfügig abweichen.
Unsere Preisgestaltung für unsere deutschen und ungarischen Kunden ist identisch
Back to the overview




































































