Objekt 2 von 49
Nächstes Objekt
Vorheriges Objekt
Zurück zur Übersicht
Zurück zur Übersicht
Nächstes Objekt
Vorheriges Objekt
Zurück zur ÜbersichtTapolca: (ABA) 2-Zimmer-Wohnung in Top-Zustand im Stadtzentrum
Objekt-Nr.: KK1003
Schnellkontakt
Optionen
Optionen
Basisinformationen
Adresse:
8300 Tapolca
Region:
Veszprém
Gebiet:
Wohngebiet
Preis:
118.000 €
Wohnfläche ca.:
52 m²
Zimmeranzahl:
2
Weitere Informationen
Weitere Informationen
Wohnungstyp:
Etagenwohnung
Etage:
1
Etagenanzahl:
3
Provisionspflichtig:
ja
Provision:
2,42 % des Kaufpreises inkl. MwSt
Küche:
Einbauküche, offen
Bad:
Wanne, Fenster
Anzahl Schlafzimmer:
1
Anzahl Badezimmer:
1
Terrasse:
1
Gäste-WC:
ja
Keller:
nein
Klimaanlage:
ja
Umgebung:
ruhige Gegend
Möbliert:
Teilmöbliert
Qualität der Ausstattung:
normal
Bodenbelag:
Fliesen, Parkett
Zustand:
vollständig renoviert
Heizung:
Zentralheizung, Klimagerät, Radiatoren
Befeuerungsart:
Elektro, Gas
Beschreibung
Beschreibung
Objektbeschreibung:
2-Zimmer-Wohnung in Top-Zustand im Stadtzentrum von Tapolca zu verkaufen
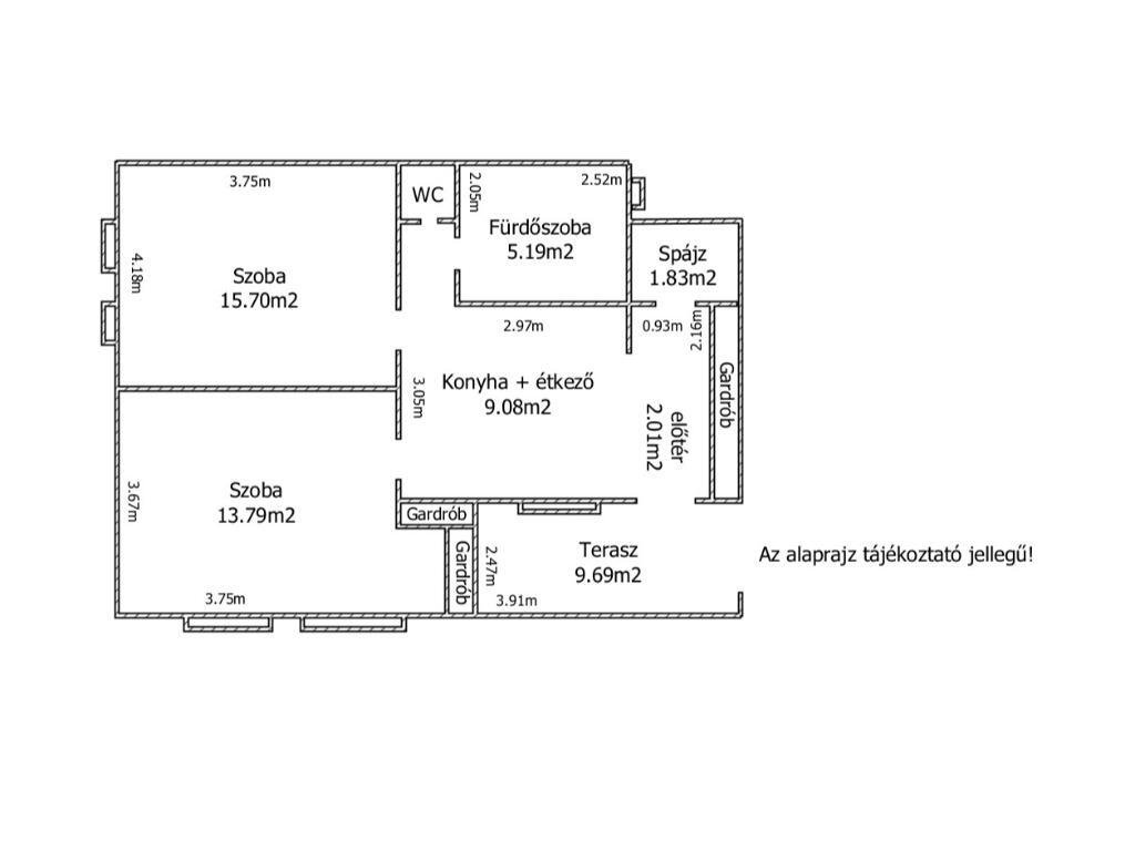
- Hervorragend erhaltene Wohnung, 52 m², 2 Zimmer, Flur, Wohnküche, WC, Badezimmer, Speisekammer, 3 Einbauschränke, Terrasse
- 1. OG (ohne Aufzug), letzte Wohnung vorn – kein Durchgang, daher ist der Bereich vor der Wohnung fast eine private Terrasse
- Kupferverkabelung (neuer Stromzählerkasten mit 32 Ah, in der Wohnung neue 16-Ah-Sicherungen)
- Heizung und Warmwasser über eine Gas-Kombitherme
- Klimaanlage mit Heiz- und Kühlfunktion in der Wohnküche
- Zweiflügelige Dreh-Kipp-Fenster aus Holz mit Rollläden und Insektenschutzgittern
- Einbauschränke im Zimmer (1 Stück) und im Flur (2 Stück)
- Badezimmer mit Badewanne, Fliesen und Sanitäreinrichtungen in modernem Stil
- Alle Kosten (Wasser, Gas, Strom) werden separat abgerechnet
- Nebenkosten 9100,-Ft
-Abstellraum gehört nicht zur Wohnung. Fahrräder und Kinderwagen können jedoch im geschlossenen Treppenhaus im Erdgeschoss abgestellt werden.
- Die Immobilie ist lastenfrei, finanzierbar und kurzfristig, nahezu sofort, bezugsfertig.
- Die Möblierung ist Verhandlungssache.
- Hervorragend erhaltene Wohnung, 52 m², 2 Zimmer, Flur, Wohnküche, WC, Badezimmer, Speisekammer, 3 Einbauschränke, Terrasse
- 1. OG (ohne Aufzug), letzte Wohnung vorn – kein Durchgang, daher ist der Bereich vor der Wohnung fast eine private Terrasse
- Kupferverkabelung (neuer Stromzählerkasten mit 32 Ah, in der Wohnung neue 16-Ah-Sicherungen)
- Heizung und Warmwasser über eine Gas-Kombitherme
- Klimaanlage mit Heiz- und Kühlfunktion in der Wohnküche
- Zweiflügelige Dreh-Kipp-Fenster aus Holz mit Rollläden und Insektenschutzgittern
- Einbauschränke im Zimmer (1 Stück) und im Flur (2 Stück)
- Badezimmer mit Badewanne, Fliesen und Sanitäreinrichtungen in modernem Stil
- Alle Kosten (Wasser, Gas, Strom) werden separat abgerechnet
- Nebenkosten 9100,-Ft
-Abstellraum gehört nicht zur Wohnung. Fahrräder und Kinderwagen können jedoch im geschlossenen Treppenhaus im Erdgeschoss abgestellt werden.
- Die Immobilie ist lastenfrei, finanzierbar und kurzfristig, nahezu sofort, bezugsfertig.
- Die Möblierung ist Verhandlungssache.
Ausstattung:
Komplett
Lage:
Die Immobilie befindet sich in zentraler Lage (am Hauptplatz Tapolca). Alles ist in 1-2 Minuten erreichbar.
Gegenüber der Wohnanlage befindet sich der wunderschöne Malom-See, den Sie in 2-3 Minuten erreichen.
Tapolca ist eine charmante Kleinstadt im westlichen Ungarn und zählt zu den besonderen Geheimtipps nahe dem Balaton. Die Stadt verbindet historische Atmosphäre mit einer außergewöhnlichen Naturattraktion – dem berühmten Höhlensee, auf dem Sie mit kleinen Booten durch ein unterirdisches Höhlensystem gleiten können.
Der idyllische Malomsee im Stadtzentrum, gepflegte Plätze, Cafés und Restaurants verleihen Tapolca eine entspannte, fast mediterrane Stimmung. Die Lage am Rand des Balaton-Oberlands macht den Ort zudem ideal für Ausflüge, Wanderungen und Radtouren. Tapolca ist besonders attraktiv für Besucher, die Kultur, Natur und Ruhe kombinieren möchten.
Entfernungen:
Nach Wien: ca. 190 km
Fahrzeit: etwa 2,5–3 Stunden
Nach Budapest: ca. 165 km
Fahrzeit: etwa 2–2,5 Stunden
Nach Keszthely: ca. 35 km
Fahrzeit: etwa 35–40 Minuten
Tapolca eignet sich damit hervorragend als ruhiger Standort nahe dem Balaton, mit einzigartiger Sehenswürdigkeit und guter Anbindung an die westliche Balatonregion.
Gegenüber der Wohnanlage befindet sich der wunderschöne Malom-See, den Sie in 2-3 Minuten erreichen.
Tapolca ist eine charmante Kleinstadt im westlichen Ungarn und zählt zu den besonderen Geheimtipps nahe dem Balaton. Die Stadt verbindet historische Atmosphäre mit einer außergewöhnlichen Naturattraktion – dem berühmten Höhlensee, auf dem Sie mit kleinen Booten durch ein unterirdisches Höhlensystem gleiten können.
Der idyllische Malomsee im Stadtzentrum, gepflegte Plätze, Cafés und Restaurants verleihen Tapolca eine entspannte, fast mediterrane Stimmung. Die Lage am Rand des Balaton-Oberlands macht den Ort zudem ideal für Ausflüge, Wanderungen und Radtouren. Tapolca ist besonders attraktiv für Besucher, die Kultur, Natur und Ruhe kombinieren möchten.
Entfernungen:
Nach Wien: ca. 190 km
Fahrzeit: etwa 2,5–3 Stunden
Nach Budapest: ca. 165 km
Fahrzeit: etwa 2–2,5 Stunden
Nach Keszthely: ca. 35 km
Fahrzeit: etwa 35–40 Minuten
Tapolca eignet sich damit hervorragend als ruhiger Standort nahe dem Balaton, mit einzigartiger Sehenswürdigkeit und guter Anbindung an die westliche Balatonregion.
Sonstiges:
Sie haben eine Immobilie gefunden und möchten sicher sein, dass Preis und Zustand stimmen?
Gerade im Ausland können überhöhte Preise oder versteckte Mängel auftreten. Unser Bausachverständiger prüft das Objekt vor dem Kauf und hilft, Risiken zu vermeiden.
Denn nach dem Prinzip „gekauft wie gesehen“ sind spätere Mängelrügen kaum durchsetzbar.
Auf Wunsch unsere zusätzlichen Leistungen bei dem Abschluss eines Suchauftrages:
- Suchprofil & passende Objektvorschläge
- Gemeinsame Besichtigungen
- Zustands- und Risikoabschätzung
- Begleitung bei Kaufabwicklung
In der Provision enthalten:
- Grundbuchprüfung (Lasten & Eigentum)
- Vermittlung deutschsprachiger Rechtsanwalt / Notar
- Deutsche Kaufvertragsübersetzung
- Ummeldung von Strom, Wasser, Gas, Müll etc.
- Hausbetreuung auf Wunsch im ersten Jahr
Hinweis:
Die Objektbeschreibung basiert ganz oder teilweise auf den Angaben des Eigentümers. Für die Richtigkeit und Vollständigkeit dieser Informationen übernehmen wir keine Gewähr.
Möchten auch Sie Ihre Immobilie in Deutschland oder Ungarn professionell vermarkten?
Dann kontaktieren Sie uns gerne!
Über 200.000 aktive Interessenten warten bereits auf Ihr Angebot.
Bitte beachten Sie, dass das Exposé möglicherweise unter Zuhilfenahme von Künstlicher Intelligenz (KI) erstellt oder überarbeitet wurde. Dabei wurden jedoch keine wesentlichen Merkmale verändert.
Gerade im Ausland können überhöhte Preise oder versteckte Mängel auftreten. Unser Bausachverständiger prüft das Objekt vor dem Kauf und hilft, Risiken zu vermeiden.
Denn nach dem Prinzip „gekauft wie gesehen“ sind spätere Mängelrügen kaum durchsetzbar.
Auf Wunsch unsere zusätzlichen Leistungen bei dem Abschluss eines Suchauftrages:
- Suchprofil & passende Objektvorschläge
- Gemeinsame Besichtigungen
- Zustands- und Risikoabschätzung
- Begleitung bei Kaufabwicklung
In der Provision enthalten:
- Grundbuchprüfung (Lasten & Eigentum)
- Vermittlung deutschsprachiger Rechtsanwalt / Notar
- Deutsche Kaufvertragsübersetzung
- Ummeldung von Strom, Wasser, Gas, Müll etc.
- Hausbetreuung auf Wunsch im ersten Jahr
Hinweis:
Die Objektbeschreibung basiert ganz oder teilweise auf den Angaben des Eigentümers. Für die Richtigkeit und Vollständigkeit dieser Informationen übernehmen wir keine Gewähr.
Möchten auch Sie Ihre Immobilie in Deutschland oder Ungarn professionell vermarkten?
Dann kontaktieren Sie uns gerne!
Über 200.000 aktive Interessenten warten bereits auf Ihr Angebot.
Bitte beachten Sie, dass das Exposé möglicherweise unter Zuhilfenahme von Künstlicher Intelligenz (KI) erstellt oder überarbeitet wurde. Dabei wurden jedoch keine wesentlichen Merkmale verändert.
Provision:
Als Käufer zahlen Sie bei diesem Objekt 2,42 % inkl. ungarischer MwSt gegen Rechnungslegung und Unterzeichnung des Kaufvertrages. In diesem Preis enthalten ist die
- Überprüfung des Grundbuchs nach Lastenfreiheit und Eigentümerrechten
- Vermittlung eines deutschsprachigen Rechtsanwaltes (in HU beglaubigen Rechtsanwälte die Kaufverträge, keine Notare wie z.B.in D)
- eine deutschsprachige Übersetzung des Kaufvertrages
- alle Ummeldungen der Versorger wie Strom, Gas, Wasser, Müll etc.
- Überprüfung des Grundbuchs nach Lastenfreiheit und Eigentümerrechten
- Vermittlung eines deutschsprachigen Rechtsanwaltes (in HU beglaubigen Rechtsanwälte die Kaufverträge, keine Notare wie z.B.in D)
- eine deutschsprachige Übersetzung des Kaufvertrages
- alle Ummeldungen der Versorger wie Strom, Gas, Wasser, Müll etc.
Anmerkung:
Die von uns gemachten Informationen beruhen auf Angaben des Verkäufers bzw. der Verkäuferin. Für die Richtigkeit und Vollständigkeit der Angaben kann keine Gewähr bzw. Haftung übernommen werden. Ein Zwischenverkauf und Irrtümer sind vorbehalten.
AGB:
Wir weisen auf unsere Allgemeinen Geschäftsbedingungen hin. Durch weitere Inanspruchnahme unserer Leistungen erklären Sie die Kenntnis und Ihr Einverständnis.
Legen Sie ein kostenloses Gesuch an und wir informieren Sie automatisch, wenn passende Objekte eintreffen!
www.immocenter-ungarn.com
www.immocenter-ungarn.com
Die Preisangabe in Euro dient der Orientierung und kann je nach Wechselkurs geringfügig abweichen.
Unsere Preisgestaltung für unsere deutschen und ungarischen Kunden ist identisch
Zurück zur Übersicht





























+43 (0) 677 6282 0325