Ajánlat 2 tól 49
Következo
Elozo
Vissza az ajánlatlistához
Vissza az ajánlatlistához
Következo
Elozo
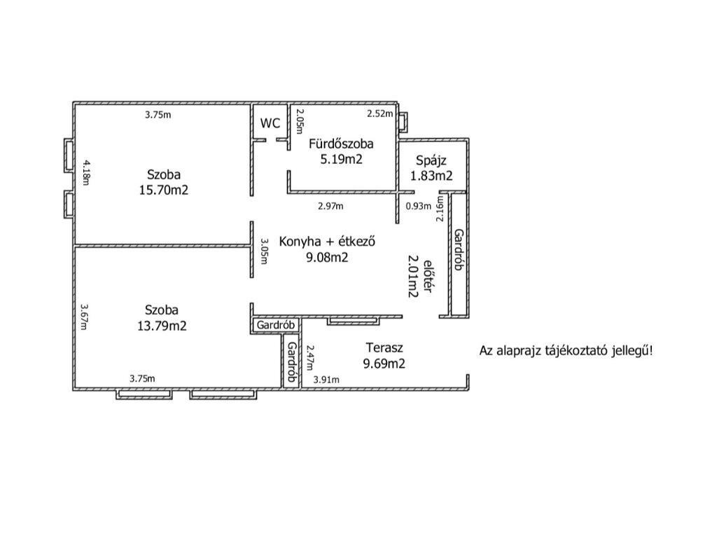
Vissza az ajánlatlistáhozTapolca: 2 szobás, kiváló állapotú lakás Tapolca belvárosában
Nyilvántartási sz.: KK1003
Gyors kapcsolat
Opciók
Opciók
Legfontosabb adatok
Cím:
8300 Tapolca
Régió:
Veszprém
Terület:
Lakóterület
Vételár:
118.000 €
Lakóterület kb.:
52 nm;
Szobák száma:
2
További adatok
További adatok
Lakás típusa:
Emeleti lakás
Emelet:
1
Szintek száma:
3
Jutalékköteles:
igen
Jutalék:
a vételár 1,21%-a, ÁFA-val együtt
Konyha:
Beépített konyha, Nyitva
Fürdoszoba:
Fürdokád, Ablak
Hálószobák száma:
1
Fürdoszobák száma:
1
Terasz:
1
Vendég-WC:
igen
Pince:
nem
Légkondicionáló:
igen
környék/környezet:
nyugodt környék
Bútorozás:
Részben bútorozva
A berendezés minosége:
Hagyományos
Padlóburkolat:
Járólap, Parketta
Állapot:
Teljesen felújított
Futés:
Központifutés, Klíma, Radiators
Futés módja:
Elektromos, Gáz
Részletes leírás
Részletes leírás
ingatlanleírás:
Eladó 2 szobás, kiváló állapotú lakás Tapolca belvárosában
- Kiváló állapotban lévő, 52 m²-es lakás, 2 szoba, előszoba, étkezős konyha, WC, fürdőszoba, kamra, 3 beépített szekrény, terasz
- 1. emelet (lift nincs), elöl az utolsó lakás – nincs átjáró, ezért a lakás előtti terület szinte privát terasz
- Rézvezetékek (új 32Ah-s elektromos panel, új 16Ah-s biztosítékok a lakásban)
- Fűtés és melegvíz gázkazánról
- Légkondicionáló fűtési és hűtési funkcióval az étkezős konyhában
- Kétszárnyú, bukó-nyíló fa ablakok redőnnyel és szúnyoghálóval
- Beépített szekrények a hálószobában (1) és a folyosón (2)
- Fürdőszoba káddal, csempével és modern szerelvényekkel
- Minden költség (víz, gáz, villany) külön számlázva
- Egyéb költségek 9100 Ft
- A tárolóhely nem része a lakás árának. Kerékpárok és babakocsik tárolására azonban van lehetőség a földszinten található zárt lépcsőházban.
- Az ingatlan tehermentes, megfizethető árú, és azonnal beköltözhető.
- A berendezés alkuképes.
- Kiváló állapotban lévő, 52 m²-es lakás, 2 szoba, előszoba, étkezős konyha, WC, fürdőszoba, kamra, 3 beépített szekrény, terasz
- 1. emelet (lift nincs), elöl az utolsó lakás – nincs átjáró, ezért a lakás előtti terület szinte privát terasz
- Rézvezetékek (új 32Ah-s elektromos panel, új 16Ah-s biztosítékok a lakásban)
- Fűtés és melegvíz gázkazánról
- Légkondicionáló fűtési és hűtési funkcióval az étkezős konyhában
- Kétszárnyú, bukó-nyíló fa ablakok redőnnyel és szúnyoghálóval
- Beépített szekrények a hálószobában (1) és a folyosón (2)
- Fürdőszoba káddal, csempével és modern szerelvényekkel
- Minden költség (víz, gáz, villany) külön számlázva
- Egyéb költségek 9100 Ft
- A tárolóhely nem része a lakás árának. Kerékpárok és babakocsik tárolására azonban van lehetőség a földszinten található zárt lépcsőházban.
- Az ingatlan tehermentes, megfizethető árú, és azonnal beköltözhető.
- A berendezés alkuképes.
Felszereltség:
Teljesen
Ház /Telek fekvése:
Az ingatlan központi helyen található (Tapolca főterén). Minden 1-2 perc sétára található.
A lakóparkkal szemben található a gyönyörű Malom-tó, amely 2-3 perc alatt elérhető.
A lakóparkkal szemben található a gyönyörű Malom-tó, amely 2-3 perc alatt elérhető.
Egyéb:
Talált egy ingatlant, és szeretne biztos lenni abban, hogy az ár és az állapot megfelelő?
Különösen külföldön előfordulhatnak felfújt árak vagy rejtett hibák. Építési szakértőnk a vásárlás előtt megvizsgálja az ingatlant, és segít elkerülni a kockázatokat.
Mivel a "látható állapotban eladó" elv alapján a későbbi hibákra vonatkozó igények nehezen érvényesíthetők.
Kérésre további szolgáltatásaink a keresési szerződés megkötésekor a következők:
- Keresési profil és megfelelő ingatlanjavaslatok
- Közös megtekintés
- Állapot- és kockázatértékelés
- Támogatás a vásárlási folyamat során
A jutalék tartalmazza:
- Ingatlan-nyilvántartási ellenőrzés (terhek és tulajdonjog)
- Németül beszélő ügyvéd/közjegyző ajánlása
- Adásvételi szerződés német fordítása
- Villany, víz, gáz, szemétszállítás stb. átruházása
- Ingatlankezelés kérésre az első évben
Megjegyzés:
Az ingatlanleírás részben vagy egészben a tulajdonos által megadott információkon alapul. Nem vállalunk felelősséget ezen információk pontosságáért és teljességéért.
Szeretné professzionálisan értékesíteni ingatlanát Németországban vagy Magyarországon?
Akkor kérjük, vegye fel velünk a kapcsolatot!
Több mint 200 000 aktív potenciális vásárló várja már az ajánlatát.
Felhívjuk figyelmét, hogy az ingatlan adatait mesterséges intelligencia (MI) segítségével hozhatták létre vagy módosíthatták. Azonban semmilyen lényeges funkció nem változott.
Különösen külföldön előfordulhatnak felfújt árak vagy rejtett hibák. Építési szakértőnk a vásárlás előtt megvizsgálja az ingatlant, és segít elkerülni a kockázatokat.
Mivel a "látható állapotban eladó" elv alapján a későbbi hibákra vonatkozó igények nehezen érvényesíthetők.
Kérésre további szolgáltatásaink a keresési szerződés megkötésekor a következők:
- Keresési profil és megfelelő ingatlanjavaslatok
- Közös megtekintés
- Állapot- és kockázatértékelés
- Támogatás a vásárlási folyamat során
A jutalék tartalmazza:
- Ingatlan-nyilvántartási ellenőrzés (terhek és tulajdonjog)
- Németül beszélő ügyvéd/közjegyző ajánlása
- Adásvételi szerződés német fordítása
- Villany, víz, gáz, szemétszállítás stb. átruházása
- Ingatlankezelés kérésre az első évben
Megjegyzés:
Az ingatlanleírás részben vagy egészben a tulajdonos által megadott információkon alapul. Nem vállalunk felelősséget ezen információk pontosságáért és teljességéért.
Szeretné professzionálisan értékesíteni ingatlanát Németországban vagy Magyarországon?
Akkor kérjük, vegye fel velünk a kapcsolatot!
Több mint 200 000 aktív potenciális vásárló várja már az ajánlatát.
Felhívjuk figyelmét, hogy az ingatlan adatait mesterséges intelligencia (MI) segítségével hozhatták létre vagy módosíthatták. Azonban semmilyen lényeges funkció nem változott.
Jutalék:
Vevőként Ön 1,21%-os áfát fizet az ingatlanért a számlázás és a vételi szerződés aláírásakor. Ez az ár tartalmazza:
- Az ingatlan-nyilvántartás ellenőrzése terhek és tulajdonjogok tekintetében
- Németül beszélő ügyvéd ajánlása (Magyarországon ügyvédek hitelesítik a vételi szerződéseket, nem közjegyzők, mint Németországban)
- A vételi szerződés német fordítása
- Minden közműátadás, beleértve a villany-, gáz-, víz- és hulladékkezelési díjakat stb.
- Az ingatlan-nyilvántartás ellenőrzése terhek és tulajdonjogok tekintetében
- Németül beszélő ügyvéd ajánlása (Magyarországon ügyvédek hitelesítik a vételi szerződéseket, nem közjegyzők, mint Németországban)
- A vételi szerződés német fordítása
- Minden közműátadás, beleértve a villany-, gáz-, víz- és hulladékkezelési díjakat stb.
Megjegyzés:
Az általunk nyújtott információk az eladó által szolgáltatott információkon alapulnak. Az információk helyességéért és teljességéért semmilyen garancia vagy felelősség nem vállalható. A köztes értékesítés és a hibák fenntartva vannak.
Általános üzleti feltételek:
Hivatkozunk az Általános Szerződési Feltételeinkre. A szolgáltatásaink további használatával kijelenti, hogy tudatában van ennek és egyetértésben van.
Hozzon létre egy ingyenes kérést, és mi automatikusan tájékoztatjuk Önt, ha megfelelő tárgyak érkeznek!
www.immocenter-ungarn.com
www.immocenter-ungarn.com
Die Preisangabe in Euro dient der Orientierung und kann je nach Wechselkurs geringfügig abweichen.
Unsere Preisgestaltung für unsere deutschen und ungarischen Kunden ist identisch
Vissza az ajánlatlistához




























