Objekt 1 von 49
Nächstes Objekt
Zurück zur Übersicht
Zurück zur Übersicht
Nächstes Objekt
Zurück zur ÜbersichtKeszthely: (AAA) Renovierte EG-Wohnung mit eigenem Garten in einem MFH
Objekt-Nr.: CSI004
Schnellkontakt
Optionen
Optionen
Basisinformationen
Adresse:
8360 Keszthely
Region:
Zala
Gebiet:
Wohngebiet
Preis:
192.000 €
Wohnfläche ca.:
67 m²
Grundstück ca.:
150 m²
Zimmeranzahl:
3
Weitere Informationen
Weitere Informationen
Haustyp:
Mehrfamilienhaus
Provisionspflichtig:
ja
Provision:
1,21 % des Kaufpreises inkl. MwSt
Küche:
Einbauküche, offen
Bad:
Wanne, Fenster
Anzahl Schlafzimmer:
2
Anzahl Badezimmer:
1
Garten:
ja
Keller:
Abstellraum
Umgebung:
ruhige Gegend
Anzahl der Parkflächen:
1 x Garage
Möbliert:
Teilmöbliert
Qualität der Ausstattung:
gehoben
Baujahr:
1972
Bodenbelag:
Fliesen, Laminat
Zustand:
neuwertig
Heizung:
Zentralheizung, Klimagerät, Radiatoren
Befeuerungsart:
Elektro, Gas
Beschreibung
Beschreibung
Objektbeschreibung:
Das Mehrfamilienhaus (4 Wohnungen) ist aus Ziegelstein gebaut und wärmegedämmt.
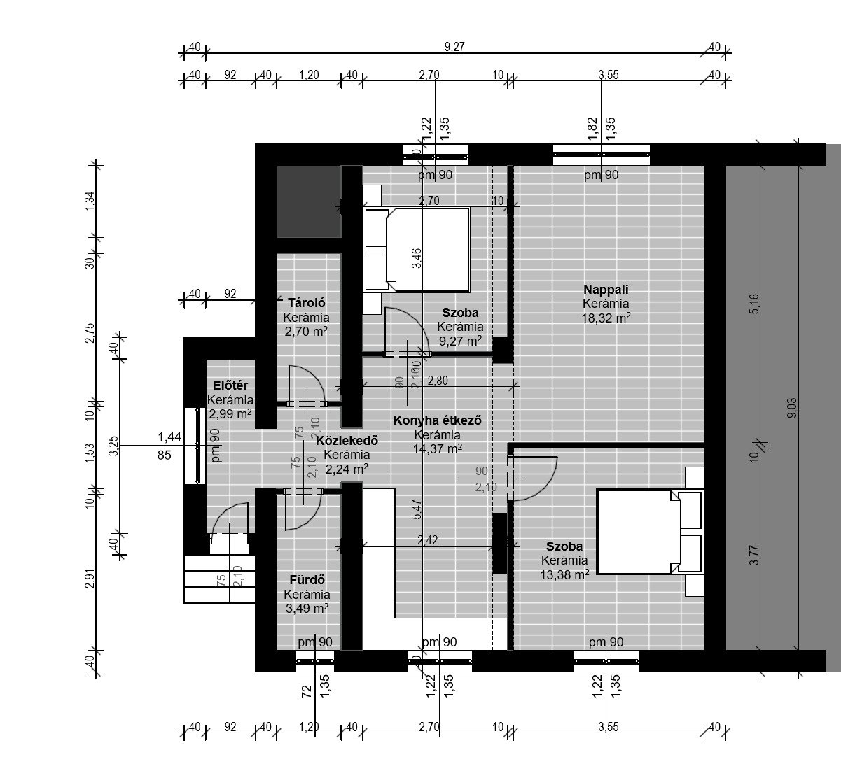
Aufteilung (67 m²): Eingangsbereich, Wohnzimmer, 2 Schlafzimmer, Wohnküche, Speisekammer, Badezimmer.
Die Wohnung ist hell und freundlich.
Kunststofffenster.
Heizung: Gas-Brennwertkessel mit Heizkörpern.
Klimaanlage, 5-kWh-Photovoltaikanlage.
Energieeffizienzklasse A+
Stellplatz in der privaten Garage.
Private Nutzung eines ca. 150 m² großen Gartens.
Ruhige Lage.
Der Balaton ist in wenigen Minuten erreichbar.
Aufteilung (67 m²): Eingangsbereich, Wohnzimmer, 2 Schlafzimmer, Wohnküche, Speisekammer, Badezimmer.
Die Wohnung ist hell und freundlich.
Kunststofffenster.
Heizung: Gas-Brennwertkessel mit Heizkörpern.
Klimaanlage, 5-kWh-Photovoltaikanlage.
Energieeffizienzklasse A+
Stellplatz in der privaten Garage.
Private Nutzung eines ca. 150 m² großen Gartens.
Ruhige Lage.
Der Balaton ist in wenigen Minuten erreichbar.
Ausstattung:
Komplett
Lage:
Keszthely – die charmante Hauptstadt des Balatons!
Keszthely gilt als die „heimliche Kulturhauptstadt“ am Westufer des Balatons und verzaubert Besucher mit einer perfekten Mischung aus Geschichte, lebendigem Stadtleben und malerischer Natur. Das barocke Schloss Festetics, einer der prachtvollsten Adelssitze Ungarns, bildet das Herzstück der Stadt und lädt zu Spaziergängen durch den herrlichen Schlosspark ein.
Die liebevoll restaurierte Altstadt mit ihren gemütlichen Cafés, kleinen Läden und Museen begeistert Jung und Alt. Die Uferpromenade, der Jachthafen und die gepflegten Strandbäder machen Keszthely zu einem wunderbaren Ausgangspunkt für entspannte Urlaubstage am „ungarischen Meer“.
Ob Segeln, Radfahren am Balaton-Radweg oder ein Abstecher ins nahe gelegene Heilbad Hévíz – Keszthely bietet das ganze Jahr über Erholung und abwechslungsreiche Freizeitmöglichkeiten.
Die Entfernungen auf einen Blick:
Wien: ca. 190 km (rund 2,5 Stunden Fahrt)
Budapest: ca. 190 km (ebenfalls rund 2,5 Stunden Fahrt)
Keszthely verbindet ungarische Gastfreundschaft, mediterranes Flair und historische Pracht zu einem Urlaubsort, den man immer wieder gern besucht.
Keszthely – hier trifft der Balaton auf Kultur, Natur und unbeschwertes Lebensgefühl!
Keszthely gilt als die „heimliche Kulturhauptstadt“ am Westufer des Balatons und verzaubert Besucher mit einer perfekten Mischung aus Geschichte, lebendigem Stadtleben und malerischer Natur. Das barocke Schloss Festetics, einer der prachtvollsten Adelssitze Ungarns, bildet das Herzstück der Stadt und lädt zu Spaziergängen durch den herrlichen Schlosspark ein.
Die liebevoll restaurierte Altstadt mit ihren gemütlichen Cafés, kleinen Läden und Museen begeistert Jung und Alt. Die Uferpromenade, der Jachthafen und die gepflegten Strandbäder machen Keszthely zu einem wunderbaren Ausgangspunkt für entspannte Urlaubstage am „ungarischen Meer“.
Ob Segeln, Radfahren am Balaton-Radweg oder ein Abstecher ins nahe gelegene Heilbad Hévíz – Keszthely bietet das ganze Jahr über Erholung und abwechslungsreiche Freizeitmöglichkeiten.
Die Entfernungen auf einen Blick:
Wien: ca. 190 km (rund 2,5 Stunden Fahrt)
Budapest: ca. 190 km (ebenfalls rund 2,5 Stunden Fahrt)
Keszthely verbindet ungarische Gastfreundschaft, mediterranes Flair und historische Pracht zu einem Urlaubsort, den man immer wieder gern besucht.
Keszthely – hier trifft der Balaton auf Kultur, Natur und unbeschwertes Lebensgefühl!
Sonstiges:
Sie haben eine Immobilie gefunden und möchten sicher sein, dass Preis und Zustand stimmen?
Gerade im Ausland können überhöhte Preise oder versteckte Mängel auftreten. Unser Bausachverständiger prüft das Objekt vor dem Kauf und hilft, Risiken zu vermeiden.
Denn nach dem Prinzip „gekauft wie gesehen“ sind spätere Mängelrügen kaum durchsetzbar.
Auf Wunsch unsere zusätzlichen Leistungen bei dem Abschluss eines Suchauftrages:
- Suchprofil & passende Objektvorschläge
- Gemeinsame Besichtigungen
- Zustands- und Risikoabschätzung
- Begleitung bei Kaufabwicklung
In der Provision enthalten:
- Grundbuchprüfung (Lasten & Eigentum)
- Vermittlung deutschsprachiger Rechtsanwalt / Notar
- Deutsche Kaufvertragsübersetzung
- Ummeldung von Strom, Wasser, Gas, Müll etc.
- Hausbetreuung auf Wunsch im ersten Jahr
Hinweis:
Die Objektbeschreibung basiert ganz oder teilweise auf den Angaben des Eigentümers. Für die Richtigkeit und Vollständigkeit dieser Informationen übernehmen wir keine Gewähr.
Möchten auch Sie Ihre Immobilie in Deutschland oder Ungarn professionell vermarkten?
Dann kontaktieren Sie uns gerne!
Über 200.000 aktive Interessenten warten bereits auf Ihr Angebot.
Bitte beachten Sie, dass das Exposé möglicherweise unter Zuhilfenahme von Künstlicher Intelligenz (KI) erstellt oder überarbeitet wurde. Dabei wurden jedoch keine wesentlichen Merkmale verändert.
Gerade im Ausland können überhöhte Preise oder versteckte Mängel auftreten. Unser Bausachverständiger prüft das Objekt vor dem Kauf und hilft, Risiken zu vermeiden.
Denn nach dem Prinzip „gekauft wie gesehen“ sind spätere Mängelrügen kaum durchsetzbar.
Auf Wunsch unsere zusätzlichen Leistungen bei dem Abschluss eines Suchauftrages:
- Suchprofil & passende Objektvorschläge
- Gemeinsame Besichtigungen
- Zustands- und Risikoabschätzung
- Begleitung bei Kaufabwicklung
In der Provision enthalten:
- Grundbuchprüfung (Lasten & Eigentum)
- Vermittlung deutschsprachiger Rechtsanwalt / Notar
- Deutsche Kaufvertragsübersetzung
- Ummeldung von Strom, Wasser, Gas, Müll etc.
- Hausbetreuung auf Wunsch im ersten Jahr
Hinweis:
Die Objektbeschreibung basiert ganz oder teilweise auf den Angaben des Eigentümers. Für die Richtigkeit und Vollständigkeit dieser Informationen übernehmen wir keine Gewähr.
Möchten auch Sie Ihre Immobilie in Deutschland oder Ungarn professionell vermarkten?
Dann kontaktieren Sie uns gerne!
Über 200.000 aktive Interessenten warten bereits auf Ihr Angebot.
Bitte beachten Sie, dass das Exposé möglicherweise unter Zuhilfenahme von Künstlicher Intelligenz (KI) erstellt oder überarbeitet wurde. Dabei wurden jedoch keine wesentlichen Merkmale verändert.
Provision:
Als Käufer zahlen Sie bei diesem Objekt 1,21% inkl. ungarischer MwSt gegen Rechnungslegung und Unterzeichnung des Kaufvertrages. In diesem Preis enthalten ist die
- Überprüfung des Grundbuchs nach Lastenfreiheit und Eigentümerrechten
- Vermittlung eines deutschsprachigen Rechtsanwaltes (in HU beglaubigen Rechtsanwälte die Kaufverträge, keine Notare wie z.B.in D)
- eine deutschsprachige Übersetzung des Kaufvertrages
- alle Ummeldungen der Versorger wie Strom, Gas, Wasser, Müll etc.
- Überprüfung des Grundbuchs nach Lastenfreiheit und Eigentümerrechten
- Vermittlung eines deutschsprachigen Rechtsanwaltes (in HU beglaubigen Rechtsanwälte die Kaufverträge, keine Notare wie z.B.in D)
- eine deutschsprachige Übersetzung des Kaufvertrages
- alle Ummeldungen der Versorger wie Strom, Gas, Wasser, Müll etc.
Anmerkung:
Die von uns gemachten Informationen beruhen auf Angaben des Verkäufers bzw. der Verkäuferin. Für die Richtigkeit und Vollständigkeit der Angaben kann keine Gewähr bzw. Haftung übernommen werden. Ein Zwischenverkauf und Irrtümer sind vorbehalten.
AGB:
Wir weisen auf unsere Allgemeinen Geschäftsbedingungen hin. Durch weitere Inanspruchnahme unserer Leistungen erklären Sie die Kenntnis und Ihr Einverständnis.
Legen Sie ein kostenloses Gesuch an und wir informieren Sie automatisch, wenn passende Objekte eintreffen!
www.immocenter-ungarn.com
www.immocenter-ungarn.com
Die Preisangabe in Euro dient der Orientierung und kann je nach Wechselkurs geringfügig abweichen.
Unsere Preisgestaltung für unsere deutschen und ungarischen Kunden ist identisch
Zurück zur Übersicht




















+43 (0) 677 6282 0325