Ajánlat 7 tól 20
Következo
Elozo
Vissza az ajánlatlistához
Vissza az ajánlatlistához
Következo
Elozo
Vissza az ajánlatlistáhozHévíz: () Projekttelek Hévíz nyugati részén
Nyilvántartási sz.: 77590
Gyors kapcsolat
Opciók
Opciók
Legfontosabb adatok
Cím:
8380 Hévíz
Régió:
Zala
Terület:
Lakóterület
Telek kb.:
1.125 nm;
Vételár:
145.000 €
További adatok
További adatok
Használati mód:
Lakni
Közmuvek:
Közmuvesített
Beépítheto :
beépítés a beépítési terv szerint
Építési engedély:
igen
Lebontás:
igen
javasolt hasznosítás:
Többcsaládos ház
környék/környezet:
bevásárlási lehetőség, nyugodt környék
Részletes leírás
Részletes leírás
ingatlanleírás:
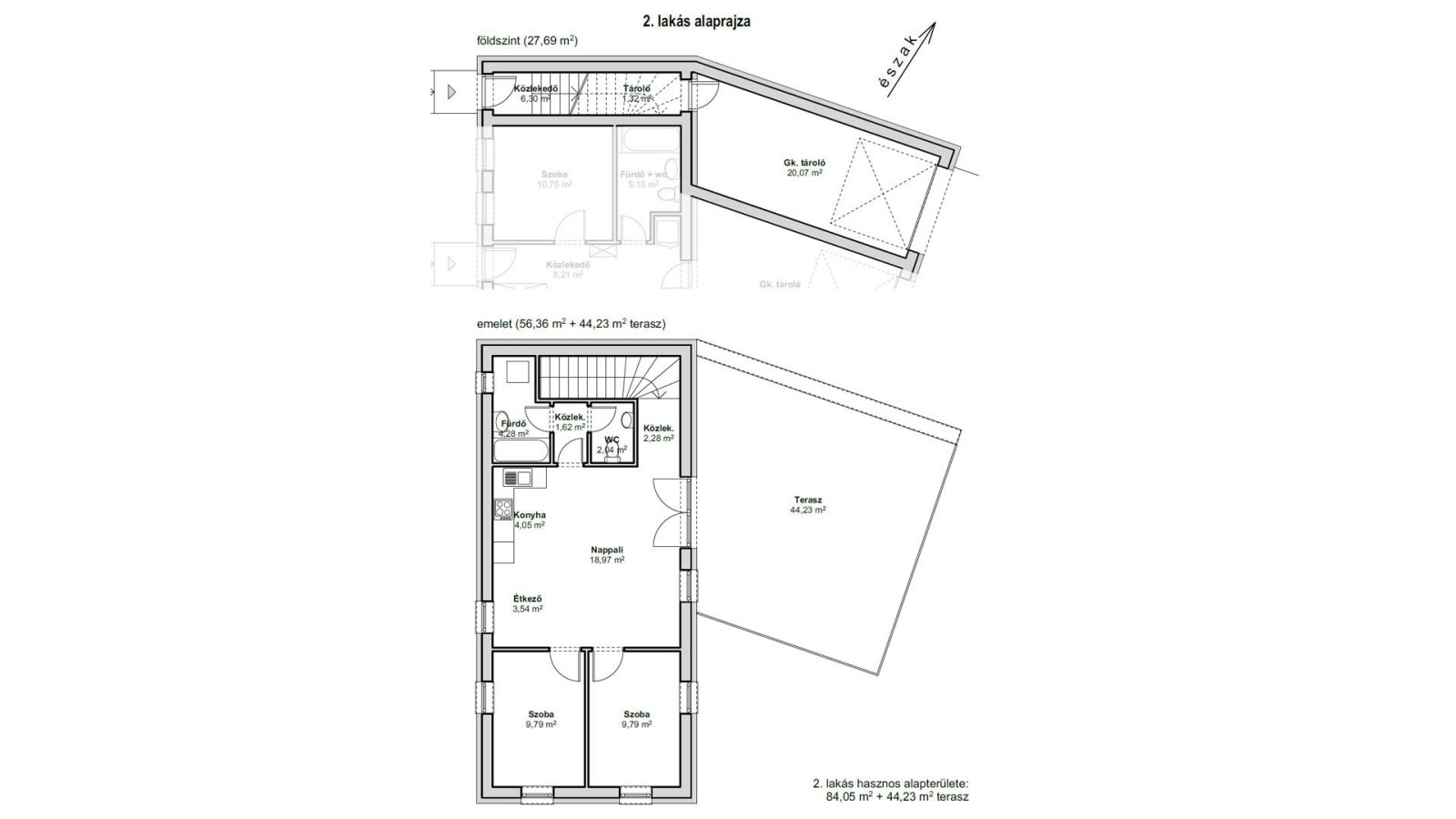
Hévíztől nyugatra, csendes helyen, beépített területen eladó egy 1125 m²-es, összközműves telek. Déli fekvésű udvarral rendelkezik, ideális egy négylakásos társasház építésére. A Magyar Lakásügyi Törvénykönyvnek megfelelő építési tervek és homlokzatok rendelkezésre állnak. A tervezett lakások külön bejárattal, garázsokkal, teraszokkal és saját kerttel, valamint 1,5-3 szobás lakóterekkel rendelkeznek.
Ház /Telek fekvése:
Hévíztől nyugatra
7,2 km-re a Balatontól
7,2 km-re a Balatontól
Egyéb:
🏡 Akár ingatlant szeretne venni, akár eladni Magyarországon, az Immocenter Hungary az Ön hozzáértő és megbízható partnere a helyszínen. Sokéves tapasztalatunkkal, kiváló piaci ismereteinkkel és személyre szabott szolgáltatásunkkal biztonságosan és átláthatóan végigvezetjük Önt a teljes vételi vagy eladási folyamaton.
💡 Tipp: Keresse egyedi A-B-C besorolásunkat ingatlanjaink nevében! A besorolás részletes magyarázatát honlapunkon találja.
✅ Ingatlan felmérése – Nyugalom vásárlás előtt
Már talált egy ingatlant, és biztos szeretne lenni abban, hogy az ár és az állapot megfelelő? Okleveles épületfelmérőnk alaposan megvizsgálja a kívánt ingatlant, és korrekt vételárat állapít meg. Így elkerülheti a költséges meglepetéseket – mivel Magyarországon általában a „látható állapotban eladó” elve érvényesül, és a későbbi hibák miatti igények nehezen érvényesíthetők.
🤝 Egyéni konzultáció – személyes, független és korrekt
Kérésre független tanácsadói szerződést köthet velünk – teljesen önkéntes és nem kötött konkrét ingatlanhoz. Szolgáltatásunk a következőket tartalmazza:
✔️ Keresési kritériumainak részletes rögzítése személyes keresési profilban
✔️ Javaslatok megfelelő ingatlanokra – amíg meg nem találja az ideális ingatlant
✔️ Közös megtekintés, beleértve az épületfelmérőnk és energetikai tanácsadónk által végzett alapos kockázatértékelést (Hévíz/Keszthely kb. 50 km-es körzetében)
✔️ Támogatás és segítségnyújtás az összes adásvételi formaság intézésében
✔️ Németül beszélő közjegyző vagy ügyvéd ajánlása
✔️ Az adásvételi szerződés német fordításának biztosítása és németül beszélő ügyvéd támogatása
✔️ Segítségnyújtás a közművek (villany, gáz, víz stb.) átruházásában
✔️ Kérésre: megbízható ingatlankezelés távollétében
🌟 Immocenter Hungary – biztonságos, hozzáértő és mindig az Ön mellett.
Reméljük, hogy személyesen is találkozhatunk Önnel, és valóra válthatjuk álmát egy saját ingatlanról Magyarországon!
💡 Tipp: Keresse egyedi A-B-C besorolásunkat ingatlanjaink nevében! A besorolás részletes magyarázatát honlapunkon találja.
✅ Ingatlan felmérése – Nyugalom vásárlás előtt
Már talált egy ingatlant, és biztos szeretne lenni abban, hogy az ár és az állapot megfelelő? Okleveles épületfelmérőnk alaposan megvizsgálja a kívánt ingatlant, és korrekt vételárat állapít meg. Így elkerülheti a költséges meglepetéseket – mivel Magyarországon általában a „látható állapotban eladó” elve érvényesül, és a későbbi hibák miatti igények nehezen érvényesíthetők.
🤝 Egyéni konzultáció – személyes, független és korrekt
Kérésre független tanácsadói szerződést köthet velünk – teljesen önkéntes és nem kötött konkrét ingatlanhoz. Szolgáltatásunk a következőket tartalmazza:
✔️ Keresési kritériumainak részletes rögzítése személyes keresési profilban
✔️ Javaslatok megfelelő ingatlanokra – amíg meg nem találja az ideális ingatlant
✔️ Közös megtekintés, beleértve az épületfelmérőnk és energetikai tanácsadónk által végzett alapos kockázatértékelést (Hévíz/Keszthely kb. 50 km-es körzetében)
✔️ Támogatás és segítségnyújtás az összes adásvételi formaság intézésében
✔️ Németül beszélő közjegyző vagy ügyvéd ajánlása
✔️ Az adásvételi szerződés német fordításának biztosítása és németül beszélő ügyvéd támogatása
✔️ Segítségnyújtás a közművek (villany, gáz, víz stb.) átruházásában
✔️ Kérésre: megbízható ingatlankezelés távollétében
🌟 Immocenter Hungary – biztonságos, hozzáértő és mindig az Ön mellett.
Reméljük, hogy személyesen is találkozhatunk Önnel, és valóra válthatjuk álmát egy saját ingatlanról Magyarországon!
Megjegyzés:
Az általunk nyújtott információk az eladó által szolgáltatott információkon alapulnak. Az információk helyességéért és teljességéért semmilyen garancia vagy felelősség nem vállalható. A köztes értékesítés és a hibák fenntartva vannak.
Általános üzleti feltételek:
Hivatkozunk az Általános Szerződési Feltételeinkre. A szolgáltatásaink további használatával kijelenti, hogy tudatában van ennek és egyetértésben van.
Hozzon létre egy ingyenes kérést, és mi automatikusan tájékoztatjuk Önt, ha megfelelő tárgyak érkeznek!
www.immocenter-ungarn.com
www.immocenter-ungarn.com
Die Preisangabe in Euro dient der Orientierung und kann je nach Wechselkurs geringfügig abweichen.
Unsere Preisgestaltung für unsere deutschen und ungarischen Kunden ist identisch
Vissza az ajánlatlistához

































