Objeto 7 de 20
Inmueble siguiente
Inmueble anterior
Volver al resumen
Volver al resumen
Inmueble siguiente
Inmueble anterior
Volver al resumenHévíz: () Parcela del proyecto en el oeste de Hévíz
Referencia: 77590
Contacto rápido
Opciones
Opciones
Datos generales
Dirección:
8380 Hévíz
Región:
Zala
Área:
Área residencial
Terreno aprox.:
1.125 m²
Precio:
145.000 €
Más datos
Más datos
Tipo de uso:
Vivienda
tipo de terreno:
Urbanizado
Edificabilidad:
Edificación según plan urbanístico
Permiso de edificación:
sí
Demolición:
sí
Uso recomendado:
Casa plurifamiliar
entorno:
zona de tiendas, zona tranquila
Descripción detallada
Descripción detallada
Descripción del inmueble:
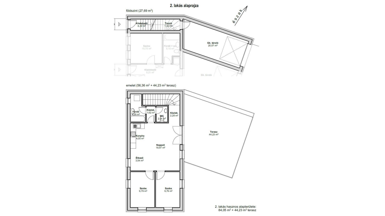
En una zona tranquila al oeste de Hévíz, se vende un terreno de 1125 m² con todos los servicios, en una zona urbanizada. Cuenta con un patio orientado al sur y es ideal para la construcción de una vivienda multifamiliar de cuatro unidades residenciales. Disponemos de planos y elevaciones de acuerdo con el Código de Vivienda Húngaro. Los apartamentos proyectados ofrecen entradas independientes, garajes, terrazas y jardines privados, así como espacios habitables de entre 1,5 y 3 habitaciones.
Ubicación:
Al oeste de Hévíz
A 7,2 km del lago Balatón
A 7,2 km del lago Balatón
Otros:
🏡 Si busca comprar o vender una propiedad en Hungría, Immocenter Hungría es su socio competente y de confianza. Gracias a nuestros años de experiencia, excelente conocimiento del mercado y servicio personalizado, le guiamos de forma segura y transparente durante todo el proceso de compraventa.
💡 Consejo: ¡Busque nuestra exclusiva clasificación A-B-C en el título de nuestras propiedades! Encontrará una explicación detallada de esta clasificación en nuestra página web.
✅ Inspección de la propiedad: tranquilidad antes de comprar
¿Ya ha encontrado una propiedad y quiere asegurarse de que el precio y el estado sean los adecuados? Nuestro perito inmobiliario certificado inspeccionará a fondo la propiedad que desea y evaluará un precio de compra justo. De esta forma, evitará sorpresas costosas, ya que en Hungría se aplica generalmente el principio de "se vende como se ve" y las reclamaciones posteriores por defectos son difíciles de hacer valer.
🤝 Consulta individual: personal, independiente y justa
Si lo solicita, puede firmar un contrato de consultoría independiente con nosotros, totalmente voluntario y sin vinculación a ninguna propiedad específica. Nuestro servicio incluye:
✔️ Registro detallado de sus criterios de búsqueda en un perfil de búsqueda personal
✔️ Sugerencias de propiedades adecuadas hasta encontrar la ideal
✔️ Visitas conjuntas, incluyendo una evaluación exhaustiva de riesgos por parte de nuestro perito en edificación y asesor energético (en un radio de aproximadamente 50 km alrededor de Hévíz/Keszthely)
✔️ Asistencia y apoyo en la gestión de todos los trámites de compraventa
✔️ Referencia a un notario o abogado de habla alemana
✔️ Entrega de una traducción al alemán del contrato de compraventa y apoyo de un abogado de habla alemana
✔️ Asistencia con la transferencia de suministros (electricidad, gas, agua, etc.)
✔️ Si lo solicita: gestión fiable de la propiedad durante su ausencia
🌟 Immocenter Hungría: seguro, competente y siempre a su lado.
¡Esperamos conocerle personalmente y hacer realidad su sueño de tener una propiedad en Hungría!
💡 Consejo: ¡Busque nuestra exclusiva clasificación A-B-C en el título de nuestras propiedades! Encontrará una explicación detallada de esta clasificación en nuestra página web.
✅ Inspección de la propiedad: tranquilidad antes de comprar
¿Ya ha encontrado una propiedad y quiere asegurarse de que el precio y el estado sean los adecuados? Nuestro perito inmobiliario certificado inspeccionará a fondo la propiedad que desea y evaluará un precio de compra justo. De esta forma, evitará sorpresas costosas, ya que en Hungría se aplica generalmente el principio de "se vende como se ve" y las reclamaciones posteriores por defectos son difíciles de hacer valer.
🤝 Consulta individual: personal, independiente y justa
Si lo solicita, puede firmar un contrato de consultoría independiente con nosotros, totalmente voluntario y sin vinculación a ninguna propiedad específica. Nuestro servicio incluye:
✔️ Registro detallado de sus criterios de búsqueda en un perfil de búsqueda personal
✔️ Sugerencias de propiedades adecuadas hasta encontrar la ideal
✔️ Visitas conjuntas, incluyendo una evaluación exhaustiva de riesgos por parte de nuestro perito en edificación y asesor energético (en un radio de aproximadamente 50 km alrededor de Hévíz/Keszthely)
✔️ Asistencia y apoyo en la gestión de todos los trámites de compraventa
✔️ Referencia a un notario o abogado de habla alemana
✔️ Entrega de una traducción al alemán del contrato de compraventa y apoyo de un abogado de habla alemana
✔️ Asistencia con la transferencia de suministros (electricidad, gas, agua, etc.)
✔️ Si lo solicita: gestión fiable de la propiedad durante su ausencia
🌟 Immocenter Hungría: seguro, competente y siempre a su lado.
¡Esperamos conocerle personalmente y hacer realidad su sueño de tener una propiedad en Hungría!
Nota:
La información proporcionada por nosotros se basa en la información proporcionada por el vendedor o el vendedor. Para la exactitud e integridad de la información, ninguna responsabilidad puede ser aceptada. Una venta intermedia y los errores son reservados.
Condiciones generales:
Nos referimos a nuestros términos y condiciones. A través de más utilizar nuestros servicios usted explicar su conocimiento y consentimiento.
Cree una solicitud gratuita y le informaremos automáticamente cuando lleguen los objetos adecuados.
www.immocenter-ungarn.com
www.immocenter-ungarn.com
Die Preisangabe in Euro dient der Orientierung und kann je nach Wechselkurs geringfügig abweichen.
Unsere Preisgestaltung für unsere deutschen und ungarischen Kunden ist identisch
Volver al resumen

































