Property 3 from 34
Next property
Previous property
Back to the overview
code
Back to the overview
Next property
Previous property
Back to the overviewBalatonfenyves: XXX
Property ID: FB4767
Quick Contact
Options
Options
Basic information
Address:
8646 Balatonfenyves
Region:
Somogy
Area:
City center
Price:
260.000 €
Living space:
50 sq. m.
No. of rooms:
3
Details
Details
Type of apartment:
Appartment
Storey:
2
Number of floors:
3
Subject to commission:
yes
Commission Rate:
1.27% of the purchase price including VAT
Useable area:
70 sq. m.
Kitchen:
Fitted kitchen, Open
Bathroom:
Shower, Window
Number of bedrooms:
1
Number of bathrooms:
1
Terrace:
1
Basement:
yes
Air condition:
yes
Number of parking spaces:
1 x Outside parking space
Furnished:
yes
Views:
Seaview
Last renovation/ refurbishment:
2021
Quality of fittings:
Luxury
Year of construction:
2021
Floor covering:
Tiles, Parquet flooring
Condition:
Fully renovated
Heating:
Air conditioning unit
Type of heating system:
Electric
Further information
Further information
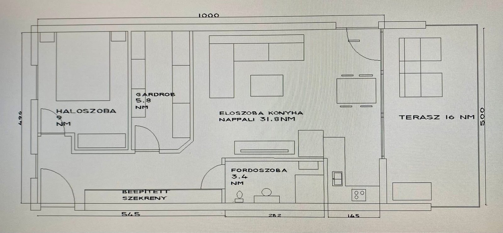
Property description:
Attention Balaton and beach lovers!
A unique apartment on the 2nd floor is for sale.
This three-story building, equipped with an elevator, was completely renovated in 2021 and comprises 31 apartments.
It is situated in a beautiful, tree-lined setting in a resort area, right on the water.
The apartment offers breathtaking panoramic views of Lake Balaton, Badacsony, and the Tanuheyky Mountains.
Enjoy the unforgettable views from the open-plan living/dining area with kitchen and the spacious terrace – all year round.
Apartment Features:
50 m² modern apartment
16 m² covered panoramic terrace facing north with safety glass railing
Rooms:
Open-plan living/dining area with large glass front, hallway with built-in wardrobe and wall paneling, bedroom with the option to install a walk-in closet or built-in wardrobe, storage room (currently used as a cloakroom with shelving), bathroom with shower and toilet, spacious covered terrace with blinds
Enclosed courtyard, outdoor parking space directly next to the apartment
Two entrances: one via the stairwell, the other via the external staircase
Large built-in wardrobes in the hallway
Storage room with shelving and window, which can easily be converted into a bedroom if needed
Thermally insulated, high-quality windows and doors with insect screens and electric roller shutters
Air conditioning and heating: Air conditioning and infrared panels ensure optimal comfort.
Bathroom with towel warmer
Hot water supply via electric boiler
Enclosed, private property with lawn, landscaped garden, sunbathing area, and swimming area, as well as direct access to Lake Balaton
Integrated Wi-Fi camera
Included in the price are the high-quality garden and indoor furniture shown, the fitted kitchen with appliances, the sound system in the living room, the large television, wall art, etc.
Thanks to the apartment's excellent location, the following amenities and leisure activities are in the immediate vicinity:
With its direct waterfront location and panoramic views, this beautiful house is ideally suited as a holiday home, investment property, or permanent residence.
The property is currently undergoing probate proceedings, which are expected to be completed by the end of January/beginning of February.
The house can be occupied immediately after the proceedings are concluded.
Spend the 2026 season at Lake Balaton in your own fully equipped and furnished house!
... Simply move in and enjoy the luxury and diverse leisure opportunities of this dreamlike property.
A unique apartment on the 2nd floor is for sale.
This three-story building, equipped with an elevator, was completely renovated in 2021 and comprises 31 apartments.
It is situated in a beautiful, tree-lined setting in a resort area, right on the water.
The apartment offers breathtaking panoramic views of Lake Balaton, Badacsony, and the Tanuheyky Mountains.
Enjoy the unforgettable views from the open-plan living/dining area with kitchen and the spacious terrace – all year round.
Apartment Features:
50 m² modern apartment
16 m² covered panoramic terrace facing north with safety glass railing
Rooms:
Open-plan living/dining area with large glass front, hallway with built-in wardrobe and wall paneling, bedroom with the option to install a walk-in closet or built-in wardrobe, storage room (currently used as a cloakroom with shelving), bathroom with shower and toilet, spacious covered terrace with blinds
Enclosed courtyard, outdoor parking space directly next to the apartment
Two entrances: one via the stairwell, the other via the external staircase
Large built-in wardrobes in the hallway
Storage room with shelving and window, which can easily be converted into a bedroom if needed
Thermally insulated, high-quality windows and doors with insect screens and electric roller shutters
Air conditioning and heating: Air conditioning and infrared panels ensure optimal comfort.
Bathroom with towel warmer
Hot water supply via electric boiler
Enclosed, private property with lawn, landscaped garden, sunbathing area, and swimming area, as well as direct access to Lake Balaton
Integrated Wi-Fi camera
Included in the price are the high-quality garden and indoor furniture shown, the fitted kitchen with appliances, the sound system in the living room, the large television, wall art, etc.
Thanks to the apartment's excellent location, the following amenities and leisure activities are in the immediate vicinity:
With its direct waterfront location and panoramic views, this beautiful house is ideally suited as a holiday home, investment property, or permanent residence.
The property is currently undergoing probate proceedings, which are expected to be completed by the end of January/beginning of February.
The house can be occupied immediately after the proceedings are concluded.
Spend the 2026 season at Lake Balaton in your own fully equipped and furnished house!
... Simply move in and enjoy the luxury and diverse leisure opportunities of this dreamlike property.
Furnishings:
Full equipment
Location:
- Restaurants, shopping facilities such as Aldi, Coop, and seasonal shops
- Pharmacy, doctor's office, dentist
- School, kindergarten, cinema
- Train station and the historic Kisvasút bus station (for 75 years)
- Central beach with a 1 km long promenade, marina, yacht club, restaurants, buffets, and ice cream parlors
- Numerous developed beaches
- Nagybereki National Park 1 km
Imremajor "Majorka" 3 km
- Pharmacy, doctor's office, dentist
- School, kindergarten, cinema
- Train station and the historic Kisvasút bus station (for 75 years)
- Central beach with a 1 km long promenade, marina, yacht club, restaurants, buffets, and ice cream parlors
- Numerous developed beaches
- Nagybereki National Park 1 km
Imremajor "Majorka" 3 km
Miscellaneous:
Whether you're looking to buy or sell a property in Hungary, Immocenter Hungary is your competent and trustworthy partner right on the ground. With our many years of experience, excellent market knowledge, and personalized service, we guide you safely and transparently through the entire buying or selling process.
Tip: Look out for our unique A-B-C classification in the title of our properties! You can find a detailed explanation of this classification on our homepage.
Property Inspection – Peace of Mind Before You Buy
Have you already found a property and want to be sure that the price and condition are right? Our certified building surveyor will thoroughly inspect your desired property and assess a fair purchase price. This way, you avoid costly surprises – because in Hungary, the principle of "sold as seen" generally applies, and subsequent claims for defects are difficult to enforce.
Individual Consultation – Personal, Independent, and Fair
If you wish, you can enter into an independent consulting agreement with us – entirely voluntary and not tied to any specific property. Our services include:
- Detailed recording of your search criteria in a personal search profile
- Suggestions of suitable properties – until you find your ideal property
- Joint viewings including a thorough risk assessment by our building surveyor and energy consultant (within a radius of approximately 50 km around Hévíz/Keszthely)
- Support and assistance with all purchase formalities
- Referral to a German-speaking notary or lawyer
- Provision of a German translation of the purchase agreement and support from a German-speaking lawyer
- Assistance with transferring utilities (electricity, gas, water, etc.)
- Upon request: reliable property management during your absence
Immocenter Hungary – secure, competent, and always by your side.
We look forward to meeting you personally and making your dream of owning a property in Hungary a reality!
Tip: Look out for our unique A-B-C classification in the title of our properties! You can find a detailed explanation of this classification on our homepage.
Property Inspection – Peace of Mind Before You Buy
Have you already found a property and want to be sure that the price and condition are right? Our certified building surveyor will thoroughly inspect your desired property and assess a fair purchase price. This way, you avoid costly surprises – because in Hungary, the principle of "sold as seen" generally applies, and subsequent claims for defects are difficult to enforce.
Individual Consultation – Personal, Independent, and Fair
If you wish, you can enter into an independent consulting agreement with us – entirely voluntary and not tied to any specific property. Our services include:
- Detailed recording of your search criteria in a personal search profile
- Suggestions of suitable properties – until you find your ideal property
- Joint viewings including a thorough risk assessment by our building surveyor and energy consultant (within a radius of approximately 50 km around Hévíz/Keszthely)
- Support and assistance with all purchase formalities
- Referral to a German-speaking notary or lawyer
- Provision of a German translation of the purchase agreement and support from a German-speaking lawyer
- Assistance with transferring utilities (electricity, gas, water, etc.)
- Upon request: reliable property management during your absence
Immocenter Hungary – secure, competent, and always by your side.
We look forward to meeting you personally and making your dream of owning a property in Hungary a reality!
Commission Rate:
As the buyer, you will pay 2.54% including Hungarian VAT for this property upon invoicing and signing of the purchase agreement. This price includes:
- Verification of the land register for encumbrances and ownership rights
- Referral to a German-speaking lawyer (in Hungary, lawyers authenticate purchase agreements, not notaries as in Germany)
- A German translation of the purchase agreement
- All utility transfers such as electricity, gas, water, waste disposal, etc.
- Verification of the land register for encumbrances and ownership rights
- Referral to a German-speaking lawyer (in Hungary, lawyers authenticate purchase agreements, not notaries as in Germany)
- A German translation of the purchase agreement
- All utility transfers such as electricity, gas, water, waste disposal, etc.
Remarks:
The information provided by us is based on information provided by the seller or the seller. For the correctness and completeness of the information, no responsibility or liability can be accepted. An intermediate sale and mistakes are reserved.
General business conditions:
We refer to our terms and conditions. Through further use our services do you explain your knowledge and consent.
Pay attention to our unique A-B-C classification of the objects at the beginning of the object heading! Explanation on www.ungarn.online
Have you found a house and want to know whether the offer is in order? Often there is the "foreigner surcharge" or hidden defects, let our building surveyor look at the house and verify the purchase price. After the purchase as seen Complaints are practically no longer enforceable.
You have the opportunity to conclude a consulting contract with us! This service is not tied to a specific object, is voluntary and includes the following services:
- Create an application in which you describe exactly which property is desired on the page https://ogy.de/gesuch
-Suggestions for suitable properties from various channels and from private sellers until you have found the right property
-Joint inspection of your dream property & Risk assessment by our building expert & Energy advisor (within a radius of Héviz | Keszthely 30 km)
- Support in handling all purchase formalities
- ion of an English-speaking notary (layer)
- English sales contract translation
- Re-registration of all providers such as electricity, water, gas etc.
- Housekeeping during your absence
At the following fixed price:
a) Purchase price greater than 50.000 € = 1.27% of the purchase price (including VAT)
b) Purchase price less than 50.000 € = 2.54% of the purchase price (including VAT)
You can find many more of our properties at:
www.immocenter-ungarn.com
Have you found a house and want to know whether the offer is in order? Often there is the "foreigner surcharge" or hidden defects, let our building surveyor look at the house and verify the purchase price. After the purchase as seen Complaints are practically no longer enforceable.
You have the opportunity to conclude a consulting contract with us! This service is not tied to a specific object, is voluntary and includes the following services:
- Create an application in which you describe exactly which property is desired on the page https://ogy.de/gesuch
-Suggestions for suitable properties from various channels and from private sellers until you have found the right property
-Joint inspection of your dream property & Risk assessment by our building expert & Energy advisor (within a radius of Héviz | Keszthely 30 km)
- Support in handling all purchase formalities
- ion of an English-speaking notary (layer)
- English sales contract translation
- Re-registration of all providers such as electricity, water, gas etc.
- Housekeeping during your absence
At the following fixed price:
a) Purchase price greater than 50.000 € = 1.27% of the purchase price (including VAT)
b) Purchase price less than 50.000 € = 2.54% of the purchase price (including VAT)
You can find many more of our properties at:
www.immocenter-ungarn.com
Die Preisangabe in Euro dient der Orientierung und kann je nach Wechselkurs geringfügig abweichen.
Unsere Preisgestaltung für unsere deutschen und ungarischen Kunden ist identisch
Back to the overview






















