Objekt 26 von 401
Nächstes Objekt
Vorheriges Objekt
Zurück zur Übersicht
Zurück zur Übersicht
Nächstes Objekt
Vorheriges Objekt
Zurück zur ÜbersichtTapolca: (AAA) Hervorragendes Familienhaus im Norden von Tapolca
Objekt-Nr.: KK2223
Schnellkontakt
Optionen
Optionen
Basisinformationen
Adresse:
8300 Tapolca
Region:
Veszprém
Gebiet:
Wohngebiet
Preis:
293.000 €
Wohnfläche ca.:
93 m²
Grundstück ca.:
410 m²
Zimmeranzahl:
3
Weitere Informationen
Weitere Informationen
Haustyp:
Einfamilienhaus
Provisionspflichtig:
ja
Provision:
1,21 % des Kaufpreises inkl. MwSt
Küche:
Einbauküche, offen
Bad:
Wanne, Fenster, Bidet
Anzahl Schlafzimmer:
2
Anzahl Badezimmer:
1
Terrasse:
1
Sauna:
ja
Anzahl der Parkflächen:
1 x Garage
Möbliert:
Teilmöbliert
Letzte Modernisierung/ Sanierung:
2024
Qualität der Ausstattung:
gehoben
Baujahr:
1996
Bodenbelag:
Fliesen, Laminat
Zustand:
vollständig renoviert
Heizung:
Ofenheizung, Zentralheizung, Radiatoren
Befeuerungsart:
Gas, Holz
Beschreibung
Beschreibung
Objektbeschreibung:
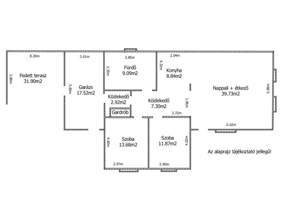
In einer der gefragtesten Wohnlagen von Tapolca präsentiert sich dieses hervorragend erhaltene Einfamilienhaus als ideale Immobilie für Menschen, die ein neues Leben in Ungarn beginnen möchten oder eine wertstabile Investition nahe dem Balaton suchen.
Das Haus überzeugt mit einer Wohnfläche von ca. 130 m² auf zwei Ebenen und einem gepflegten Grundstück von rund 726 m². Die Immobilie bietet insgesamt 4 Zimmer, darunter 3 Schlafzimmer und 2 Badezimmer, und eignet sich somit perfekt für Familien, Paare oder Auswanderer mit Platzbedarf.
Durch die laufenden Modernisierungen befindet sich das Haus in einem sehr guten Zustand und kann ohne großen Renovierungsaufwand bezogen werden.
Wohnkomfort & Ausstattung:
Das Haus vereint klassischen Baustil mit modernen Elementen:
großzügiger Wohn- und Essbereich mit offener Küche
Zugang zur überdachten Terrasse mit Blick in den Garten
hochwertige Bodenbeläge (Parkett und Fliesen)
2 Badezimmer (Dusche & Badewanne)
moderne Kunststofffenster
Teilunterkellerung (ca. 20 m²)
Technisch wurde die Immobilie ebenfalls modernisiert:
neue Gasheizung (2023)
Klimaanlagen auf beiden Etagen (2024)
erneuertes Dach (2019)
Alarmanlage und Sicherheitskameras
Der Garten mit Obstbäumen bietet viel Platz für Erholung, Grillabende und ein entspanntes Leben im Freien.
Das Haus überzeugt mit einer Wohnfläche von ca. 130 m² auf zwei Ebenen und einem gepflegten Grundstück von rund 726 m². Die Immobilie bietet insgesamt 4 Zimmer, darunter 3 Schlafzimmer und 2 Badezimmer, und eignet sich somit perfekt für Familien, Paare oder Auswanderer mit Platzbedarf.
Durch die laufenden Modernisierungen befindet sich das Haus in einem sehr guten Zustand und kann ohne großen Renovierungsaufwand bezogen werden.
Wohnkomfort & Ausstattung:
Das Haus vereint klassischen Baustil mit modernen Elementen:
großzügiger Wohn- und Essbereich mit offener Küche
Zugang zur überdachten Terrasse mit Blick in den Garten
hochwertige Bodenbeläge (Parkett und Fliesen)
2 Badezimmer (Dusche & Badewanne)
moderne Kunststofffenster
Teilunterkellerung (ca. 20 m²)
Technisch wurde die Immobilie ebenfalls modernisiert:
neue Gasheizung (2023)
Klimaanlagen auf beiden Etagen (2024)
erneuertes Dach (2019)
Alarmanlage und Sicherheitskameras
Der Garten mit Obstbäumen bietet viel Platz für Erholung, Grillabende und ein entspanntes Leben im Freien.
Ausstattung:
Alle Anschlüsse (Wasser, Gas, Strom und Abwasser) vorhanden
Lage:
Tapolca ist eine der charmantesten Kleinstädte am nordwestlichen Rand des Balaton. Der Ort vereint historische Atmosphäre, besondere Naturerlebnisse und eine entspannte Lebensqualität – ideal für Urlauber, Ausflügler und Ruhesuchende.
Das absolute Highlight ist der einzigartige Tapolca Lake Cave, ein unterirdischer Höhlensee, den Sie mit kleinen Booten erkunden können. Dieses außergewöhnliche Naturerlebnis macht Tapolca zu einem der bekanntesten Ausflugsziele der Region.
Im Zentrum lädt der malerische Malom Lake Tapolca mit seinen historischen Mühlen, Cafés und Restaurants zum Verweilen ein. Die Kombination aus Wasser, alten Gebäuden und gemütlicher Atmosphäre verleiht der Stadt einen fast mediterranen Charme.
Die Umgebung von Tapolca ist geprägt von den vulkanischen Hügeln des Balaton-Oberlands. Wanderungen, Radtouren und Ausflüge zu Weinbergen und Aussichtspunkten bieten beeindruckende Panoramablicke über die Region.
Entfernungen:
nach Wien: ca. 190 km (Fahrzeit etwa 2–2,5 Stunden)
nach Budapest: ca. 180 km (Fahrzeit etwa 2 Stunden)
nach Keszthely am Balaton: ca. 15 km (Fahrzeit etwa 15–20 Minuten)
Tapolca bietet eine besondere Mischung aus Natur, Geschichte und Lebensqualität. Die Nähe zum Balaton, die einzigartige Höhlenlandschaft und die charmante Altstadt machen die Stadt zu einem idealen Ziel für Erholung, Ausflüge oder auch ein dauerhaftes Leben in einer der schönsten Regionen Ungarns.
Das absolute Highlight ist der einzigartige Tapolca Lake Cave, ein unterirdischer Höhlensee, den Sie mit kleinen Booten erkunden können. Dieses außergewöhnliche Naturerlebnis macht Tapolca zu einem der bekanntesten Ausflugsziele der Region.
Im Zentrum lädt der malerische Malom Lake Tapolca mit seinen historischen Mühlen, Cafés und Restaurants zum Verweilen ein. Die Kombination aus Wasser, alten Gebäuden und gemütlicher Atmosphäre verleiht der Stadt einen fast mediterranen Charme.
Die Umgebung von Tapolca ist geprägt von den vulkanischen Hügeln des Balaton-Oberlands. Wanderungen, Radtouren und Ausflüge zu Weinbergen und Aussichtspunkten bieten beeindruckende Panoramablicke über die Region.
Entfernungen:
nach Wien: ca. 190 km (Fahrzeit etwa 2–2,5 Stunden)
nach Budapest: ca. 180 km (Fahrzeit etwa 2 Stunden)
nach Keszthely am Balaton: ca. 15 km (Fahrzeit etwa 15–20 Minuten)
Tapolca bietet eine besondere Mischung aus Natur, Geschichte und Lebensqualität. Die Nähe zum Balaton, die einzigartige Höhlenlandschaft und die charmante Altstadt machen die Stadt zu einem idealen Ziel für Erholung, Ausflüge oder auch ein dauerhaftes Leben in einer der schönsten Regionen Ungarns.
Sonstiges:
Sie haben eine Immobilie gefunden und möchten sicher sein, dass Preis und Zustand stimmen?
Gerade im Ausland können überhöhte Preise oder versteckte Mängel auftreten. Unser Bausachverständiger prüft das Objekt vor dem Kauf und hilft, Risiken zu vermeiden.
Denn nach dem Prinzip „gekauft wie gesehen“ sind spätere Mängelrügen kaum durchsetzbar.
Auf Wunsch unsere zusätzlichen Leistungen bei dem Abschluss eines Suchauftrages:
- Suchprofil & passende Objektvorschläge
- Gemeinsame Besichtigungen
- Zustands- und Risikoabschätzung
- Begleitung bei Kaufabwicklung
In der Provision enthalten:
- Grundbuchprüfung (Lasten & Eigentum)
- Vermittlung deutschsprachiger Rechtsanwalt / Notar
- Deutsche Kaufvertragsübersetzung
- Ummeldung von Strom, Wasser, Gas, Müll etc.
- Hausbetreuung auf Wunsch im ersten Jahr
Hinweis:
Die Objektbeschreibung basiert ganz oder teilweise auf den Angaben des Eigentümers. Für die Richtigkeit und Vollständigkeit dieser Informationen übernehmen wir keine Gewähr.
Möchten auch Sie Ihre Immobilie in Deutschland oder Ungarn professionell vermarkten?
Dann kontaktieren Sie uns gerne!
Über 200.000 aktive Interessenten warten bereits auf Ihr Angebot.
Bitte beachten Sie, dass das Exposé möglicherweise unter Zuhilfenahme von Künstlicher Intelligenz (KI) erstellt oder überarbeitet wurde. Dabei wurden jedoch keine wesentlichen Merkmale verändert.
Gerade im Ausland können überhöhte Preise oder versteckte Mängel auftreten. Unser Bausachverständiger prüft das Objekt vor dem Kauf und hilft, Risiken zu vermeiden.
Denn nach dem Prinzip „gekauft wie gesehen“ sind spätere Mängelrügen kaum durchsetzbar.
Auf Wunsch unsere zusätzlichen Leistungen bei dem Abschluss eines Suchauftrages:
- Suchprofil & passende Objektvorschläge
- Gemeinsame Besichtigungen
- Zustands- und Risikoabschätzung
- Begleitung bei Kaufabwicklung
In der Provision enthalten:
- Grundbuchprüfung (Lasten & Eigentum)
- Vermittlung deutschsprachiger Rechtsanwalt / Notar
- Deutsche Kaufvertragsübersetzung
- Ummeldung von Strom, Wasser, Gas, Müll etc.
- Hausbetreuung auf Wunsch im ersten Jahr
Hinweis:
Die Objektbeschreibung basiert ganz oder teilweise auf den Angaben des Eigentümers. Für die Richtigkeit und Vollständigkeit dieser Informationen übernehmen wir keine Gewähr.
Möchten auch Sie Ihre Immobilie in Deutschland oder Ungarn professionell vermarkten?
Dann kontaktieren Sie uns gerne!
Über 200.000 aktive Interessenten warten bereits auf Ihr Angebot.
Bitte beachten Sie, dass das Exposé möglicherweise unter Zuhilfenahme von Künstlicher Intelligenz (KI) erstellt oder überarbeitet wurde. Dabei wurden jedoch keine wesentlichen Merkmale verändert.
Provision:
Als Käufer zahlen Sie bei diesem Objekt 1,21% inkl. ungarischer MwSt gegen Rechnungslegung und Unterzeichnung des Kaufvertrages. In diesem Preis enthalten ist die
- Überprüfung des Grundbuchs nach Lastenfreiheit und Eigentümerrechten
- Vermittlung eines deutschsprachigen Rechtsanwaltes (in HU beglaubigen Rechtsanwälte die Kaufverträge, keine Notare wie z.B.in D)
- eine deutschsprachige Übersetzung des Kaufvertrages
- alle Ummeldungen der Versorger wie Strom, Gas, Wasser, Müll etc.
- Überprüfung des Grundbuchs nach Lastenfreiheit und Eigentümerrechten
- Vermittlung eines deutschsprachigen Rechtsanwaltes (in HU beglaubigen Rechtsanwälte die Kaufverträge, keine Notare wie z.B.in D)
- eine deutschsprachige Übersetzung des Kaufvertrages
- alle Ummeldungen der Versorger wie Strom, Gas, Wasser, Müll etc.
Anmerkung:
Die von uns gemachten Informationen beruhen auf Angaben des Verkäufers bzw. der Verkäuferin. Für die Richtigkeit und Vollständigkeit der Angaben kann keine Gewähr bzw. Haftung übernommen werden. Ein Zwischenverkauf und Irrtümer sind vorbehalten.
AGB:
Wir weisen auf unsere Allgemeinen Geschäftsbedingungen hin. Durch weitere Inanspruchnahme unserer Leistungen erklären Sie die Kenntnis und Ihr Einverständnis.
Legen Sie ein kostenloses Gesuch an und wir informieren Sie automatisch, wenn passende Objekte eintreffen!
www.immocenter-ungarn.com
www.immocenter-ungarn.com
Die Preisangabe in Euro dient der Orientierung und kann je nach Wechselkurs geringfügig abweichen.
Unsere Preisgestaltung für unsere deutschen und ungarischen Kunden ist identisch
Zurück zur Übersicht



















+43 (0) 677 6282 0325