Object 353 van 591
Volgende object
Vorige object
Terug naar het overzicht
Terug naar het overzicht
Volgende object
Vorige object
Terug naar het overzichtKiskunhalas: Driegezinswoning, een meergeneratiehuis in een rustige straat.
Object-Nr.: SIK06
Snel contact
Opties
Opties
Kerngegevens
Adres:
6400 Kiskunhalas
Regio:
Bács-Kiskun
Gebied:
Woongebied
Prijs:
139.500 €
Woonoppervlak ca.:
236 m2.
Grondstuk:
1.444 m2.
Aantal kamers:
5
Verdere gegevens
Verdere gegevens
Woningtype:
Meergezinswoning
Nuttig oppervlak.:
260 m2.
Keuken:
Inbouwkeuken, Open
Bad:
Douche, Ligbad, Raam
Aantal slaapkamers:
4
Aantal badkamers:
4
Terras:
1
Kostgangerwoning:
ja
Gastentoilet:
ja
Tuin:
ja
Open Haard:
ja
Kelder:
deels onderkelderd
Airco:
ja
Omgeving:
Rustige omgeving
Gemeubileerd:
Deels gemeubileerd
Kwaliteit van de uitrusting:
Gedistingeerd
Vloerbedekking:
Vloertegels, Parketvloer
Toestand:
Volledig gerenoveerd
Verwarming:
Luchtbehandelingsinstallatie
Verwarmingssoort:
Elektra
Uitvoerige beschrijving
Uitvoerige beschrijving
Objectbeschrijving:
Het pand is vanaf twee straten bereikbaar en is daarom ideaal geschikt als meergeneratiewoning of gastenverblijf.
... Renovaties, moderniseringen:
Recentelijk zijn er diverse renovaties uitgevoerd:
Vernieuwing van het gehele water- en elektriciteitsnet
Aanleg van een nieuw rioleringssysteem
Stucwerk en gevelbekleding van de buitenmuren
Vernieuwing van de binnenbekleding, complete schilderbeurt
Renovatie van de badkamers
Installatie van 3 inverter airconditioningunits
Tuinaanleg (in uitvoering), aanleg van parkeerplaatsen
Buitenplan beschikbaar voor de ontwikkeling van een pension
Appartementbeschrijving:
Appartement 1 – Gezellig appartement met twee grote kamers
2 ruime kamers
Keuken, woonkamer, bijkeuken
Badkamer en apart toilet
Verwarming: Open haard
Warm water: Nieuwe elektrische boiler
Voorzien van aparte meters
Appartement 2 – Eigen ingang, overdekt terras
Keuken + eethoek
Grote kamer
Badkamer + toilet
Overdekt terras van 11 m²
Verwarming: 2 inverter airconditioningunits
Warm water: Nieuwe elektrische cv-ketel
Tussen de twee appartementen bevindt zich:
Toegang tot de zolder + berging
32 m² droge, goed geventileerde kelder van baksteen
Appartement 3 – Moderne, lichte kamers en comfortabele voorzieningen
Ruime, zonnige woonkamer
Keuken + eetgedeelte
Slaapkamer
Hal, badkamer + toilet
Verwarming: Open haard
Warm water: Nieuwe elektrische cv-ketel
Airconditioning met invertertechnologie
Slim verlichtingssysteem
Aparte ingang
Tuin met zitgedeelte
Prijzen – ook afzonderlijk beschikbaar!
Appartementen 1 en 2 samen (met aparte ingang vanaf de straat): 32.000.000 HUF
Appartement 3 (met aparte ingang, aangelegde tuin): 25.500.000 HUF
Totale waarde van het onroerend goed: 53.000.000 HUF
De huidige eigenaar is bezig met de officiële splitsing van het perceel.
Kenmerken:
Wateraansluiting
Rioolaansluiting
Elektriciteitsaansluiting
Gasaansluiting aan de straat
Nieuwe, thermisch geïsoleerde PVC-ramen en -deuren + enkele houten ramen en deuren
Meer informatie:
Volledig nieuwe installaties: in overleg
Het stadscentrum is op loopafstand.
... Renovaties, moderniseringen:
Recentelijk zijn er diverse renovaties uitgevoerd:
Vernieuwing van het gehele water- en elektriciteitsnet
Aanleg van een nieuw rioleringssysteem
Stucwerk en gevelbekleding van de buitenmuren
Vernieuwing van de binnenbekleding, complete schilderbeurt
Renovatie van de badkamers
Installatie van 3 inverter airconditioningunits
Tuinaanleg (in uitvoering), aanleg van parkeerplaatsen
Buitenplan beschikbaar voor de ontwikkeling van een pension
Appartementbeschrijving:
Appartement 1 – Gezellig appartement met twee grote kamers
2 ruime kamers
Keuken, woonkamer, bijkeuken
Badkamer en apart toilet
Verwarming: Open haard
Warm water: Nieuwe elektrische boiler
Voorzien van aparte meters
Appartement 2 – Eigen ingang, overdekt terras
Keuken + eethoek
Grote kamer
Badkamer + toilet
Overdekt terras van 11 m²
Verwarming: 2 inverter airconditioningunits
Warm water: Nieuwe elektrische cv-ketel
Tussen de twee appartementen bevindt zich:
Toegang tot de zolder + berging
32 m² droge, goed geventileerde kelder van baksteen
Appartement 3 – Moderne, lichte kamers en comfortabele voorzieningen
Ruime, zonnige woonkamer
Keuken + eetgedeelte
Slaapkamer
Hal, badkamer + toilet
Verwarming: Open haard
Warm water: Nieuwe elektrische cv-ketel
Airconditioning met invertertechnologie
Slim verlichtingssysteem
Aparte ingang
Tuin met zitgedeelte
Prijzen – ook afzonderlijk beschikbaar!
Appartementen 1 en 2 samen (met aparte ingang vanaf de straat): 32.000.000 HUF
Appartement 3 (met aparte ingang, aangelegde tuin): 25.500.000 HUF
Totale waarde van het onroerend goed: 53.000.000 HUF
De huidige eigenaar is bezig met de officiële splitsing van het perceel.
Kenmerken:
Wateraansluiting
Rioolaansluiting
Elektriciteitsaansluiting
Gasaansluiting aan de straat
Nieuwe, thermisch geïsoleerde PVC-ramen en -deuren + enkele houten ramen en deuren
Meer informatie:
Volledig nieuwe installaties: in overleg
Het stadscentrum is op loopafstand.
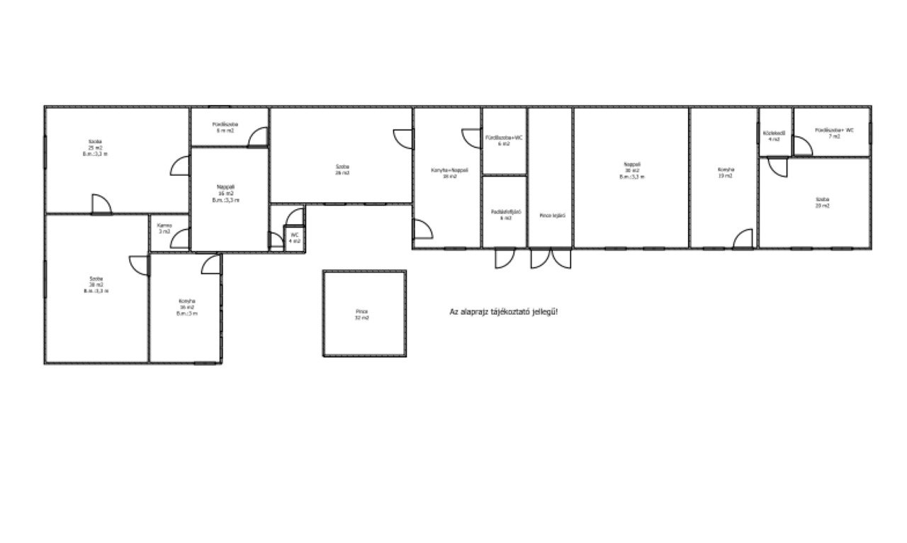
Indeling:
Volledig
Ligging:
Kiskunhalas is een levendig stadje in de zuidelijke Hongaarse vlakte, bekend om zijn vriendelijke sfeer, traditionele markten en het beroemde Halasi-kant – een verfijnd kantwerk dat de stad internationale faam heeft bezorgd. Het historische stadscentrum, met zijn goed onderhouden pleinen, cafés en kleine winkeltjes, nodigt bezoekers uit tot een ontspannen wandeling.
De omgeving kenmerkt zich door uitgestrekte, open landschappen, volop zonneschijn en rustige natuurgebieden. Wandelaars en fietsers vinden er talloze paden door velden, weiden en kleine bossen. Kiskunhalas beschikt ook over een goed uitgerust thermaal kuuroord en strandresort, dat bezoekers uit de hele regio aantrekt. De combinatie van natuur, cultuur, ontspanning en regionale keuken maakt het een aantrekkelijke bestemming voor reizigers die het authentieke Zuid-Hongarije willen ervaren.
Afstanden (ongeveer)
Wenen: circa 350 km
Boedapest: circa 150 km
Keszthely aan het Balatonmeer: circa 150-160 km
Kiskunhalas is een uitstekend vertrekpunt voor excursies naar de Zuidelijke Hongaarse Laagvlakte, wijngebieden en de vele natuurgebieden in de omgeving. Het stadje biedt een rustige, authentieke Hongaarse levensstijl – gecombineerd met een goede infrastructuur en warme gastvrijheid.
De omgeving kenmerkt zich door uitgestrekte, open landschappen, volop zonneschijn en rustige natuurgebieden. Wandelaars en fietsers vinden er talloze paden door velden, weiden en kleine bossen. Kiskunhalas beschikt ook over een goed uitgerust thermaal kuuroord en strandresort, dat bezoekers uit de hele regio aantrekt. De combinatie van natuur, cultuur, ontspanning en regionale keuken maakt het een aantrekkelijke bestemming voor reizigers die het authentieke Zuid-Hongarije willen ervaren.
Afstanden (ongeveer)
Wenen: circa 350 km
Boedapest: circa 150 km
Keszthely aan het Balatonmeer: circa 150-160 km
Kiskunhalas is een uitstekend vertrekpunt voor excursies naar de Zuidelijke Hongaarse Laagvlakte, wijngebieden en de vele natuurgebieden in de omgeving. Het stadje biedt een rustige, authentieke Hongaarse levensstijl – gecombineerd met een goede infrastructuur en warme gastvrijheid.
Overige:
Of u nu een woning in Hongarije wilt kopen of verkopen, Immocenter Hongarije is uw competente en betrouwbare partner ter plaatse. Met onze jarenlange ervaring, uitstekende marktkennis en persoonlijke service begeleiden wij u veilig en transparant door het gehele koop- of verkoopproces.
Tip: Let op onze unieke A-B-C-classificatie in de titel van onze woningen! Een gedetailleerde uitleg van deze classificatie vindt u op onze homepage.
Woninginspectie – Gemoedsrust vóór aankoop
Heeft u al een woning gevonden en wilt u er zeker van zijn dat de prijs en de staat kloppen? Onze gecertificeerde bouwkundig inspecteur inspecteert uw gewenste woning grondig en bepaalt een eerlijke aankoopprijs. Zo voorkomt u kostbare verrassingen – in Hongarije geldt over het algemeen het principe "verkocht zoals gezien", waardoor latere claims voor gebreken moeilijk te handhaven zijn.
Persoonlijk advies – Persoonlijk, onafhankelijk en eerlijk
Indien gewenst kunt u een onafhankelijk adviesgesprek met ons aangaan – geheel vrijwillig en niet gebonden aan een specifieke woning. Onze diensten omvatten:
- Een gedetailleerde vastlegging van uw zoekcriteria in een persoonlijk zoekprofiel
- Suggesties voor geschikte woningen – totdat u uw ideale woning vindt
- Gezamenlijke bezichtigingen inclusief een grondige risicobeoordeling door onze bouwkundig inspecteur en energieadviseur (binnen een straal van circa 50 km rond Hévíz/Keszthely)
- Ondersteuning en assistentie bij alle aankoopformaliteiten
- Doorverwijzing naar een Duitstalige notaris of advocaat
- Het verzorgen van een Duitse vertaling van de koopovereenkomst en ondersteuning door een Duitstalige advocaat
- Hulp bij het overzetten van nutsvoorzieningen (elektriciteit, gas, water, etc.)
- Op verzoek: betrouwbaar vastgoedbeheer tijdens uw afwezigheid
Immocenter Hongarije – veilig, competent en altijd aan uw zijde.
We kijken ernaar uit u persoonlijk te ontmoeten en uw droom van een eigen woning in Hongarije te verwezenlijken!
Tip: Let op onze unieke A-B-C-classificatie in de titel van onze woningen! Een gedetailleerde uitleg van deze classificatie vindt u op onze homepage.
Woninginspectie – Gemoedsrust vóór aankoop
Heeft u al een woning gevonden en wilt u er zeker van zijn dat de prijs en de staat kloppen? Onze gecertificeerde bouwkundig inspecteur inspecteert uw gewenste woning grondig en bepaalt een eerlijke aankoopprijs. Zo voorkomt u kostbare verrassingen – in Hongarije geldt over het algemeen het principe "verkocht zoals gezien", waardoor latere claims voor gebreken moeilijk te handhaven zijn.
Persoonlijk advies – Persoonlijk, onafhankelijk en eerlijk
Indien gewenst kunt u een onafhankelijk adviesgesprek met ons aangaan – geheel vrijwillig en niet gebonden aan een specifieke woning. Onze diensten omvatten:
- Een gedetailleerde vastlegging van uw zoekcriteria in een persoonlijk zoekprofiel
- Suggesties voor geschikte woningen – totdat u uw ideale woning vindt
- Gezamenlijke bezichtigingen inclusief een grondige risicobeoordeling door onze bouwkundig inspecteur en energieadviseur (binnen een straal van circa 50 km rond Hévíz/Keszthely)
- Ondersteuning en assistentie bij alle aankoopformaliteiten
- Doorverwijzing naar een Duitstalige notaris of advocaat
- Het verzorgen van een Duitse vertaling van de koopovereenkomst en ondersteuning door een Duitstalige advocaat
- Hulp bij het overzetten van nutsvoorzieningen (elektriciteit, gas, water, etc.)
- Op verzoek: betrouwbaar vastgoedbeheer tijdens uw afwezigheid
Immocenter Hongarije – veilig, competent en altijd aan uw zijde.
We kijken ernaar uit u persoonlijk te ontmoeten en uw droom van een eigen woning in Hongarije te verwezenlijken!
Provisie:
Als koper betaalt u 2,54% inclusief Hongaarse btw voor deze woning bij facturering en ondertekening van de koopovereenkomst. Deze prijs is inclusief:
- Controle van het kadaster op hypotheken en andere lasten
- Doorverwijzing naar een Duitstalige advocaat (in Hongarije worden koopovereenkomsten door advocaten geauthenticeerd, niet door notarissen zoals in Duitsland)
- Een Duitse vertaling van de koopovereenkomst
- Alle nutsvoorzieningen zoals elektriciteit, gas, water, afvalverwerking, etc.
- Controle van het kadaster op hypotheken en andere lasten
- Doorverwijzing naar een Duitstalige advocaat (in Hongarije worden koopovereenkomsten door advocaten geauthenticeerd, niet door notarissen zoals in Duitsland)
- Een Duitse vertaling van de koopovereenkomst
- Alle nutsvoorzieningen zoals elektriciteit, gas, water, afvalverwerking, etc.
Opmerking:
De door ons verstrekte informatie is gebaseerd op gegevens van de verkoper. Wij kunnen de juistheid of volledigheid van deze informatie niet garanderen en aanvaarden hiervoor geen aansprakelijkheid. Het object kan reeds verkocht zijn en er kunnen fouten in staan.
Algemene voorwaarden:
Lees onze algemene voorwaarden. Door gebruik te blijven maken van onze diensten, erkent en aanvaardt u deze.
Dien een gratis zoekopdracht in en wij stellen u automatisch op de hoogte wanneer er geschikte woningen beschikbaar komen!
www.immocenter-ungarn.com
www.immocenter-ungarn.com
Die Preisangabe in Euro dient der Orientierung und kann je nach Wechselkurs geringfügig abweichen.
Unsere Preisgestaltung für unsere deutschen und ungarischen Kunden ist identisch
Terug naar het overzicht












































+43 (0) 677 6282 0325