Objekt 68 von 109
Nächstes Objekt
Vorheriges Objekt
Zurück zur Übersicht
Zurück zur Übersicht
Nächstes Objekt
Vorheriges Objekt
Zurück zur ÜbersichtTapolca: (AAA) Bürgerliches Einfamilienhaus in der Gartenlage der netten Gemeinde Tapolca
Objekt-Nr.: EH006
Schnellkontakt
Optionen
Optionen
Basisinformationen
Adresse:
8300 Tapolca
Region:
Zala
Gebiet:
Wohngebiet
Preis:
245.000 €
Wohnfläche ca.:
120 m²
Grundstück ca.:
510 m²
Zimmeranzahl:
3
Weitere Informationen
Weitere Informationen
Haustyp:
Einfamilienhaus
Provisionspflichtig:
ja
Provision:
1,27 % des Kaufpreises inkl. MwSt
Nutzfläche ca.:
130 m²
Küche:
Einbauküche
Bad:
Dusche, Bidet
Anzahl Schlafzimmer:
2
Anzahl Badezimmer:
2
Terrasse:
1
Einliegerwohnung:
ja
Keller:
teil unterkellert
Anzahl der Parkflächen:
1 x Carport; 1 x Garage
Möbliert:
Teilmöbliert
Baujahr:
1930
Bodenbelag:
Fliesen, Parkett
Zustand:
gepflegt
Heizung:
Zentralheizung, Radiatoren
Befeuerungsart:
Gas
Beschreibung
Beschreibung
Objektbeschreibung:
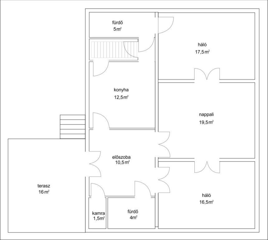
Ein bürgerliches Einfamilienhaus mit 90 m² Wohnfläche, drei Zimmer, zwei Bäder und einer 16 m² großen Terrasse in der beliebten Gartenlage von Tapolca.
Diese Immobilie besticht nicht nur durch ihr elegantes Design, sondern auch durch modernen Wohnkomfort und ist somit die ideale Wahl für Familien, die Wert auf Qualität legen. Der 510 m² große, gepflegte Garten lädt zum Entspannen ein: Hier können Kinder unbeschwert spielen, während Sie die frische Luft genießen.
Das Haus verfügt zusätzlich über eine 30 m² große Einliegerwohnung mit separatem Eingang. Garage und Stellplatz auf dem Grundstück garantieren höchsten Wohnkomfort. Dank des hervorragenden technischen Zustands können Sie sofort einziehen und die Vorzüge Ihres neuen Zuhauses genießen.
Diese Immobilie besticht nicht nur durch ihr elegantes Design, sondern auch durch modernen Wohnkomfort und ist somit die ideale Wahl für Familien, die Wert auf Qualität legen. Der 510 m² große, gepflegte Garten lädt zum Entspannen ein: Hier können Kinder unbeschwert spielen, während Sie die frische Luft genießen.
Das Haus verfügt zusätzlich über eine 30 m² große Einliegerwohnung mit separatem Eingang. Garage und Stellplatz auf dem Grundstück garantieren höchsten Wohnkomfort. Dank des hervorragenden technischen Zustands können Sie sofort einziehen und die Vorzüge Ihres neuen Zuhauses genießen.
Ausstattung:
Alle Anschlüsse vorhanden
Lage:
Tapolca – unterirdischer See, Weinberge & Balaton-Hügel
Tapolca liegt nördlich des Balaton und verbindet Kleinstadt-Gemütlichkeit mit echter Besonderheit: der unterirdischen Seehöhle (Tapolcai-tavasbarlang).
Im Besucherzentrum fahren Sie im Boot durch kristallklares Wasser unter der Altstadt – ein Erlebnis, das es so nur hier gibt (das Höhlensystem wurde 1903 entdeckt; heute informiert eine moderne Ausstellung über Karst & Höhlenwelt).
Rund um Tapolca beginnen die Zeugenberge des Balaton-Oberlandes – perfekte Kulisse für Spaziergänge, Radtouren und Weinproben mit Aussicht. Auf Etappen des Blauen Fernwanderwegs blicken Sie über Weinberge und Basalthügel bis zum See.
Warum hinfahren?
Einzigartige Bootsfahrt in der Seehöhle + Ausstellung/Visitor Centre.
Wandern & Biken zwischen Weinbergen und Zeugenbergen (Balaton-Felvidék).
Balaton-Nähe mit ruhigem Kleinstadt-Tempo statt Trubel am Ufer.
Entfernungen (Straße, ca.):
Wien ↔ Tapolca: ~190 km Fahrstrecke (Auto); öffentlich per Bahn via Győr in ~4 h (je nach Verbindung).
Budapest ↔ Tapolca: ~155–175 km (ca. 1 h 50 min–2 h 05 min mit dem Auto, je nach Route/Verkehr).
Keszthely (West-Balaton) ↔ Tapolca: ~28 km Straße; stündliche Zugverbindung, Fahrzeit ~28 min.
Tapolca liegt nördlich des Balaton und verbindet Kleinstadt-Gemütlichkeit mit echter Besonderheit: der unterirdischen Seehöhle (Tapolcai-tavasbarlang).
Im Besucherzentrum fahren Sie im Boot durch kristallklares Wasser unter der Altstadt – ein Erlebnis, das es so nur hier gibt (das Höhlensystem wurde 1903 entdeckt; heute informiert eine moderne Ausstellung über Karst & Höhlenwelt).
Rund um Tapolca beginnen die Zeugenberge des Balaton-Oberlandes – perfekte Kulisse für Spaziergänge, Radtouren und Weinproben mit Aussicht. Auf Etappen des Blauen Fernwanderwegs blicken Sie über Weinberge und Basalthügel bis zum See.
Warum hinfahren?
Einzigartige Bootsfahrt in der Seehöhle + Ausstellung/Visitor Centre.
Wandern & Biken zwischen Weinbergen und Zeugenbergen (Balaton-Felvidék).
Balaton-Nähe mit ruhigem Kleinstadt-Tempo statt Trubel am Ufer.
Entfernungen (Straße, ca.):
Wien ↔ Tapolca: ~190 km Fahrstrecke (Auto); öffentlich per Bahn via Győr in ~4 h (je nach Verbindung).
Budapest ↔ Tapolca: ~155–175 km (ca. 1 h 50 min–2 h 05 min mit dem Auto, je nach Route/Verkehr).
Keszthely (West-Balaton) ↔ Tapolca: ~28 km Straße; stündliche Zugverbindung, Fahrzeit ~28 min.
Sonstiges:
🏡 Ganz gleich, ob Sie eine Immobilie in Ungarn kaufen möchten oder Ihre Liegenschaft verkaufen wollen: Immocenter Ungarn ist Ihr kompetenter und vertrauensvoller Partner direkt vor Ort. Mit unserer langjährigen Erfahrung, exzellenter Marktkenntnis und persönlicher Betreuung begleiten wir Sie sicher und transparent durch den gesamten Kauf- oder Verkaufsprozess.
💡 Tipp: Achten Sie auf unsere einzigartige A-B-C-Klassifizierung in der Überschrift unserer Objekte! Die Bedeutung dieser Einstufung finden Sie ausführlich erklärt auf unserer Startseite.
✅ Immobiliencheck – Sicherheit vor dem Kauf
Sie haben bereits eine Immobilie gefunden und möchten sicher sein, dass Preis und Zustand stimmen? Unser zertifizierter Bausachverständiger prüft Ihre Wunschimmobilie gründlich und bewertet den angemessenen Kaufpreis. So vermeiden Sie teure Überraschungen – denn in Ungarn gilt meist „gekauft wie gesehen“, nachträgliche Mängelrügen sind kaum durchsetzbar.
🤝 Individuelle Beratung – persönlich, unabhängig und fair
Auf Wunsch können Sie mit uns einen unabhängigen Beratungsvertrag abschließen – selbstverständlich freiwillig und nicht an ein bestimmtes Objekt gebunden. Unser Service umfasst:
✔️ Detaillierte Erfassung Ihrer Suchkriterien in einem persönlichen Suchprofil
✔️ Vorschläge passender Immobilien – so lange, bis Sie Ihr Wunschobjekt gefunden haben
✔️ Gemeinsame Besichtigungen inklusive fundierter Risikoabschätzung durch unseren Bausachverständigen und Energieberater (im Umkreis von ca. 50 km um Hévíz/Keszthely)
✔️ Betreuung und Unterstützung bei der Abwicklung aller Kauf-Formalitäten
✔️ Vermittlung eines deutschsprachigen Notars oder Rechtsanwalts
✔️ Bereitstellung einer deutschen Kaufvertragsübersetzung und Begleitung durch einen deutschsprachigen Anwalt
✔️ Unterstützung bei der Ummeldung von Strom, Gas, Wasser & Co.
✔️ Auf Wunsch: zuverlässige Hausbetreuung während Ihrer Abwesenheit
🌟 Immocenter Ungarn – sicher, kompetent und immer an Ihrer Seite.
Wir freuen uns darauf, Sie persönlich kennenzulernen und Ihren Traum von einer Immobilie in Ungarn Wirklichkeit werden zu lassen!
💡 Tipp: Achten Sie auf unsere einzigartige A-B-C-Klassifizierung in der Überschrift unserer Objekte! Die Bedeutung dieser Einstufung finden Sie ausführlich erklärt auf unserer Startseite.
✅ Immobiliencheck – Sicherheit vor dem Kauf
Sie haben bereits eine Immobilie gefunden und möchten sicher sein, dass Preis und Zustand stimmen? Unser zertifizierter Bausachverständiger prüft Ihre Wunschimmobilie gründlich und bewertet den angemessenen Kaufpreis. So vermeiden Sie teure Überraschungen – denn in Ungarn gilt meist „gekauft wie gesehen“, nachträgliche Mängelrügen sind kaum durchsetzbar.
🤝 Individuelle Beratung – persönlich, unabhängig und fair
Auf Wunsch können Sie mit uns einen unabhängigen Beratungsvertrag abschließen – selbstverständlich freiwillig und nicht an ein bestimmtes Objekt gebunden. Unser Service umfasst:
✔️ Detaillierte Erfassung Ihrer Suchkriterien in einem persönlichen Suchprofil
✔️ Vorschläge passender Immobilien – so lange, bis Sie Ihr Wunschobjekt gefunden haben
✔️ Gemeinsame Besichtigungen inklusive fundierter Risikoabschätzung durch unseren Bausachverständigen und Energieberater (im Umkreis von ca. 50 km um Hévíz/Keszthely)
✔️ Betreuung und Unterstützung bei der Abwicklung aller Kauf-Formalitäten
✔️ Vermittlung eines deutschsprachigen Notars oder Rechtsanwalts
✔️ Bereitstellung einer deutschen Kaufvertragsübersetzung und Begleitung durch einen deutschsprachigen Anwalt
✔️ Unterstützung bei der Ummeldung von Strom, Gas, Wasser & Co.
✔️ Auf Wunsch: zuverlässige Hausbetreuung während Ihrer Abwesenheit
🌟 Immocenter Ungarn – sicher, kompetent und immer an Ihrer Seite.
Wir freuen uns darauf, Sie persönlich kennenzulernen und Ihren Traum von einer Immobilie in Ungarn Wirklichkeit werden zu lassen!
Provision:
Als Käufer zahlen Sie bei diesem Objekt 1,27% inkl. ungarischer MwSt gegen Rechnungslegung und Unterzeichnung des Kaufvertrages. In diesem Preis enthalten ist die
- Überprüfung des Grundbuchs nach Lastenfreiheit und Eigentümerrechten
- Vermittlung eines deutschsprachigen Rechtsanwaltes (in HU beglaubigen Rechtsanwälte die Kaufverträge, keine Notare wie z.B.in D)
- eine deutschsprachige Übersetzung des Kaufvertrages
- alle Ummeldungen der Versorger wie Strom, Gas, Wasser, Müll etc.
- Überprüfung des Grundbuchs nach Lastenfreiheit und Eigentümerrechten
- Vermittlung eines deutschsprachigen Rechtsanwaltes (in HU beglaubigen Rechtsanwälte die Kaufverträge, keine Notare wie z.B.in D)
- eine deutschsprachige Übersetzung des Kaufvertrages
- alle Ummeldungen der Versorger wie Strom, Gas, Wasser, Müll etc.
Anmerkung:
Die von uns gemachten Informationen beruhen auf Angaben des Verkäufers bzw. der Verkäuferin. Für die Richtigkeit und Vollständigkeit der Angaben kann keine Gewähr bzw. Haftung übernommen werden. Ein Zwischenverkauf und Irrtümer sind vorbehalten.
AGB:
Wir weisen auf unsere Allgemeinen Geschäftsbedingungen hin. Durch weitere Inanspruchnahme unserer Leistungen erklären Sie die Kenntnis und Ihr Einverständnis.
Legen Sie ein kostenloses Gesuch an und wir informieren Sie automatisch, wenn passende Objekte eintreffen!
www.immocenter-ungarn.com
www.immocenter-ungarn.com
Die Preisangabe in Euro dient der Orientierung und kann je nach Wechselkurs geringfügig abweichen.
Unsere Preisgestaltung für unsere deutschen und ungarischen Kunden ist identisch
Zurück zur Übersicht





















+43 (0) 677 6282 0325