Object 70 van 591
Volgende object
Vorige object
Terug naar het overzicht

Türje: Huis dat renovatie behoeft, gelegen in een rustige en harmonieuze omgeving.

Object-Nr.: KK2209
  •  
  •  
  •  
  •  
  •  
  •  
  •  
  •  
  •  
  •  
  •  
  •  
 
 
 
 
 
 
 
 
 
 
 
 
Snel contact
Kerngegevens
Adres:
8796 Türje
Regio:
Zala
Gebied:
Woongebied
Prijs:
34.400 €
Woonoppervlak ca.:
81 m2.
Grondstuk:
1.060 m2.
Aantal kamers:
2
Verdere gegevens
Verdere gegevens
Woningtype:
Eengezinswoning
Op provisiebasis:
ja
Provisie:
2,42% van de aankoopprijs inclusief btw
Aantal slaapkamers:
2
Aantal badkamers:
1
Gemeubileerd:
nee
Kwaliteit van de uitrusting:
Eenvoudig
Toestand:
Dient gerenoveerd te worden
Verwarming:
Kachelverwarming, Radiators
Verwarmingssoort:
Gas, hout
Uitvoerige beschrijving
Uitvoerige beschrijving
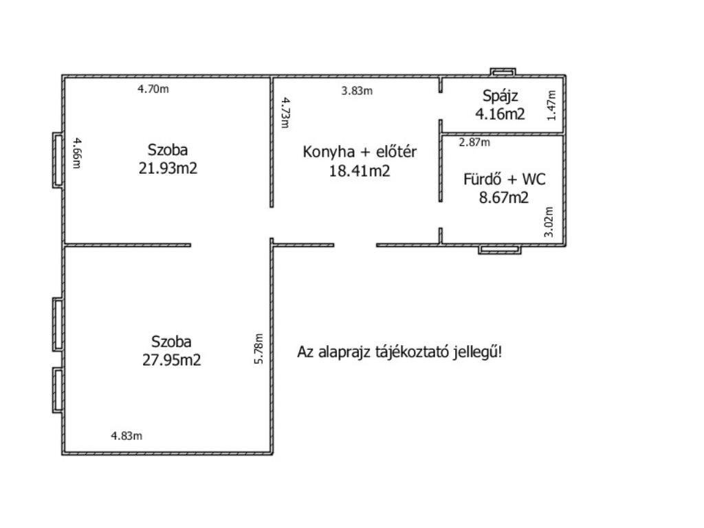
Objectbeschrijving:
- Woonoppervlakte: 81 m², Perceelgrootte: 1060 m²

- Gemengde constructie (baksteen + baksteen), buitenkant in goede staat, binnenkant toe aan renovatie

- Dakpannen, dakconstructie in goede staat

- Wateraansluiting aanwezig, waterleidingen vernieuwd

- Nieuwe elektriciteitsleiding (32 Ah) aan de buitenmuur, binnenbekabeling nog van aluminium

- Gasaansluiting aanwezig

- Rioleringsaansluiting in het huis

- Twee aangrenzende kamers (kunnen ook als aparte kamers gebruikt worden), hal + keuken, badkamer met toilet, provisiekast

- Verwarming: Gasconvectieverwarming, open haard aanwezig, dus ook verwarming via een kachel/haard mogelijk

- Badkamer en keuken nog niet afgewerkt

- Uitzicht: Straat

- Waterput op de binnenplaats

- Geen andere bijgebouwen op het perceel, slechts een ca. Open houten schuur van 6 m²

- Ruime woonruimte, gezinsvriendelijk, rustige locatie, vlakbij het centrum (5-10 minuten lopen)

- De woning is goed onderhouden

- Snel internet en tv via glasvezel beschikbaar in het complex

- De woning kan direct na betaling van de koopsom worden betrokken

Het fornuis op de foto is niet inbegrepen in de koopprijs!
Ligging:
Uitstekende vervoersverbindingen: Er zijn bus- en treinverbindingen in het dorp.

In Türje vindt u alles wat u nodig heeft: winkels, geldautomaten, postkantoor, huisartsenpraktijk, apotheek, kinderdagverblijf, kleuterschool en basisschool.

Op 5 km van Zalaszentgrót, 15 km van Sümeg, gelegen in een goed onderhouden dorp (Keszthely, Tapolca en het Balatonmeer liggen op 30-40 minuten afstand, Zalaegerszeg op 30 minuten en Oostenrijk op 1,5-2 uur rijden).
Overige:
Heeft u een woning gevonden en wilt u er zeker van zijn dat de prijs en de staat kloppen?

Vooral in het buitenland kunnen er opgeblazen prijzen of verborgen gebreken voorkomen. Onze bouwkundig expert inspecteert de woning vóór de aankoop en helpt u risico's te vermijden.

Want, volgens het principe "verkocht zoals gezien", zijn latere claims voor gebreken moeilijk te handhaven.

Op verzoek omvatten onze aanvullende diensten bij het afsluiten van een zoekovereenkomst:

- Zoekprofiel & suggesties voor geschikte woningen
- Gezamenlijke bezichtigingen
- Staat- en risicobeoordeling
- Begeleiding tijdens het aankoopproces

Inbegrepen in de commissie:

- Controle kadaster (hypotheken & eigendom)
- Doorverwijzing naar een Duitstalige advocaat/notaris
- Duitse vertaling van de koopovereenkomst
- Overdracht van elektriciteit, water, gas, afvalinzameling, etc.

- Beheer van de woning op verzoek gedurende het eerste jaar

Let op:

De beschrijving van de woning is geheel of gedeeltelijk gebaseerd op informatie verstrekt door de eigenaar. Wij aanvaarden geen aansprakelijkheid voor de juistheid en volledigheid van deze informatie.

Wilt u uw woning professioneel in de markt zetten in Duitsland of Hongarije?

Neem dan contact met ons op!

Meer dan 200.000 potentiële kopers wachten al op uw bod.

Houd er rekening mee dat de details van de woning mogelijk zijn gegenereerd of aangepast met behulp van kunstmatige intelligentie (AI). Essentiële kenmerken zijn echter niet gewijzigd.
Provisie:
Als koper betaalt u 2,42% inclusief Hongaarse btw over deze woning bij facturering en ondertekening van de koopovereenkomst. Deze prijs is inclusief:

- Controle van het kadaster op hypotheken en andere lasten

- Doorverwijzing naar een Duitstalige advocaat (in Hongarije worden koopovereenkomsten door advocaten geauthenticeerd, niet door notarissen zoals in Duitsland)

- Een Duitse vertaling van de koopovereenkomst

- Alle nutsvoorzieningen zoals elektriciteit, gas, water, afvalverwerking, etc.

Opmerking:
De door ons verstrekte informatie is gebaseerd op gegevens van de verkoper. Wij kunnen de juistheid of volledigheid van deze informatie niet garanderen en aanvaarden hiervoor geen aansprakelijkheid. Het object kan reeds verkocht zijn en er kunnen fouten in staan.
Algemene voorwaarden:
Lees onze algemene voorwaarden. Door gebruik te blijven maken van onze diensten, erkent en aanvaardt u deze.
 
Dien een gratis zoekopdracht in en wij stellen u automatisch op de hoogte wanneer er geschikte woningen beschikbaar komen!

www.immocenter-ungarn.com

Die Preisangabe in Euro dient der Orientierung und kann je nach Wechselkurs geringfügig abweichen.
Unsere Preisgestaltung für unsere deutschen und ungarischen Kunden ist identisch


Terug naar het overzicht