Object 529 van 590
Volgende object
Vorige object
Terug naar het overzicht
Terug naar het overzicht
Volgende object
Vorige object
Terug naar het overzichtKemenespálfa: (ACA) Oude boerderij met veel potentie!
Object-Nr.: WH6938
Snel contact
Opties
Opties
Kerngegevens
Adres:
9544 Kemenespálfa
Regio:
Vas
Prijs:
19.950 €
Woonoppervlak ca.:
100 m2.
Grondstuk:
1.672 m2.
Aantal kamers:
3
Verdere gegevens
Verdere gegevens
Woningtype:
Boerderijwoning
Aantal slaapkamers:
1
Aantal badkamers:
1
Zolder:
ja
Gemeubileerd:
nee
Toestand:
Dient gerenoveerd te worden
Uitvoerige beschrijving
Uitvoerige beschrijving
Objectbeschrijving:
Het huis is gelegen aan een rustige zijstraat. Het is een hoekperceel met buren slechts aan één zijde.
Groot landhuis/boerderij te renoveren met een ruime tuin
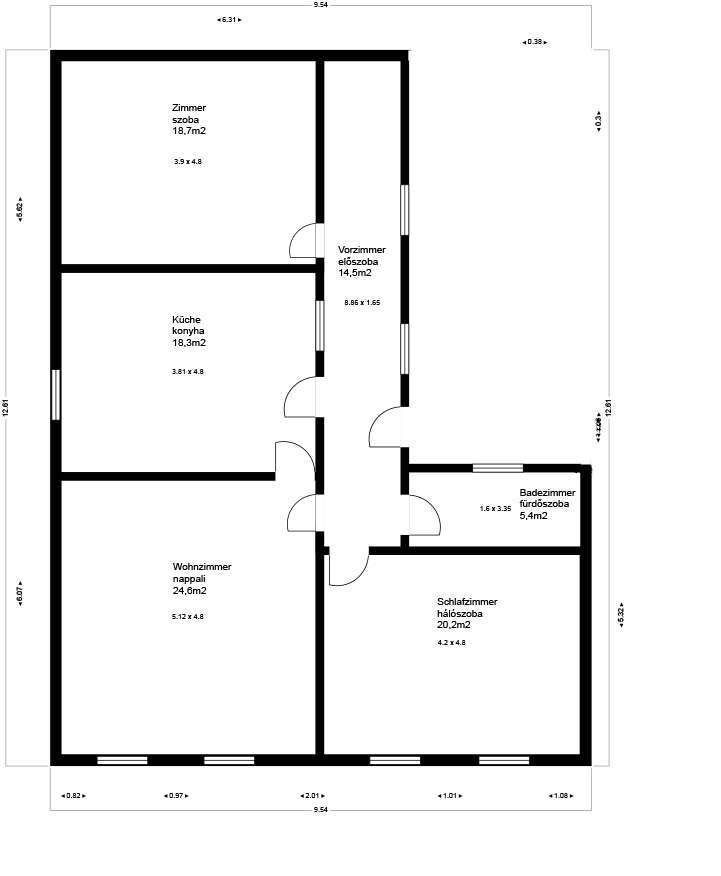
Circa 100 m² in totaal, inclusief woonkamer, slaapkamer, badkamer, keuken, extra kamers en een hal. De zolder kan eventueel worden omgebouwd tot woonruimte.
Gebouwd met baksteen, vakwerk en deels houten plafonds. De dakconstructie is solide, maar nieuwe dakpannen worden aanbevolen tijdens de renovatie.
Er zijn twee open haarden beschikbaar voor verwarming met een houtkachel, of er kan een gasaansluiting worden aangelegd.
Er is water aanwezig op het perceel; elektriciteit moet worden geregistreerd bij EON (er is momenteel geen meter geïnstalleerd).
Met een beetje klusvaardigheid en/of de hulp van lokale vakmensen tegen redelijke prijzen kunt u dit authentieke oude huis transformeren tot een landhuis dat uw visie weerspiegelt.
Thermenbaden bevinden zich in de buurt en het populaire Balatonmeer is ook gemakkelijk te bereiken.
``
Groot landhuis/boerderij te renoveren met een ruime tuin
Circa 100 m² in totaal, inclusief woonkamer, slaapkamer, badkamer, keuken, extra kamers en een hal. De zolder kan eventueel worden omgebouwd tot woonruimte.
Gebouwd met baksteen, vakwerk en deels houten plafonds. De dakconstructie is solide, maar nieuwe dakpannen worden aanbevolen tijdens de renovatie.
Er zijn twee open haarden beschikbaar voor verwarming met een houtkachel, of er kan een gasaansluiting worden aangelegd.
Er is water aanwezig op het perceel; elektriciteit moet worden geregistreerd bij EON (er is momenteel geen meter geïnstalleerd).
Met een beetje klusvaardigheid en/of de hulp van lokale vakmensen tegen redelijke prijzen kunt u dit authentieke oude huis transformeren tot een landhuis dat uw visie weerspiegelt.
Thermenbaden bevinden zich in de buurt en het populaire Balatonmeer is ook gemakkelijk te bereiken.
``
Indeling:
Vers water, een septische tank, elektriciteit (op aanvraag), internettoegang en een verblijfsvergunning zijn mogelijk.
Ligging:
Kemenespálfa, een klein, rustig dorp in de provincie Vas, Hongarije, ligt op 2 km van snelweg 84, die van Sopron naar het Balatonmeer loopt.
Sopron-grens: 90 km
Celldömölk: 12 km (thermische vulkaanspa / JuFa Hotel Celldömölk, Active & Wellness Resort)
Mesteri: 16 km (thermische Föröd)
Jánosháza: 2 km (grotere stad aan snelweg 84)
Balatonmeer: 45 km
Wenen: 150 km
Graz: 150 km
Sopron-grens: 90 km
Celldömölk: 12 km (thermische vulkaanspa / JuFa Hotel Celldömölk, Active & Wellness Resort)
Mesteri: 16 km (thermische Föröd)
Jánosháza: 2 km (grotere stad aan snelweg 84)
Balatonmeer: 45 km
Wenen: 150 km
Graz: 150 km
Overige:
Of u nu een woning in Hongarije wilt kopen of verkopen, Immocenter Hongarije is uw competente en betrouwbare partner ter plaatse. Met onze jarenlange ervaring, uitstekende marktkennis en persoonlijke service begeleiden wij u veilig en transparant door het gehele koop- of verkoopproces.
Tip: Let op onze unieke A-B-C-classificatie in de titel van onze woningen! Een gedetailleerde uitleg van deze classificatie vindt u op onze homepage.
Woninginspectie – Gemoedsrust vóór aankoop
Heeft u al een woning gevonden en wilt u er zeker van zijn dat de prijs en de staat kloppen? Onze gecertificeerde bouwkundig inspecteur inspecteert uw gewenste woning grondig en bepaalt een eerlijke aankoopprijs. Zo voorkomt u kostbare verrassingen – in Hongarije geldt over het algemeen het principe "verkocht zoals gezien", waardoor latere claims voor gebreken moeilijk te handhaven zijn.
Persoonlijk advies – Persoonlijk, onafhankelijk en eerlijk
Indien gewenst kunt u een onafhankelijk adviesgesprek met ons aangaan – geheel vrijwillig en niet gebonden aan een specifieke woning. Onze diensten omvatten:
- Een gedetailleerde vastlegging van uw zoekcriteria in een persoonlijk zoekprofiel
- Suggesties voor geschikte woningen – totdat u uw ideale woning vindt
- Gezamenlijke bezichtigingen inclusief een grondige risicobeoordeling door onze bouwkundig inspecteur en energieadviseur (binnen een straal van circa 50 km rond Hévíz/Keszthely)
- Ondersteuning en assistentie bij alle aankoopformaliteiten
- Doorverwijzing naar een Duitstalige notaris of advocaat
- Het verzorgen van een Duitse vertaling van de koopovereenkomst en ondersteuning door een Duitstalige advocaat
- Hulp bij het overzetten van nutsvoorzieningen (elektriciteit, gas, water, etc.)
- Op verzoek: betrouwbaar vastgoedbeheer tijdens uw afwezigheid
Immocenter Hongarije – veilig, competent en altijd aan uw zijde.
We kijken ernaar uit u persoonlijk te ontmoeten en uw droom van een eigen woning in Hongarije te verwezenlijken!
Tip: Let op onze unieke A-B-C-classificatie in de titel van onze woningen! Een gedetailleerde uitleg van deze classificatie vindt u op onze homepage.
Woninginspectie – Gemoedsrust vóór aankoop
Heeft u al een woning gevonden en wilt u er zeker van zijn dat de prijs en de staat kloppen? Onze gecertificeerde bouwkundig inspecteur inspecteert uw gewenste woning grondig en bepaalt een eerlijke aankoopprijs. Zo voorkomt u kostbare verrassingen – in Hongarije geldt over het algemeen het principe "verkocht zoals gezien", waardoor latere claims voor gebreken moeilijk te handhaven zijn.
Persoonlijk advies – Persoonlijk, onafhankelijk en eerlijk
Indien gewenst kunt u een onafhankelijk adviesgesprek met ons aangaan – geheel vrijwillig en niet gebonden aan een specifieke woning. Onze diensten omvatten:
- Een gedetailleerde vastlegging van uw zoekcriteria in een persoonlijk zoekprofiel
- Suggesties voor geschikte woningen – totdat u uw ideale woning vindt
- Gezamenlijke bezichtigingen inclusief een grondige risicobeoordeling door onze bouwkundig inspecteur en energieadviseur (binnen een straal van circa 50 km rond Hévíz/Keszthely)
- Ondersteuning en assistentie bij alle aankoopformaliteiten
- Doorverwijzing naar een Duitstalige notaris of advocaat
- Het verzorgen van een Duitse vertaling van de koopovereenkomst en ondersteuning door een Duitstalige advocaat
- Hulp bij het overzetten van nutsvoorzieningen (elektriciteit, gas, water, etc.)
- Op verzoek: betrouwbaar vastgoedbeheer tijdens uw afwezigheid
Immocenter Hongarije – veilig, competent en altijd aan uw zijde.
We kijken ernaar uit u persoonlijk te ontmoeten en uw droom van een eigen woning in Hongarije te verwezenlijken!
Opmerking:
De door ons verstrekte informatie is gebaseerd op gegevens van de verkoper. Wij kunnen de juistheid of volledigheid van deze informatie niet garanderen en aanvaarden hiervoor geen aansprakelijkheid. Het object kan reeds verkocht zijn en er kunnen fouten in staan.
Algemene voorwaarden:
Lees onze algemene voorwaarden. Door gebruik te blijven maken van onze diensten, erkent en aanvaardt u deze.
Dien een gratis zoekopdracht in en wij stellen u automatisch op de hoogte wanneer er geschikte woningen beschikbaar komen!
www.immocenter-ungarn.com
www.immocenter-ungarn.com
Die Preisangabe in Euro dient der Orientierung und kann je nach Wechselkurs geringfügig abweichen.
Unsere Preisgestaltung für unsere deutschen und ungarischen Kunden ist identisch
Terug naar het overzicht

























+43 (0) 677 6282 0325