Object 539 van 588
Volgende object
Vorige object
Terug naar het overzicht
Terug naar het overzicht
Volgende object
Vorige object
Terug naar het overzichtMiske: Vrijstaande woning met drie verdiepingen – ook ideaal voor accommodatie
Object-Nr.: SIK03
Snel contact
Opties
Opties
Kerngegevens
Adres:
6343 Miske
Regio:
Bács-Kiskun
Gebied:
Woongebied
Prijs:
79.900 €
Woonoppervlak ca.:
235 m2.
Grondstuk:
1.547 m2.
Aantal kamers:
5
Verdere gegevens
Verdere gegevens
Woningtype:
Meergezinswoning
Aantal etages:
3
Nuttig oppervlak.:
260 m2.
Bad:
Douche, Ligbad, Raam
Aantal slaapkamers:
4
Aantal badkamers:
2
Terras:
1
Kostgangerwoning:
ja
Gastentoilet:
ja
Zolder:
ja
Kelder:
deels onderkelderd
Aantal parkeerplaatsen:
1 x Garage
Gemeubileerd:
Deels gemeubileerd
Kwaliteit van de uitrusting:
Normaal
Bouwjaar:
1985
Vloerbedekking:
Vloertegels, Parketvloer
Verwarming:
Centrale verwarming, Radiators
Verwarmingssoort:
Gas
Uitvoerige beschrijving
Uitvoerige beschrijving
Objectbeschrijving:
Dit solide bakstenen huis, gebouwd in 1985 voor particulier gebruik, heeft drie verdiepingen met elk een eigen leefruimte – ook ideaal geschikt als woonruimte.
Geïsoleerde buitengevel met hoogwaardig stucwerk.
Ramen en deuren: hout en PVC – met rolluiken en horren.
Dakbedekking: betonpannen.
Verwarming, warm water en installaties: combiketel (BAXI), radiatoren met warmteverdeler, elektrische boiler, aansluiting op het riool.
Zolder geïsoleerd met glasvezel.
Driefasenstroomaansluiting 52 A + 16 A met nachtstroomregeling.
Alarmsysteem aanwezig.
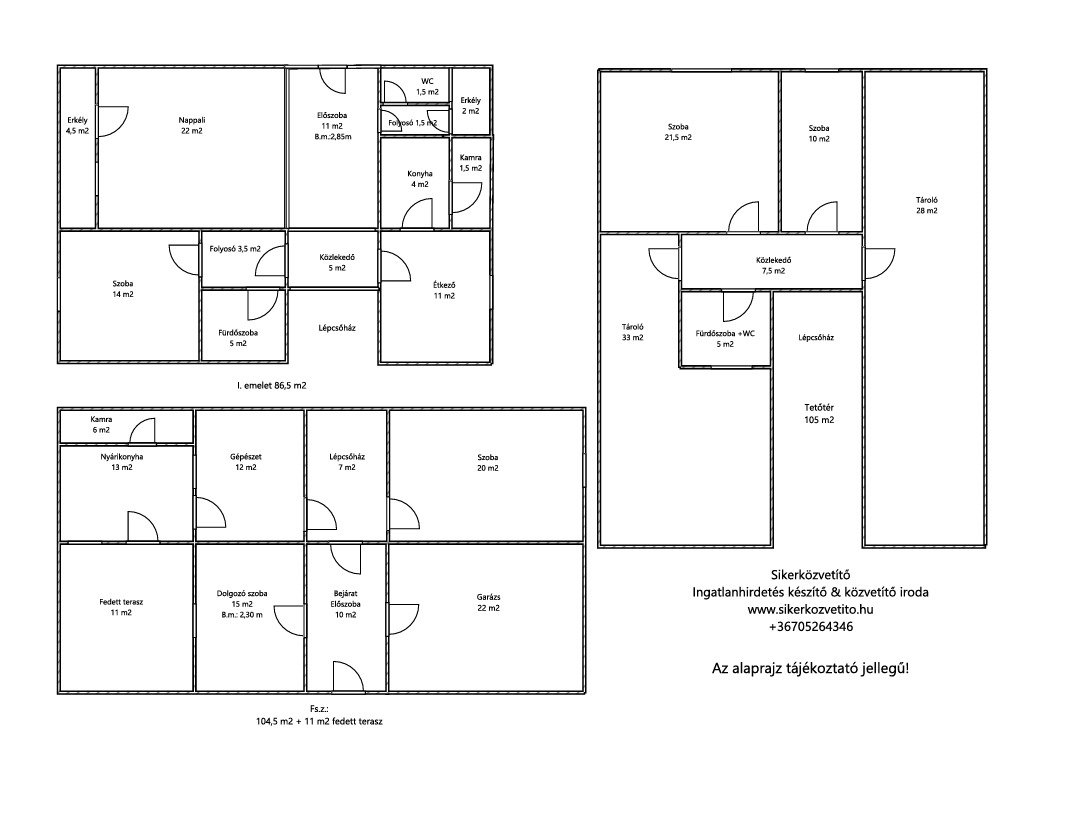
Indeling per verdieping:
Begane grond (105 m² + 11 m² overdekt terras):
– 1 slaapkamer + 1 studeerkamer
– Stookruimte/bijkeuken
– Zomerkeuken met overdekt terras
– Garage met elektrische deur
Bovenverdieping (86,5 m²):
– Aparte ingang vanaf de binnenplaats
– Hal
– Ruime woonkamer
– Eetkamer
– Keuken
– Badkamer
– Bijkeuken
– Toilet in aparte ruimte
– Slaapkamer
Zolder (45 m²):
– 2 slaapkamers
– Badkamer met douche en toilet
– Zolder geschikt voor verbouwing
Extra bouwdelen:
– Werkplaats
– Gewelfde kelder
– Berging
Tuin:
– Goed onderhouden
– Waterput
Geïsoleerde buitengevel met hoogwaardig stucwerk.
Ramen en deuren: hout en PVC – met rolluiken en horren.
Dakbedekking: betonpannen.
Verwarming, warm water en installaties: combiketel (BAXI), radiatoren met warmteverdeler, elektrische boiler, aansluiting op het riool.
Zolder geïsoleerd met glasvezel.
Driefasenstroomaansluiting 52 A + 16 A met nachtstroomregeling.
Alarmsysteem aanwezig.
Indeling per verdieping:
Begane grond (105 m² + 11 m² overdekt terras):
– 1 slaapkamer + 1 studeerkamer
– Stookruimte/bijkeuken
– Zomerkeuken met overdekt terras
– Garage met elektrische deur
Bovenverdieping (86,5 m²):
– Aparte ingang vanaf de binnenplaats
– Hal
– Ruime woonkamer
– Eetkamer
– Keuken
– Badkamer
– Bijkeuken
– Toilet in aparte ruimte
– Slaapkamer
Zolder (45 m²):
– 2 slaapkamers
– Badkamer met douche en toilet
– Zolder geschikt voor verbouwing
Extra bouwdelen:
– Werkplaats
– Gewelfde kelder
– Berging
Tuin:
– Goed onderhouden
– Waterput
Ligging:
– Bács – Kiskun County. Miske ligt in het westelijke deel van de Grote Laagvlakte, aan de linkeroever van de Donau, hemelsbreed ongeveer 8 kilometer van de rivier. Het ligt ongeveer 130 kilometer ten zuiden van Boedapest en 10 kilometer ten zuidoosten van Kalocsa. Naburige dorpen zijn: Drágszél in het noorden, Homokmégy in het noordoosten, Hajós in het oosten, Dusnok in het zuiden, Fajsz in het zuidwesten en Bátya in het noordwesten.
De woning is gelegen aan een rustige straat in een woonwijk.
– Op 10 minuten loopafstand: huisartsenpraktijk, apotheek, gemeentehuis, kleuterschool, school, winkel, bushalte
De woning is gelegen aan een rustige straat in een woonwijk.
– Op 10 minuten loopafstand: huisartsenpraktijk, apotheek, gemeentehuis, kleuterschool, school, winkel, bushalte
Overige:
Of u nu een woning in Hongarije wilt kopen of verkopen, Immocenter Hongarije is uw competente en betrouwbare partner ter plaatse. Met onze jarenlange ervaring, uitstekende marktkennis en persoonlijke service begeleiden wij u veilig en transparant door het gehele aankoop- of verkoopproces.
Tip: Let op onze unieke A-B-C-classificatie in de titel van onze woningen! U vindt een gedetailleerde uitleg over deze classificatie op onze homepage.
Woninginspectie – Gemoedsrust vóór de aankoop
Heeft u al een woning gevonden en wilt u er zeker van zijn dat de prijs en staat van onderhoud in orde zijn? Onze gecertificeerde bouwkundig inspecteur inspecteert uw gewenste woning grondig en bepaalt een eerlijke aankoopprijs. Zo voorkomt u kostbare verrassingen – in Hongarije geldt namelijk het principe "verkocht zoals gezien" en zijn latere claims voor gebreken moeilijk af te dwingen.
Individueel advies – Persoonlijk, onafhankelijk en eerlijk
Indien gewenst, kunt u een onafhankelijke adviesovereenkomst met ons aangaan – geheel vrijwillig en niet gebonden aan een specifieke woning. Onze diensten omvatten:
- Gedetailleerde vastlegging van uw zoekcriteria in een persoonlijk zoekprofiel
- Suggesties voor geschikte woningen – totdat u uw ideale woning vindt
- Gezamenlijke bezichtigingen inclusief een grondige risicobeoordeling door onze bouwkundig inspecteur en energieadviseur (binnen een straal van circa 50 km rond Hévíz/Keszthely)
- Ondersteuning en assistentie bij alle aankoopformaliteiten
- Verwijzing naar een Duitstalige notaris of advocaat
- Het verzorgen van een Duitse vertaling van de koopovereenkomst en ondersteuning door een Duitstalige advocaat
- Assistentie bij de overdracht van nutsvoorzieningen (elektriciteit, gas, water, etc.)
- Op verzoek: betrouwbaar vastgoedbeheer tijdens uw afwezigheid
Immocenter Hongarije – veilig, deskundig en altijd aan uw zijde.
We kijken ernaar uit u persoonlijk te ontmoeten en uw droom van een woning in Hongarije te verwezenlijken!
Tip: Let op onze unieke A-B-C-classificatie in de titel van onze woningen! U vindt een gedetailleerde uitleg over deze classificatie op onze homepage.
Woninginspectie – Gemoedsrust vóór de aankoop
Heeft u al een woning gevonden en wilt u er zeker van zijn dat de prijs en staat van onderhoud in orde zijn? Onze gecertificeerde bouwkundig inspecteur inspecteert uw gewenste woning grondig en bepaalt een eerlijke aankoopprijs. Zo voorkomt u kostbare verrassingen – in Hongarije geldt namelijk het principe "verkocht zoals gezien" en zijn latere claims voor gebreken moeilijk af te dwingen.
Individueel advies – Persoonlijk, onafhankelijk en eerlijk
Indien gewenst, kunt u een onafhankelijke adviesovereenkomst met ons aangaan – geheel vrijwillig en niet gebonden aan een specifieke woning. Onze diensten omvatten:
- Gedetailleerde vastlegging van uw zoekcriteria in een persoonlijk zoekprofiel
- Suggesties voor geschikte woningen – totdat u uw ideale woning vindt
- Gezamenlijke bezichtigingen inclusief een grondige risicobeoordeling door onze bouwkundig inspecteur en energieadviseur (binnen een straal van circa 50 km rond Hévíz/Keszthely)
- Ondersteuning en assistentie bij alle aankoopformaliteiten
- Verwijzing naar een Duitstalige notaris of advocaat
- Het verzorgen van een Duitse vertaling van de koopovereenkomst en ondersteuning door een Duitstalige advocaat
- Assistentie bij de overdracht van nutsvoorzieningen (elektriciteit, gas, water, etc.)
- Op verzoek: betrouwbaar vastgoedbeheer tijdens uw afwezigheid
Immocenter Hongarije – veilig, deskundig en altijd aan uw zijde.
We kijken ernaar uit u persoonlijk te ontmoeten en uw droom van een woning in Hongarije te verwezenlijken!
Provisie:
Als koper betaalt u 2,54% inclusief Hongaarse btw voor deze woning bij facturering en ondertekening van de koopovereenkomst. Deze prijs is inclusief:
- Controle van het kadaster op bezwaren en eigendomsrechten
- Verwijzing naar een Duitstalige advocaat (in Hongarije legaliseren advocaten de koopovereenkomsten, geen notarissen zoals in Duitsland)
- Een Duitse vertaling van de koopovereenkomst
- Alle nutsvoorzieningen zoals elektriciteit, gas, water, afvalverwerking, enz.
- Controle van het kadaster op bezwaren en eigendomsrechten
- Verwijzing naar een Duitstalige advocaat (in Hongarije legaliseren advocaten de koopovereenkomsten, geen notarissen zoals in Duitsland)
- Een Duitse vertaling van de koopovereenkomst
- Alle nutsvoorzieningen zoals elektriciteit, gas, water, afvalverwerking, enz.
Opmerking:
De door ons verstrekte informatie is gebaseerd op de door de verkoper verstrekte gegevens. Wij kunnen de juistheid of volledigheid van deze informatie niet garanderen of hiervoor aansprakelijkheid aanvaarden. Het object is onder voorbehoud van eerdere verkoop en fouten.
Algemene voorwaarden:
Let op onze algemene voorwaarden. Door onze diensten te blijven gebruiken, erkent u deze en gaat u ermee akkoord.
Maak een gratis zoekopdracht aan en we sturen je automatisch een melding wanneer er geschikte woningen beschikbaar komen!
www.immocenter-ungarn.com
www.immocenter-ungarn.com
Die Preisangabe in Euro dient der Orientierung und kann je nach Wechselkurs geringfügig abweichen.
Unsere Preisgestaltung für unsere deutschen und ungarischen Kunden ist identisch
Terug naar het overzicht






























+43 (0) 677 6282 0325