Object 300 van 409
Volgende object
Vorige object
Terug naar het overzicht
code
Terug naar het overzicht
Volgende object
Vorige object
Terug naar het overzichtHéviz: (ACAB) Uitstekende kans nabij Héviz voor investeerders met visie
Object-Nr.: 44021-2
Snel contact
Opties
Opties
Kerngegevens
Adres:
8380 Héviz
Regio:
Zala
Gebied:
Woongebied
Objecttype:
Hotelhoeve
Prijs:
495.000 €
Totaal oppervlakte:
2.500 m2.
Gastenruimte oppervlakte:
2.000 m2.
Verdere gegevens
Verdere gegevens
Bouwjaar gebouw:
2000
Grondstuk:
8.700 m2.
Aantal kamers:
10
Toestand:
Dient gerenoveerd te worden
Uitvoerige beschrijving
Uitvoerige beschrijving
Objectbeschrijving:
In Hévíz staat een woning met weids uitzicht te koop, geschikt voor diverse ontwikkelingen.
Hier kunnen diverse appartementen, een gastenverblijf of een seniorenwoning worden gebouwd.
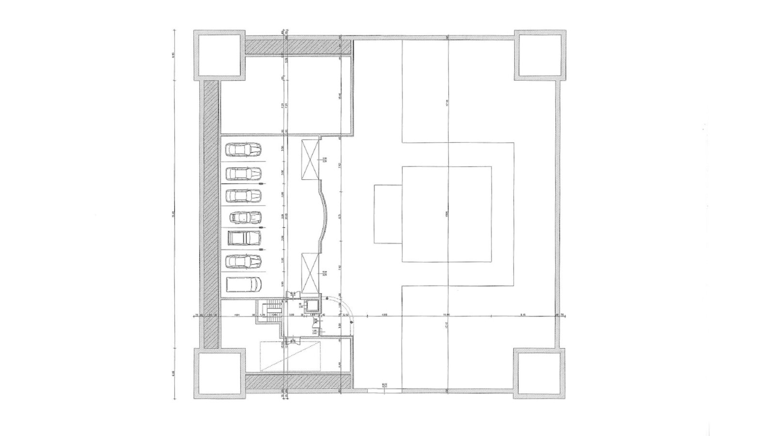
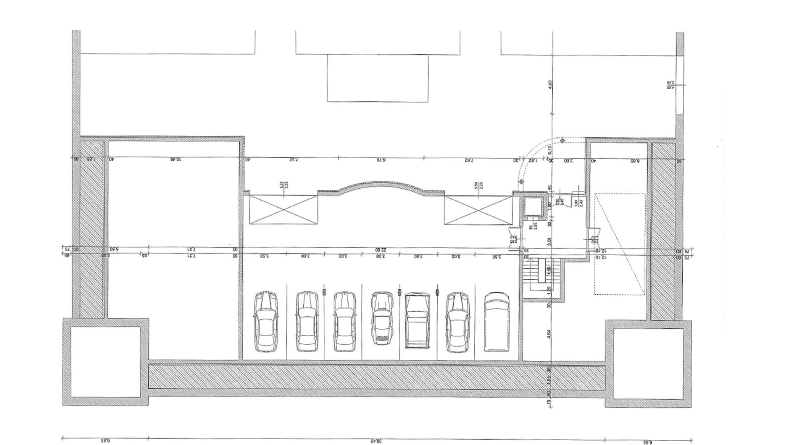
De woning is ideaal voor de bouw van een luxe woning of residentie en beschikt over een enorme wijnkelder van 200 m², bijna een hectare bosgrond, een gastenverblijf, een aangrenzende keuken en parkeergelegenheid.
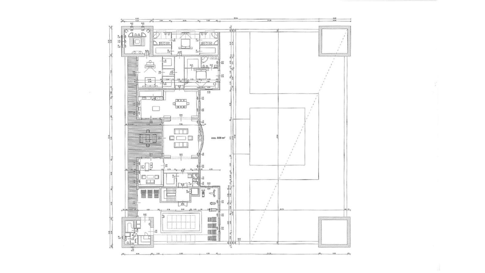
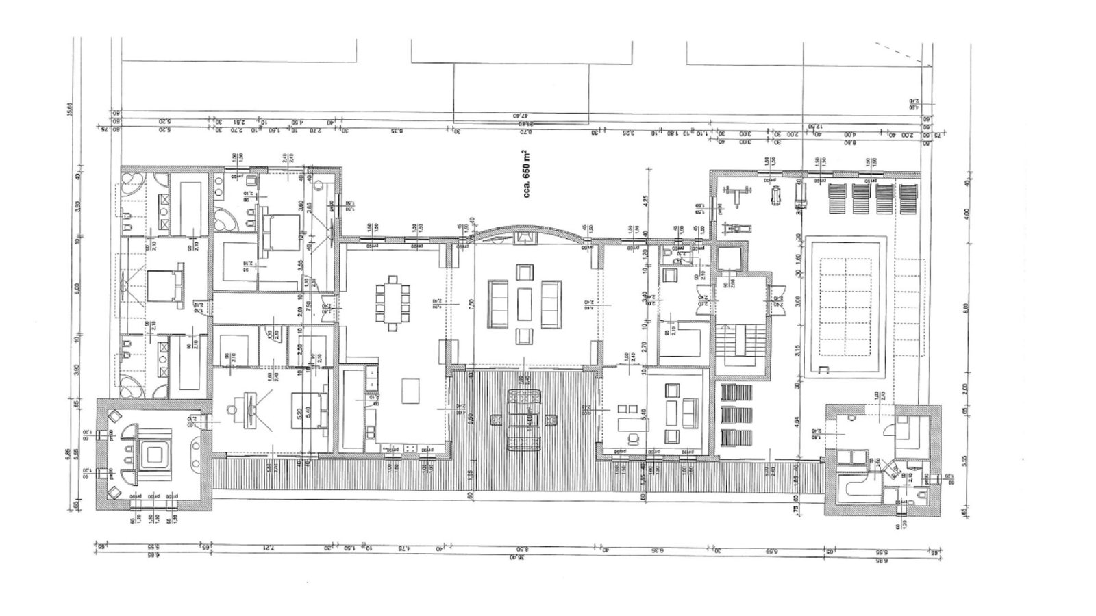
Volgens de plattegronden op de foto's zou het kasteel een ruim appartement kunnen worden. De kelder biedt ideale omstandigheden voor wijnopslag en alle voorwaarden voor de productie van brandewijn zijn vervuld.
Hier kunnen diverse appartementen, een gastenverblijf of een seniorenwoning worden gebouwd.
De woning is ideaal voor de bouw van een luxe woning of residentie en beschikt over een enorme wijnkelder van 200 m², bijna een hectare bosgrond, een gastenverblijf, een aangrenzende keuken en parkeergelegenheid.
Volgens de plattegronden op de foto's zou het kasteel een ruim appartement kunnen worden. De kelder biedt ideale omstandigheden voor wijnopslag en alle voorwaarden voor de productie van brandewijn zijn vervuld.
Ligging:
3 km ten oosten van Hévíz
5 km van het Balatonmeer
5 km van het Balatonmeer
Opmerking:
De informatie die wij verstrekken is gebaseerd op informatie van de verkoper. Wij aanvaarden geen aansprakelijkheid voor de juistheid of volledigheid van de informatie. Onder voorbehoud van eerdere verkoop en fouten.
Algemene voorwaarden:
Raadpleeg onze algemene voorwaarden. Door gebruik te blijven maken van onze diensten, bevestigt u dat u hiervan op de hoogte bent en ermee instemt.
Maak een gratis zoekopdracht aan en we sturen je automatisch een melding wanneer er geschikte panden beschikbaar zijn!
www.immocenter-ungarn.com
www.immocenter-ungarn.com
Die Preisangabe in Euro dient der Orientierung und kann je nach Wechselkurs geringfügig abweichen.
Unsere Preisgestaltung für unsere deutschen und ungarischen Kunden ist identisch
Terug naar het overzicht












































+43 (0) 677 6282 0325