Property 353 from 590
Next property
Previous property
Back to the overview
Back to the overview
Next property
Previous property
Back to the overviewKiskunhalas: Three-family house, multi-generational house in a quiet street
Property ID: SIK06
Quick Contact
Options
Options
Basic information
Address:
6400 Kiskunhalas
Region:
Bács-Kiskun
Area:
Residential area
Price:
139.500 €
Living space:
236 sq. m.
Plot size:
1.444 sq. m.
No. of rooms:
5
Details
Details
Type of house:
Apartment building
Useable area:
260 sq. m.
Kitchen:
Fitted kitchen, Open
Bathroom:
Shower, Bathtub, Window
Number of bedrooms:
4
Number of bathrooms:
4
Terrace:
1
Outhouse:
yes
Guest WC:
yes
Garden:
yes
Fire Place:
yes
Basement:
Partial cellar
Air condition:
yes
Surroundings:
Quiet area
Furnished:
Partly furnished
Quality of fittings:
Superior
Floor covering:
Tiles, Parquet flooring
Condition:
Fully renovated
Heating:
Air conditioning unit
Type of heating system:
Electric
Further information
Further information
Property description:
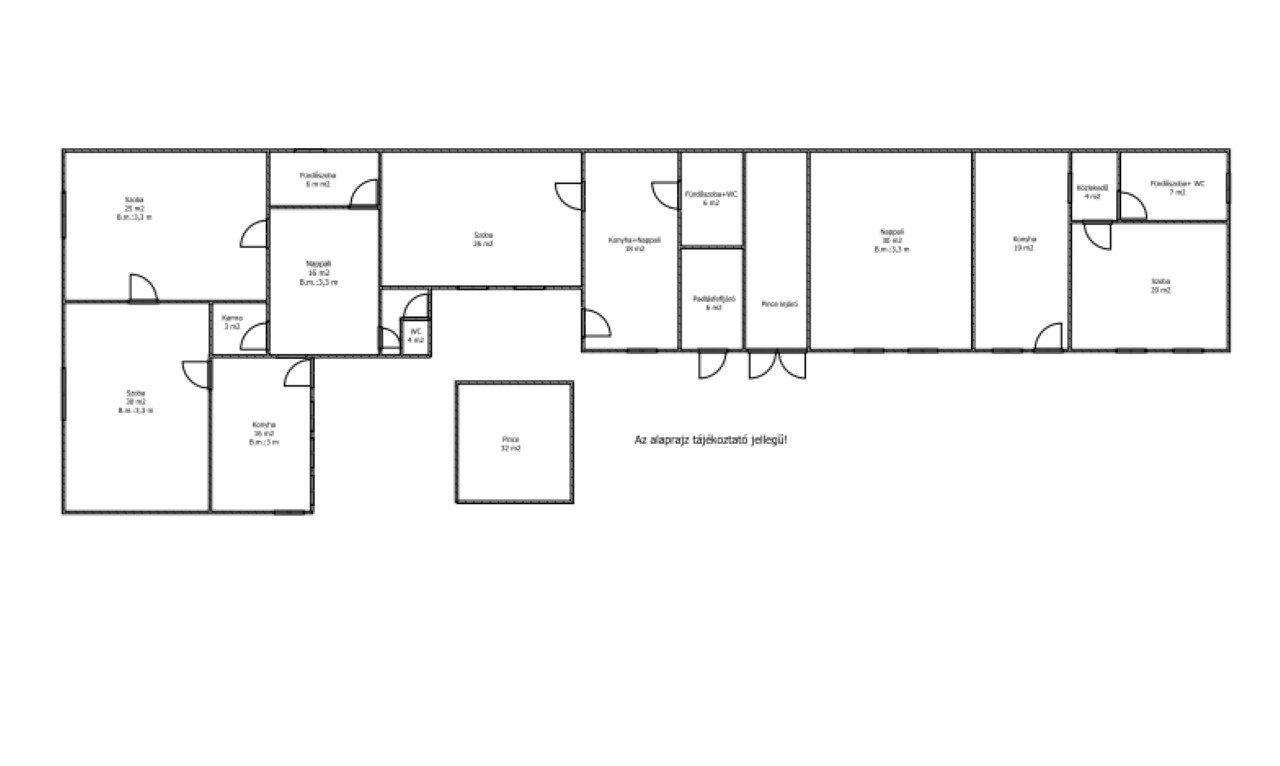
The property is accessible from two streets and is therefore ideally suited as a multi-generational home or guest house.
... Renovations, Modernizations:
Several renovations have been carried out recently:
Renewal of the entire water and electricity network
Construction of a new sewage system
Plastering and cladding of the exterior walls
Renewal of the interior paneling, complete interior painting
Remodeling of the bathrooms
Installation of 3 inverter air conditioning units
Landscaping (in progress), creation of parking spaces
Exterior planning available for the development of a guesthouse
Apartment Description:
Apartment 1 – Cozy apartment with two large rooms
2 spacious rooms
Kitchen, living room, pantry
Bathroom and separate WC
Heating: Fireplace
Hot water: New electric boiler
Equipped with separate meters
Apartment 2 – Separate entrance, covered terrace
Kitchen + dining area
Large room
Bathroom + WC
11 m² covered terrace Terrace
Heating: 2 inverter air conditioners
Hot water: New electric boiler
Between the two apartments is:
Access to the attic + storage room
32 m² dry, well-ventilated brick basement
Apartment 3 – Modern, bright rooms and comfortable amenities
Spacious, sunny living room
Kitchen + dining area
Bedroom
Hallway, bathroom + WC
Heating: Fireplace
Hot water: New electric boiler
Inverter air conditioner
Smart lighting system
Separate entrance
Garden with seating
Prices – also available individually!
Apartments 1 and 2 together (with separate street entrance): 32,000,000 HUF
Apartment 3 (with separate entrance, landscaped garden): 25,500,000 HUF
Total property: 53,000,000 HUF
The current owner is handling the official subdivision of the property.
Features:
Water connection
Sewer connection
Electricity connection
Gas connection at the street
New, thermally insulated PVC windows and doors + some wooden windows and doors
Further information:
Completely new mechanical equipment: subject to agreement
The city center is within easy walking distance.
... Renovations, Modernizations:
Several renovations have been carried out recently:
Renewal of the entire water and electricity network
Construction of a new sewage system
Plastering and cladding of the exterior walls
Renewal of the interior paneling, complete interior painting
Remodeling of the bathrooms
Installation of 3 inverter air conditioning units
Landscaping (in progress), creation of parking spaces
Exterior planning available for the development of a guesthouse
Apartment Description:
Apartment 1 – Cozy apartment with two large rooms
2 spacious rooms
Kitchen, living room, pantry
Bathroom and separate WC
Heating: Fireplace
Hot water: New electric boiler
Equipped with separate meters
Apartment 2 – Separate entrance, covered terrace
Kitchen + dining area
Large room
Bathroom + WC
11 m² covered terrace Terrace
Heating: 2 inverter air conditioners
Hot water: New electric boiler
Between the two apartments is:
Access to the attic + storage room
32 m² dry, well-ventilated brick basement
Apartment 3 – Modern, bright rooms and comfortable amenities
Spacious, sunny living room
Kitchen + dining area
Bedroom
Hallway, bathroom + WC
Heating: Fireplace
Hot water: New electric boiler
Inverter air conditioner
Smart lighting system
Separate entrance
Garden with seating
Prices – also available individually!
Apartments 1 and 2 together (with separate street entrance): 32,000,000 HUF
Apartment 3 (with separate entrance, landscaped garden): 25,500,000 HUF
Total property: 53,000,000 HUF
The current owner is handling the official subdivision of the property.
Features:
Water connection
Sewer connection
Electricity connection
Gas connection at the street
New, thermally insulated PVC windows and doors + some wooden windows and doors
Further information:
Completely new mechanical equipment: subject to agreement
The city center is within easy walking distance.
Furnishings:
Completely
Location:
Kiskunhalas is a vibrant small town in the southern Hungarian Plain, known for its friendly atmosphere, traditional markets, and famous Halasi lace – an intricately crafted lacework that has brought the town international acclaim. The historic town center, with its well-maintained squares, cafes, and small shops, invites visitors to a leisurely stroll.
The surrounding area is characterized by wide, open landscapes, abundant sunshine, and tranquil natural areas. Hikers and cyclists will find numerous trails through fields, meadows, and small forests. Kiskunhalas also boasts a well-equipped thermal spa and beach resort, attracting visitors from across the region. The combination of nature, culture, relaxation, and regional cuisine makes it an appealing destination for travelers seeking to experience authentic southern Hungary.
Distances (approx.)
Vienna: around 350 km
Budapest: around 150 km
Keszthely on Lake Balaton: around 150–160 km
Kiskunhalas is an excellent starting point for excursions into the Southern Plain, to wine regions, and to the numerous nature reserves of the area. The town offers a tranquil, authentic Hungarian lifestyle – combined with good infrastructure and warm hospitality.
The surrounding area is characterized by wide, open landscapes, abundant sunshine, and tranquil natural areas. Hikers and cyclists will find numerous trails through fields, meadows, and small forests. Kiskunhalas also boasts a well-equipped thermal spa and beach resort, attracting visitors from across the region. The combination of nature, culture, relaxation, and regional cuisine makes it an appealing destination for travelers seeking to experience authentic southern Hungary.
Distances (approx.)
Vienna: around 350 km
Budapest: around 150 km
Keszthely on Lake Balaton: around 150–160 km
Kiskunhalas is an excellent starting point for excursions into the Southern Plain, to wine regions, and to the numerous nature reserves of the area. The town offers a tranquil, authentic Hungarian lifestyle – combined with good infrastructure and warm hospitality.
Miscellaneous:
Whether you're looking to buy or sell a property in Hungary, Immocenter Hungary is your competent and trustworthy partner right on the ground. With our many years of experience, excellent market knowledge, and personalized service, we guide you safely and transparently through the entire buying or selling process.
Tip: Look out for our unique A-B-C classification in the title of our properties! You can find a detailed explanation of this classification on our homepage.
Property Inspection – Peace of Mind Before You Buy
Have you already found a property and want to be sure that the price and condition are right? Our certified building surveyor will thoroughly inspect your desired property and assess a fair purchase price. This way, you avoid costly surprises – because in Hungary, the principle of "sold as seen" generally applies, and subsequent claims for defects are difficult to enforce.
Individual Consultation – Personal, Independent, and Fair
If you wish, you can enter into an independent consulting agreement with us – entirely voluntary and not tied to any specific property. Our services include:
- Detailed recording of your search criteria in a personal search profile
- Suggestions of suitable properties – until you find your ideal property
- Joint viewings including a thorough risk assessment by our building surveyor and energy consultant (within a radius of approximately 50 km around Hévíz/Keszthely)
- Support and assistance with all purchase formalities
- Referral to a German-speaking notary or lawyer
- Provision of a German translation of the purchase agreement and support from a German-speaking lawyer
- Assistance with transferring utilities (electricity, gas, water, etc.)
- Upon request: reliable property management during your absence
Immocenter Hungary – secure, competent, and always by your side.
We look forward to meeting you personally and making your dream of owning a property in Hungary a reality!
Tip: Look out for our unique A-B-C classification in the title of our properties! You can find a detailed explanation of this classification on our homepage.
Property Inspection – Peace of Mind Before You Buy
Have you already found a property and want to be sure that the price and condition are right? Our certified building surveyor will thoroughly inspect your desired property and assess a fair purchase price. This way, you avoid costly surprises – because in Hungary, the principle of "sold as seen" generally applies, and subsequent claims for defects are difficult to enforce.
Individual Consultation – Personal, Independent, and Fair
If you wish, you can enter into an independent consulting agreement with us – entirely voluntary and not tied to any specific property. Our services include:
- Detailed recording of your search criteria in a personal search profile
- Suggestions of suitable properties – until you find your ideal property
- Joint viewings including a thorough risk assessment by our building surveyor and energy consultant (within a radius of approximately 50 km around Hévíz/Keszthely)
- Support and assistance with all purchase formalities
- Referral to a German-speaking notary or lawyer
- Provision of a German translation of the purchase agreement and support from a German-speaking lawyer
- Assistance with transferring utilities (electricity, gas, water, etc.)
- Upon request: reliable property management during your absence
Immocenter Hungary – secure, competent, and always by your side.
We look forward to meeting you personally and making your dream of owning a property in Hungary a reality!
Commission Rate:
As the buyer, you will pay 2.54% including Hungarian VAT for this property upon invoicing and signing of the purchase agreement. This price includes:
- Verification of the land register for encumbrances and ownership rights
- Referral to a German-speaking lawyer (in Hungary, lawyers authenticate purchase agreements, not notaries as in Germany)
- A German translation of the purchase agreement
- All utility transfers such as electricity, gas, water, waste disposal, etc.
- Verification of the land register for encumbrances and ownership rights
- Referral to a German-speaking lawyer (in Hungary, lawyers authenticate purchase agreements, not notaries as in Germany)
- A German translation of the purchase agreement
- All utility transfers such as electricity, gas, water, waste disposal, etc.
Remarks:
The information provided by us is based on information provided by the seller or the seller. For the correctness and completeness of the information, no responsibility or liability can be accepted. An intermediate sale and mistakes are reserved.
General business conditions:
We refer to our terms and conditions. Through further use our services do you explain your knowledge and consent.
Pay attention to our unique A-B-C classification of the objects at the beginning of the object heading! Explanation on www.ungarn.online
Have you found a house and want to know whether the offer is in order? Often there is the "foreigner surcharge" or hidden defects, let our building surveyor look at the house and verify the purchase price. After the purchase as seen Complaints are practically no longer enforceable.
You have the opportunity to conclude a consulting contract with us! This service is not tied to a specific object, is voluntary and includes the following services:
- Create an application in which you describe exactly which property is desired on the page https://ogy.de/gesuch
-Suggestions for suitable properties from various channels and from private sellers until you have found the right property
-Joint inspection of your dream property & Risk assessment by our building expert & Energy advisor (within a radius of Héviz | Keszthely 30 km)
- Support in handling all purchase formalities
- ion of an English-speaking notary (layer)
- English sales contract translation
- Re-registration of all providers such as electricity, water, gas etc.
- Housekeeping during your absence
At the following fixed price:
a) Purchase price greater than 50.000 € = 1.27% of the purchase price (including VAT)
b) Purchase price less than 50.000 € = 2.54% of the purchase price (including VAT)
You can find many more of our properties at:
www.immocenter-ungarn.com
Have you found a house and want to know whether the offer is in order? Often there is the "foreigner surcharge" or hidden defects, let our building surveyor look at the house and verify the purchase price. After the purchase as seen Complaints are practically no longer enforceable.
You have the opportunity to conclude a consulting contract with us! This service is not tied to a specific object, is voluntary and includes the following services:
- Create an application in which you describe exactly which property is desired on the page https://ogy.de/gesuch
-Suggestions for suitable properties from various channels and from private sellers until you have found the right property
-Joint inspection of your dream property & Risk assessment by our building expert & Energy advisor (within a radius of Héviz | Keszthely 30 km)
- Support in handling all purchase formalities
- ion of an English-speaking notary (layer)
- English sales contract translation
- Re-registration of all providers such as electricity, water, gas etc.
- Housekeeping during your absence
At the following fixed price:
a) Purchase price greater than 50.000 € = 1.27% of the purchase price (including VAT)
b) Purchase price less than 50.000 € = 2.54% of the purchase price (including VAT)
You can find many more of our properties at:
www.immocenter-ungarn.com
Die Preisangabe in Euro dient der Orientierung und kann je nach Wechselkurs geringfügig abweichen.
Unsere Preisgestaltung für unsere deutschen und ungarischen Kunden ist identisch
Back to the overview











































