Objekt 70 von 591
Nächstes Objekt
Vorheriges Objekt
Zurück zur Übersicht

Türje: (BBA) Sanierungsbedürftiges Haus im schönen Zalatal

Objekt-Nr.: KK2209
  • 424 € / m²
     
  • 424 € / m²
     
  • 424 € / m²
     
  • 424 € / m²
     
  • 424 € / m²
     
  • 424 € / m²
     
  • 424 € / m²
     
  • 424 € / m²
     
  • 424 € / m²
     
  • 424 € / m²
     
  • 424 € / m²
     
  • 424 € / m²
     
 
 
 
 
 
 
 
 
 
 
 
 
Schnellkontakt
Basisinformationen
Adresse:
8796 Türje
Region:
Zala
Gebiet:
Wohngebiet
Preis:
34.400 €
Wohnfläche ca.:
81 m²
Grundstück ca.:
1.060 m²
Zimmeranzahl:
2
Weitere Informationen
Weitere Informationen
Haustyp:
Einfamilienhaus
Provisionspflichtig:
ja
Provision:
2,42 % des Kaufpreises inkl. MwSt
Anzahl Schlafzimmer:
2
Anzahl Badezimmer:
1
Möbliert:
nein
Qualität der Ausstattung:
einfach
Zustand:
sanierungsbedürftig
Heizung:
Ofenheizung, Radiatoren
Befeuerungsart:
Gas, Holz
Beschreibung
Beschreibung
Objektbeschreibung:
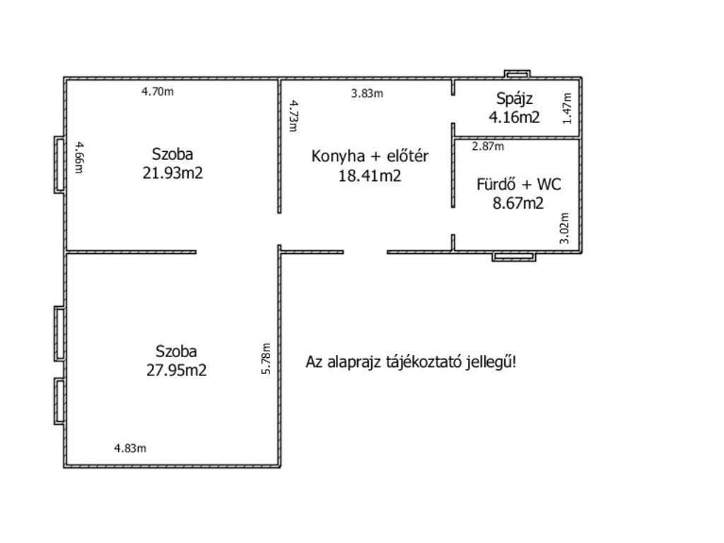
- Wohnfläche: 81 m², Grundstücksfläche: 1060 m²

- Mischbauweise (Lehmziegel + Ziegel), Außenansicht in gutem Zustand, Innenbereich renovierungsbedürftig

- Ziegeldach, Dachkonstruktion in gutem Zustand

- Wasseranschluss vorhanden, Wasserleitungen erneuert

- Neue Stromleitung (32 Ah) an der Außenwand, Innenverkabelung noch aus Aluminium

- Gasanschluss vorhanden

- Abwasseranschluss im Haus

- Zwei ineinander übergehende Räume (können auch als separate Räume genutzt werden), Flur + Küche, Badezimmer mit WC, Speisekammer

- Heizung: Gaskonvektor, Kamin vorhanden, daher auch Heizmöglichkeit über einen Ofen/Kamin

- Badezimmer und Küche noch nicht fertiggestellt

- Blick: Straße

- Brunnen im Hof

- Keine weiteren Nebengebäude auf dem Grundstück, nur ein ca. 6 m² offener Holzschuppen

- Großzügiger Wohnraum, familienfreundlich, ruhige Lage, nahe dem Ortskern (5-10 Gehminuten)

- Das Grundstück ist gepflegt

- Highspeed-Glasfaser-Internet/TV ist in der Siedlung verfügbar


- Die Immobilie kann sofort nach Zahlung des Kaufpreises bezogen werden


Der abgebildete Herd ist nicht im Kaufpreis enthalten!
Lage:
Gute Verkehrsanbindung: Bus und Bahn sind in der Siedlung vorhanden

In Türje finden Sie alles, was Sie brauchen: Geschäfte, Geldautomaten, Post, Arztpraxis, Apotheke, Kinderkrippe, Kindergarten und Schule

5 km von Zalaszentgrót, 15 km von Sümeg, gelegen in einer gepflegten Siedlung (Keszthely, Tapolca, Balaton 30-40 Minuten, Zalaegerszeg 30 Minuten, Österreich 1,5 - 2 Stunden mit dem Auto).
Sonstiges:
Sie haben eine Immobilie gefunden und möchten sicher sein, dass Preis und Zustand stimmen?
Gerade im Ausland können überhöhte Preise oder versteckte Mängel auftreten. Unser Bausachverständiger prüft das Objekt vor dem Kauf und hilft, Risiken zu vermeiden.
Denn nach dem Prinzip „gekauft wie gesehen“ sind spätere Mängelrügen kaum durchsetzbar.

Auf Wunsch unsere zusätzlichen Leistungen bei dem Abschluss eines Suchauftrages:

- Suchprofil & passende Objektvorschläge
- Gemeinsame Besichtigungen
- Zustands- und Risikoabschätzung
- Begleitung bei Kaufabwicklung

In der Provision enthalten:
- Grundbuchprüfung (Lasten & Eigentum)
- Vermittlung deutschsprachiger Rechtsanwalt / Notar
- Deutsche Kaufvertragsübersetzung
- Ummeldung von Strom, Wasser, Gas, Müll etc.
- Hausbetreuung auf Wunsch im ersten Jahr

Hinweis:
Die Objektbeschreibung basiert ganz oder teilweise auf den Angaben des Eigentümers. Für die Richtigkeit und Vollständigkeit dieser Informationen übernehmen wir keine Gewähr.

Möchten auch Sie Ihre Immobilie in Deutschland oder Ungarn professionell vermarkten?

Dann kontaktieren Sie uns gerne!
Über 200.000 aktive Interessenten warten bereits auf Ihr Angebot.
Bitte beachten Sie, dass das Exposé möglicherweise unter Zuhilfenahme von Künstlicher Intelligenz (KI) erstellt oder überarbeitet wurde. Dabei wurden jedoch keine wesentlichen Merkmale verändert.
Provision:
Als Käufer zahlen Sie bei diesem Objekt 2,42% inkl. ungarischer MwSt gegen Rechnungslegung und Unterzeichnung des Kaufvertrages. In diesem Preis enthalten ist die

- Überprüfung des Grundbuchs nach Lastenfreiheit und Eigentümerrechten
- Vermittlung eines deutschsprachigen Rechtsanwaltes (in HU beglaubigen Rechtsanwälte die Kaufverträge, keine Notare wie z.B.in D)
- eine deutschsprachige Übersetzung des Kaufvertrages
- alle Ummeldungen der Versorger wie Strom, Gas, Wasser, Müll etc.
Anmerkung:
Die von uns gemachten Informationen beruhen auf Angaben des Verkäufers bzw. der Verkäuferin. Für die Richtigkeit und Vollständigkeit der Angaben kann keine Gewähr bzw. Haftung übernommen werden. Ein Zwischenverkauf und Irrtümer sind vorbehalten.
AGB:
Wir weisen auf unsere Allgemeinen Geschäftsbedingungen hin. Durch weitere Inanspruchnahme unserer Leistungen erklären Sie die Kenntnis und Ihr Einverständnis.
 
Legen Sie ein kostenloses Gesuch an und wir informieren Sie automatisch, wenn passende Objekte eintreffen!
www.immocenter-ungarn.com

Die Preisangabe in Euro dient der Orientierung und kann je nach Wechselkurs geringfügig abweichen.
Unsere Preisgestaltung für unsere deutschen und ungarischen Kunden ist identisch


Zurück zur Übersicht