Property 50 from 587
Next property
Previous property
Back to the overview
Back to the overview
Next property
Previous property
Back to the overviewMiske: Three-story detached house – also ideal for accommodation
Property ID: SIK03
Quick Contact
Options
Options
Basic information
Address:
6343 Miske
Region:
Bács-Kiskun
Area:
Residential area
Price:
79.900 €
Living space:
235 sq. m.
Plot size:
1.547 sq. m.
No. of rooms:
5
Details
Details
Type of house:
Apartment building
Number of floors:
3
Useable area:
260 sq. m.
Bathroom:
Shower, Bathtub, Window
Number of bedrooms:
4
Number of bathrooms:
2
Terrace:
1
Outhouse:
yes
Guest WC:
yes
Attic:
yes
Basement:
Partial cellar
Number of parking spaces:
1 x Garage
Furnished:
Partly furnished
Quality of fittings:
Regular
Year of construction:
1985
Floor covering:
Tiles, Parquet flooring
Heating:
Central heating, Radiators
Type of heating system:
Gas
Further information
Further information
Property description:
Built in 1985 for private use, this solid brick house features three floors, each with its own living space – also ideally suited for accommodation.
Insulated exterior facade with high-quality plaster.
Windows and doors: wood and PVC – with roller shutters and insect screens.
Roofing: concrete tiles.
Heating, hot water, and building services: combination boiler (BAXI), radiators with heat distribution, electric water heater, connection to the sewage system.
Attic insulated with fiberglass.
Three-phase power connection 52 A + 16 A with night-time electricity regulation.
Alarm system installed.
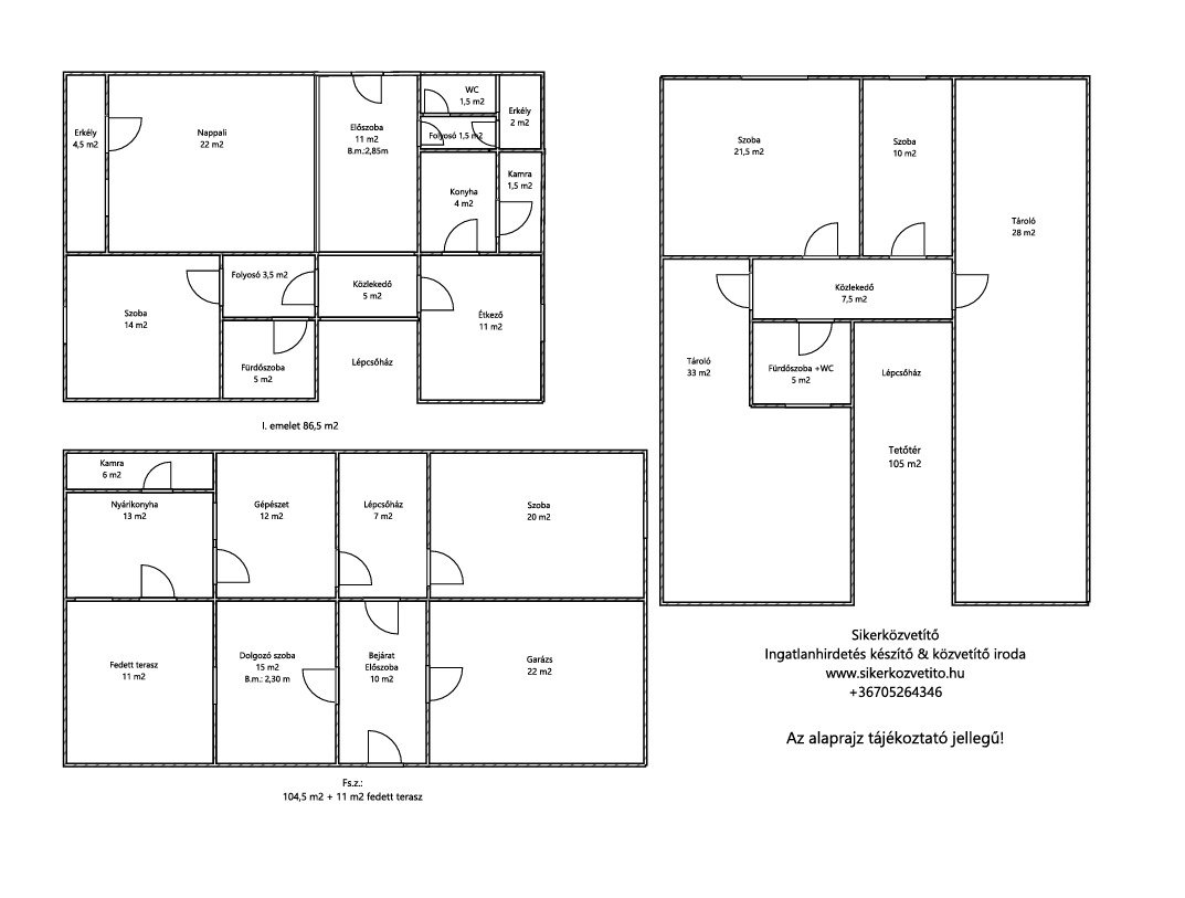
Room layout per floor:
Ground floor (105 m² + 11 m² covered terrace):
– 1 bedroom + 1 study
– Boiler room/utility room
– Summer kitchen with covered terrace
– Garage with electric door
Upper floor (86.5 m²):
– Separate entrance from the courtyard
– Hallway
– Spacious living room
– Dining room
– Kitchen
– Bathroom
– Pantry
– Toilet in a separate room
– Bedroom
Attic (45 m²):
– 2 bedrooms
– Bathroom with shower and toilet
– Attic suitable for conversion
Additional building sections:
– Workshop
– Vaulted cellar
– Storage room
Garden:
– Well-maintained
– Well for irrigation
Insulated exterior facade with high-quality plaster.
Windows and doors: wood and PVC – with roller shutters and insect screens.
Roofing: concrete tiles.
Heating, hot water, and building services: combination boiler (BAXI), radiators with heat distribution, electric water heater, connection to the sewage system.
Attic insulated with fiberglass.
Three-phase power connection 52 A + 16 A with night-time electricity regulation.
Alarm system installed.
Room layout per floor:
Ground floor (105 m² + 11 m² covered terrace):
– 1 bedroom + 1 study
– Boiler room/utility room
– Summer kitchen with covered terrace
– Garage with electric door
Upper floor (86.5 m²):
– Separate entrance from the courtyard
– Hallway
– Spacious living room
– Dining room
– Kitchen
– Bathroom
– Pantry
– Toilet in a separate room
– Bedroom
Attic (45 m²):
– 2 bedrooms
– Bathroom with shower and toilet
– Attic suitable for conversion
Additional building sections:
– Workshop
– Vaulted cellar
– Storage room
Garden:
– Well-maintained
– Well for irrigation
Location:
– Bács – Kiskun County. Miske is located in the western part of the Great Plain, on the left bank of the Danube, approximately 8 kilometers (5 miles) from the river as the crow flies. It lies about 130 kilometers (80 miles) south of Budapest and 10 kilometers (6 miles) southeast of Kalocsa. Neighboring villages are: Drágszél to the north, Homokmégy to the northeast, Hajós to the east, Dusnok to the south, Fajsz to the southwest, and Bátya to the northwest.
The property is situated on a quiet street within the residential area.
– Within a 10-minute walk: doctor's office, pharmacy, town hall, kindergarten, school, shop, bus stop
The property is situated on a quiet street within the residential area.
– Within a 10-minute walk: doctor's office, pharmacy, town hall, kindergarten, school, shop, bus stop
Miscellaneous:
Whether you're looking to buy or sell a property in Hungary, Immocenter Hungary is your competent and trustworthy partner right on the ground. With our many years of experience, excellent market knowledge, and personalized service, we guide you safely and transparently through the entire buying or selling process.
Tip: Look out for our unique A-B-C classification in the title of our properties! You can find a detailed explanation of this classification on our homepage.
Property Inspection – Peace of Mind Before You Buy
Have you already found a property and want to be sure that the price and condition are right? Our certified building surveyor will thoroughly inspect your desired property and assess a fair purchase price. This way, you avoid costly surprises – because in Hungary, the principle of "sold as seen" generally applies, and subsequent claims for defects are difficult to enforce.
Individual Consultation – Personal, Independent, and Fair
If you wish, you can enter into an independent consulting agreement with us – entirely voluntary and not tied to any specific property. Our services include:
- Detailed recording of your search criteria in a personal search profile
- Suggestions of suitable properties – until you find your ideal property
- Joint viewings including a thorough risk assessment by our building surveyor and energy consultant (within a radius of approximately 50 km around Hévíz/Keszthely)
- Support and assistance with all purchase formalities
- Referral to a German-speaking notary or lawyer
- Provision of a German translation of the purchase agreement and support from a German-speaking lawyer
- Assistance with transferring utilities (electricity, gas, water, etc.)
- Upon request: reliable property management during your absence
Immocenter Hungary – secure, competent, and always by your side.
We look forward to meeting you personally and making your dream of owning a property in Hungary a reality!
Tip: Look out for our unique A-B-C classification in the title of our properties! You can find a detailed explanation of this classification on our homepage.
Property Inspection – Peace of Mind Before You Buy
Have you already found a property and want to be sure that the price and condition are right? Our certified building surveyor will thoroughly inspect your desired property and assess a fair purchase price. This way, you avoid costly surprises – because in Hungary, the principle of "sold as seen" generally applies, and subsequent claims for defects are difficult to enforce.
Individual Consultation – Personal, Independent, and Fair
If you wish, you can enter into an independent consulting agreement with us – entirely voluntary and not tied to any specific property. Our services include:
- Detailed recording of your search criteria in a personal search profile
- Suggestions of suitable properties – until you find your ideal property
- Joint viewings including a thorough risk assessment by our building surveyor and energy consultant (within a radius of approximately 50 km around Hévíz/Keszthely)
- Support and assistance with all purchase formalities
- Referral to a German-speaking notary or lawyer
- Provision of a German translation of the purchase agreement and support from a German-speaking lawyer
- Assistance with transferring utilities (electricity, gas, water, etc.)
- Upon request: reliable property management during your absence
Immocenter Hungary – secure, competent, and always by your side.
We look forward to meeting you personally and making your dream of owning a property in Hungary a reality!
Commission Rate:
As the buyer, you will pay 2.54% including Hungarian VAT for this property upon invoicing and signing of the purchase agreement. This price includes:
- Verification of the land register for encumbrances and ownership rights
- Referral to a German-speaking lawyer (in Hungary, lawyers authenticate purchase agreements, not notaries as in Germany)
- A German translation of the purchase agreement
- All utility transfers such as electricity, gas, water, waste disposal, etc.
- Verification of the land register for encumbrances and ownership rights
- Referral to a German-speaking lawyer (in Hungary, lawyers authenticate purchase agreements, not notaries as in Germany)
- A German translation of the purchase agreement
- All utility transfers such as electricity, gas, water, waste disposal, etc.
Remarks:
The information provided by us is based on information provided by the seller or the seller. For the correctness and completeness of the information, no responsibility or liability can be accepted. An intermediate sale and mistakes are reserved.
General business conditions:
We refer to our terms and conditions. Through further use our services do you explain your knowledge and consent.
Pay attention to our unique A-B-C classification of the objects at the beginning of the object heading! Explanation on www.ungarn.online
Have you found a house and want to know whether the offer is in order? Often there is the "foreigner surcharge" or hidden defects, let our building surveyor look at the house and verify the purchase price. After the purchase as seen Complaints are practically no longer enforceable.
You have the opportunity to conclude a consulting contract with us! This service is not tied to a specific object, is voluntary and includes the following services:
- Create an application in which you describe exactly which property is desired on the page https://ogy.de/gesuch
-Suggestions for suitable properties from various channels and from private sellers until you have found the right property
-Joint inspection of your dream property & Risk assessment by our building expert & Energy advisor (within a radius of Héviz | Keszthely 30 km)
- Support in handling all purchase formalities
- ion of an English-speaking notary (layer)
- English sales contract translation
- Re-registration of all providers such as electricity, water, gas etc.
- Housekeeping during your absence
At the following fixed price:
a) Purchase price greater than 50.000 € = 1.27% of the purchase price (including VAT)
b) Purchase price less than 50.000 € = 2.54% of the purchase price (including VAT)
You can find many more of our properties at:
www.immocenter-ungarn.com
Have you found a house and want to know whether the offer is in order? Often there is the "foreigner surcharge" or hidden defects, let our building surveyor look at the house and verify the purchase price. After the purchase as seen Complaints are practically no longer enforceable.
You have the opportunity to conclude a consulting contract with us! This service is not tied to a specific object, is voluntary and includes the following services:
- Create an application in which you describe exactly which property is desired on the page https://ogy.de/gesuch
-Suggestions for suitable properties from various channels and from private sellers until you have found the right property
-Joint inspection of your dream property & Risk assessment by our building expert & Energy advisor (within a radius of Héviz | Keszthely 30 km)
- Support in handling all purchase formalities
- ion of an English-speaking notary (layer)
- English sales contract translation
- Re-registration of all providers such as electricity, water, gas etc.
- Housekeeping during your absence
At the following fixed price:
a) Purchase price greater than 50.000 € = 1.27% of the purchase price (including VAT)
b) Purchase price less than 50.000 € = 2.54% of the purchase price (including VAT)
You can find many more of our properties at:
www.immocenter-ungarn.com
Die Preisangabe in Euro dient der Orientierung und kann je nach Wechselkurs geringfügig abweichen.
Unsere Preisgestaltung für unsere deutschen und ungarischen Kunden ist identisch
Back to the overview





























