Object 41 van 62
Volgende object
Vorige object
Terug naar het overzicht
Terug naar het overzicht
Volgende object
Vorige object
Terug naar het overzichtHévíz: () Projectkavel in het westen van Hévíz
Object-Nr.: 77590
Snel contact
Opties
Opties
Kerngegevens
Adres:
8380 Hévíz
Regio:
Zala
Gebied:
Woongebied
Grondstuk:
1.125 m2.
Prijs:
145.000 €
Verdere gegevens
Verdere gegevens
Soort exploitatie:
Wonen
Bouwrijp maken:
ontsloten
Te bebouwen na:
Te bebouwen na bebouwingsplan
Bouwvergunning:
ja
Afbraak:
ja
Aanbevolen gebruik:
Meergezinswoning
Omgeving:
Winkels, Rustige omgeving
Uitvoerige beschrijving
Uitvoerige beschrijving
Objectbeschrijving:
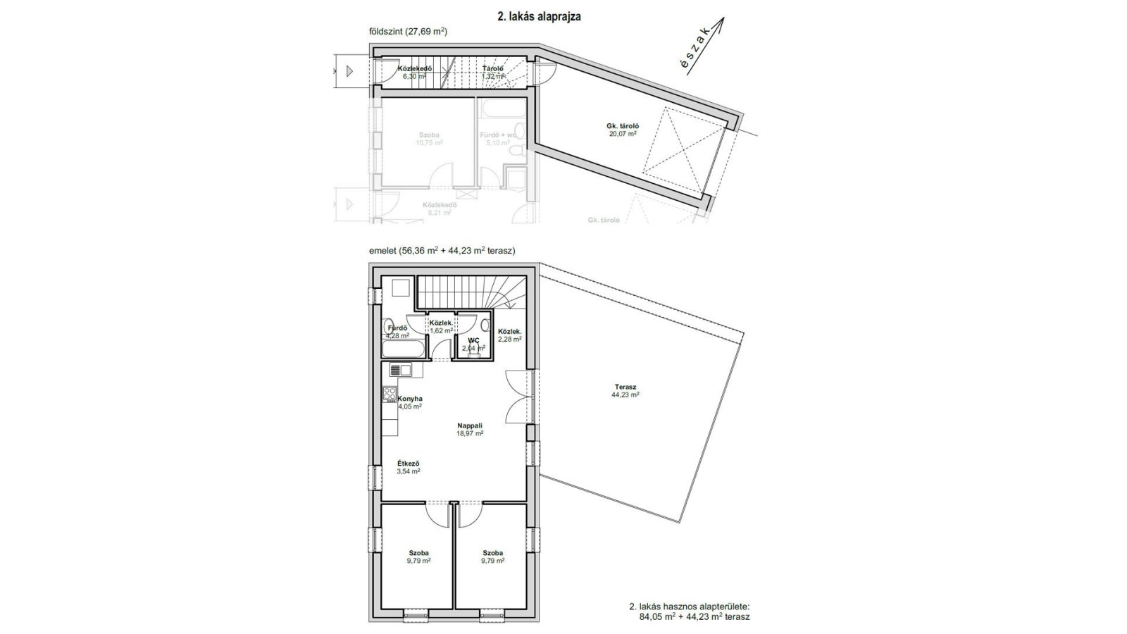
Op een rustige locatie ten westen van Hévíz staat een perceel grond van 1125 m² te koop, voorzien van alle nutsvoorzieningen, in een bebouwd gebied. Het beschikt over een binnenplaats op het zuiden en is ideaal geschikt voor de bouw van een meergezinswoning met vier wooneenheden. Bouwtekeningen en geveltekeningen conform de Hongaarse Woningwet zijn beschikbaar. De geplande appartementen beschikken over een eigen ingang, garages, terrassen en privétuinen, en hebben woonruimtes variërend van 1,5 tot 3 kamers.
Ligging:
Ten westen van Hevíz
7,2 km van het Balatonmeer
7,2 km van het Balatonmeer
Overige:
🏡 Of u nu een woning in Hongarije wilt kopen of verkopen, Immocenter Hongarije is uw competente en betrouwbare partner ter plaatse. Met onze jarenlange ervaring, uitstekende marktkennis en persoonlijke service begeleiden wij u veilig en transparant door het gehele koop- of verkoopproces.
💡 Tip: Let op onze unieke A-B-C-classificatie in de titel van onze woningen! U vindt een gedetailleerde uitleg over deze classificatie op onze homepage.
✅ Woninginspectie – Gemoedsrust vóór de aankoop
Heeft u al een woning gevonden en wilt u er zeker van zijn dat de prijs en staat van onderhoud kloppen? Onze gecertificeerde bouwkundig inspecteur inspecteert uw gewenste woning grondig en bepaalt een eerlijke aankoopprijs. Zo voorkomt u kostbare verrassingen – want in Hongarije geldt over het algemeen het principe "verkocht zoals gezien" en zijn latere claims voor gebreken moeilijk af te dwingen.
🤝 Individueel advies – persoonlijk, onafhankelijk en eerlijk
Op verzoek kunt u met ons een onafhankelijke adviesovereenkomst sluiten – geheel vrijwillig en niet gebonden aan een specifieke woning. Onze service omvat:
✔️ Gedetailleerde vastlegging van uw zoekcriteria in een persoonlijk zoekprofiel
✔️ Suggesties voor geschikte woningen – totdat u uw ideale woning vindt
✔️ Gezamenlijke bezichtigingen inclusief een grondige risicobeoordeling door onze bouwkundig inspecteur en energieadviseur (binnen een straal van circa 50 km rond Hévíz/Keszthely)
✔️ Ondersteuning en assistentie bij alle aankoopformaliteiten
✔️ Verwijzing naar een Duitstalige notaris of advocaat
✔️ Het verzorgen van een Duitse vertaling van de koopovereenkomst en ondersteuning door een Duitstalige advocaat
✔️ Assistentie bij het overdragen van nutsvoorzieningen (elektriciteit, gas, water, etc.) Co.
✔️ Op verzoek: betrouwbaar vastgoedbeheer tijdens uw afwezigheid
🌟 Immocenter Hongarije – veilig, competent en altijd aan uw zijde.
We kijken ernaar uit u persoonlijk te ontmoeten en uw droom van een woning in Hongarije te verwezenlijken!
💡 Tip: Let op onze unieke A-B-C-classificatie in de titel van onze woningen! U vindt een gedetailleerde uitleg over deze classificatie op onze homepage.
✅ Woninginspectie – Gemoedsrust vóór de aankoop
Heeft u al een woning gevonden en wilt u er zeker van zijn dat de prijs en staat van onderhoud kloppen? Onze gecertificeerde bouwkundig inspecteur inspecteert uw gewenste woning grondig en bepaalt een eerlijke aankoopprijs. Zo voorkomt u kostbare verrassingen – want in Hongarije geldt over het algemeen het principe "verkocht zoals gezien" en zijn latere claims voor gebreken moeilijk af te dwingen.
🤝 Individueel advies – persoonlijk, onafhankelijk en eerlijk
Op verzoek kunt u met ons een onafhankelijke adviesovereenkomst sluiten – geheel vrijwillig en niet gebonden aan een specifieke woning. Onze service omvat:
✔️ Gedetailleerde vastlegging van uw zoekcriteria in een persoonlijk zoekprofiel
✔️ Suggesties voor geschikte woningen – totdat u uw ideale woning vindt
✔️ Gezamenlijke bezichtigingen inclusief een grondige risicobeoordeling door onze bouwkundig inspecteur en energieadviseur (binnen een straal van circa 50 km rond Hévíz/Keszthely)
✔️ Ondersteuning en assistentie bij alle aankoopformaliteiten
✔️ Verwijzing naar een Duitstalige notaris of advocaat
✔️ Het verzorgen van een Duitse vertaling van de koopovereenkomst en ondersteuning door een Duitstalige advocaat
✔️ Assistentie bij het overdragen van nutsvoorzieningen (elektriciteit, gas, water, etc.) Co.
✔️ Op verzoek: betrouwbaar vastgoedbeheer tijdens uw afwezigheid
🌟 Immocenter Hongarije – veilig, competent en altijd aan uw zijde.
We kijken ernaar uit u persoonlijk te ontmoeten en uw droom van een woning in Hongarije te verwezenlijken!
Opmerking:
De door ons verstrekte informatie is gebaseerd op de door de verkoper verstrekte gegevens. Wij kunnen de juistheid of volledigheid van deze informatie niet garanderen of aanvaarden hiervoor geen aansprakelijkheid. Het object is onder voorbehoud van eerdere verkoop en fouten.
Algemene voorwaarden:
Let op onze algemene voorwaarden. Door onze diensten te blijven gebruiken, erkent u deze en gaat u ermee akkoord.
Maak een gratis zoekopdracht aan en we sturen je automatisch een melding wanneer er geschikte woningen beschikbaar komen!
www.immocenter-ungarn.com
www.immocenter-ungarn.com
Die Preisangabe in Euro dient der Orientierung und kann je nach Wechselkurs geringfügig abweichen.
Unsere Preisgestaltung für unsere deutschen und ungarischen Kunden ist identisch
Terug naar het overzicht


































+43 (0) 677 6282 0325