Object 287 van 409
Volgende object
Vorige object
Terug naar het overzicht
code
Terug naar het overzicht
Volgende object
Vorige object
Terug naar het overzichtKehidakustány: (AAA) Nieuw appartement in het kuuroord met panoramisch uitzicht
Object-Nr.: KK008
Snel contact
Opties
Opties
Kerngegevens
Adres:
8784 Kehidakustány
Regio:
Zala
Gebied:
Woongebied
Prijs:
249.000 €
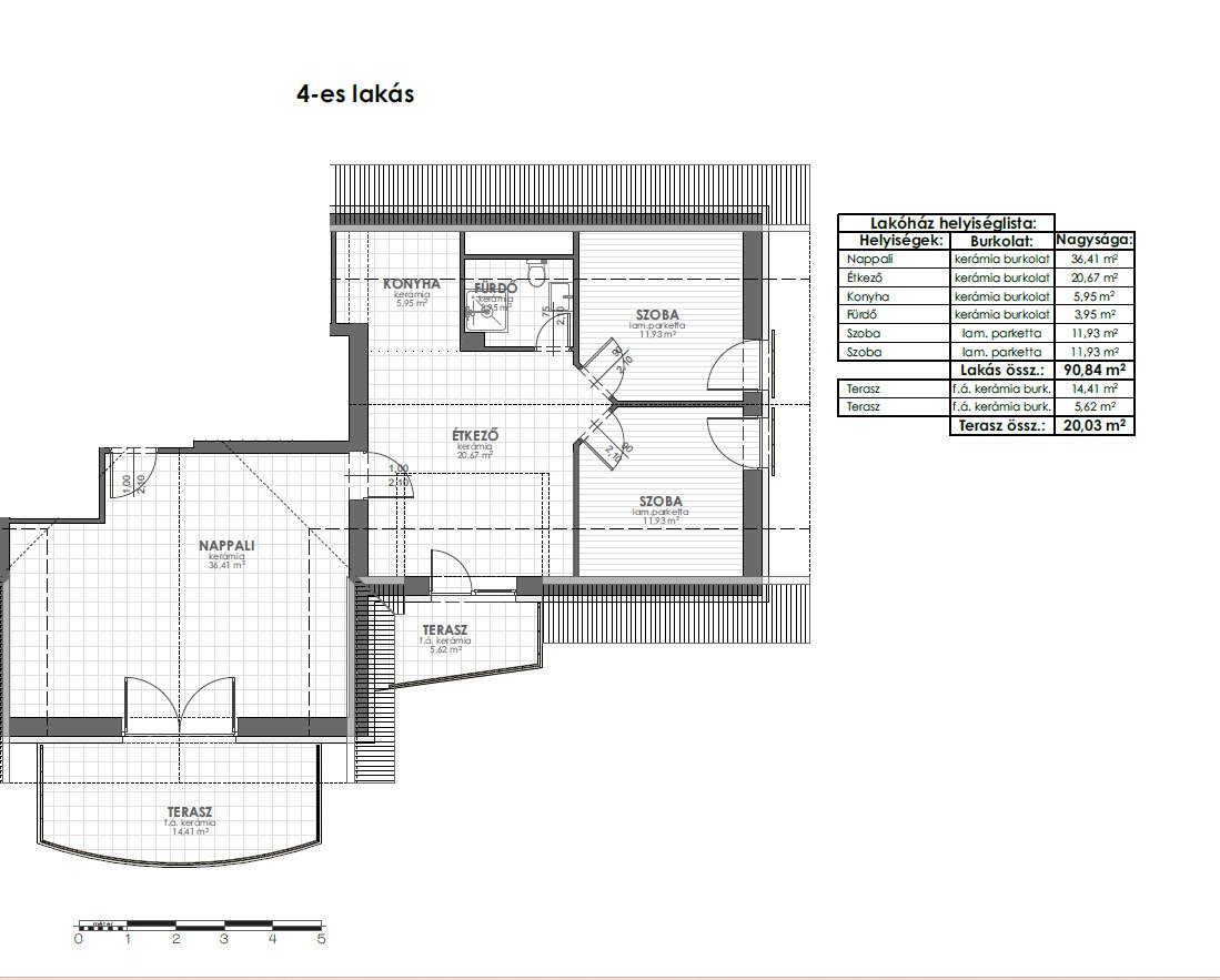
Woonoppervlak ca.:
90 m2.
Aantal kamers:
3,5
Verdere gegevens
Verdere gegevens
Woningtype:
Appartement
Aantal etages:
2
Op provisiebasis:
ja
Provisie:
1,27% van de aankoopprijs inclusief BTW
Keuken:
Inbouwkeuken
Bad:
Douche, Raam, Bidet
Aantal slaapkamers:
2
Aantal badkamers:
1
Balkon:
2
Kelder:
Bergruimte
Airco:
ja
Aantal parkeerplaatsen:
1 x Parkeerplaats buiten
Gemeubileerd:
Deels gemeubileerd
Uitzicht:
Weids uitzicht
Laatste modernisering/ sanering:
2025
Vloerbedekking:
Vloertegels, Parketvloer
Toestand:
Goed onderhouden
Verwarming:
Vloer, Centrale verwarming, met volledige luchtbehandeling, Luchtbehandelingsinstallatie
Verwarmingssoort:
Gas
Uitvoerige beschrijving
Uitvoerige beschrijving
Objectbeschrijving:
In Kehidakustány, in de provincie Zala, verhuren we ruime, lichte, nieuwbouwappartementen in ons appartementencomplex met vier woningen, gelegen in de directe nabijheid van de rivier de Zala en het fietspad.
Het complex is gelegen in een prachtig aangelegde, rustige omgeving, in een gebied met alle openbare voorzieningen en een verhard wegennet.
Het energieverbruik van de gemeubileerde appartementen wordt per wooneenheid apart gemeten, heeft onafhankelijke hoofdmeters en is zeer zuinig.
Bij elk appartement bieden we een parkeerplaats ter waarde van 3.000.000 ft (ca. 280.000 m²). Parkeren is gratis op de bovengrondse parkeerplaatsen. De appartementen zijn volledig gemeubileerd, beschikken over een mechanische keuken en meubilair en zijn instapklaar.
Een berging kan per appartement worden gekocht voor 400.000 ft (ca. 37.000 m²).
Het wooncomplex is gebouwd volgens een hoge standaard. De verwarming wordt verzorgd door vloerverwarming met een gascondensatieketel. Elk appartement is uitgerust met een airconditioningsysteem van 3,5 kW. De 15 cm dikke grafietisolatie aan de buitenkant en de zonnepanelen zorgen voor een optimale warmwatervoorziening. Elke unit heeft een eigen meter.
De beveiliging van het appartementencomplex wordt gewaarborgd door een alarm- en camerasysteem. De poorten zijn voorzien van een draadloos, gemotoriseerd of zelfs op afstand bedienbaar openingssysteem. Bel ons voor meer informatie!
Het complex is gelegen in een prachtig aangelegde, rustige omgeving, in een gebied met alle openbare voorzieningen en een verhard wegennet.
Het energieverbruik van de gemeubileerde appartementen wordt per wooneenheid apart gemeten, heeft onafhankelijke hoofdmeters en is zeer zuinig.
Bij elk appartement bieden we een parkeerplaats ter waarde van 3.000.000 ft (ca. 280.000 m²). Parkeren is gratis op de bovengrondse parkeerplaatsen. De appartementen zijn volledig gemeubileerd, beschikken over een mechanische keuken en meubilair en zijn instapklaar.
Een berging kan per appartement worden gekocht voor 400.000 ft (ca. 37.000 m²).
Het wooncomplex is gebouwd volgens een hoge standaard. De verwarming wordt verzorgd door vloerverwarming met een gascondensatieketel. Elk appartement is uitgerust met een airconditioningsysteem van 3,5 kW. De 15 cm dikke grafietisolatie aan de buitenkant en de zonnepanelen zorgen voor een optimale warmwatervoorziening. Elke unit heeft een eigen meter.
De beveiliging van het appartementencomplex wordt gewaarborgd door een alarm- en camerasysteem. De poorten zijn voorzien van een draadloos, gemotoriseerd of zelfs op afstand bedienbaar openingssysteem. Bel ons voor meer informatie!
Indeling:
Alle verbindingen beschikbaar
Ligging:
Kehidakustány – Een idyllische thermenwijk in de Zalavallei, vlakbij het Balatonmeer
Kehidakustány staat bekend om zijn Kehida Termál spa en avonturenbad: een ruim opgezet thermaal resort met binnen- en buitenbaden, glijbanen en een saunawereld – ideaal voor wellness, gezinnen en om het hele jaar door te zwemmen.
In het dorp herdenkt de Deák Ferenc Kúria de "Wijze Man van de Natie" – een klein, sfeervol museum in een historische setting.
kehidakustány.hu
Afstanden (met de auto, ca.)
Keszthely (Balaton): ~21 km / ~25 min. (via Zalaapáti/Zalacsány).
Boedapest: ~205 km / ~2–2,5 uur via de M7.
Wenen: ~185–190 km / ~2,5–3 uur. (A3 → grensovergang, verder richting Sárvár/Zala).
Kehidakustány staat bekend om zijn Kehida Termál spa en avonturenbad: een ruim opgezet thermaal resort met binnen- en buitenbaden, glijbanen en een saunawereld – ideaal voor wellness, gezinnen en om het hele jaar door te zwemmen.
In het dorp herdenkt de Deák Ferenc Kúria de "Wijze Man van de Natie" – een klein, sfeervol museum in een historische setting.
kehidakustány.hu
Afstanden (met de auto, ca.)
Keszthely (Balaton): ~21 km / ~25 min. (via Zalaapáti/Zalacsány).
Boedapest: ~205 km / ~2–2,5 uur via de M7.
Wenen: ~185–190 km / ~2,5–3 uur. (A3 → grensovergang, verder richting Sárvár/Zala).
Overige:
🏡 Of u nu een woning in Hongarije wilt kopen of verkopen: Immocenter Hongarije is uw deskundige en betrouwbare lokale partner. Met onze jarenlange ervaring, uitstekende marktkennis en persoonlijke ondersteuning begeleiden wij u veilig en transparant door het gehele aan- of verkoopproces.
💡 Tip: Let op onze unieke A-B-C-classificatie in de titel van onze woningen! De betekenis van deze classificatie wordt uitgebreid uitgelegd op onze homepage.
✅ Woningcheck – Veiligheid vóór aankoop
Heeft u al een woning gevonden en wilt u er zeker van zijn dat de prijs en staat van onderhoud kloppen? Onze gecertificeerde bouwexpert inspecteert uw droomwoning grondig en bepaalt de juiste aankoopprijs. Zo voorkomt u dure verrassingen – want in Hongarije geldt meestal "verkocht zoals gezien" en zijn latere klachten over gebreken nauwelijks afdwingbaar.
🤝 Individueel advies – persoonlijk, onafhankelijk en eerlijk
U kunt desgewenst een onafhankelijk adviescontract met ons afsluiten – uiteraard op vrijwillige basis en niet gebonden aan een specifieke woning. Onze service omvat:
✔️ Gedetailleerde vastlegging van uw zoekcriteria in een gepersonaliseerd zoekprofiel
✔️ Suggesties voor geschikte woningen – totdat u uw droomhuis vindt
✔️ Gezamenlijke bezichtigingen inclusief een grondige risicobeoordeling door onze bouwexpert en energieadviseur (binnen een straal van circa 50 km van Hévíz/Keszthely)
✔️ Ondersteuning en assistentie bij alle aankoopformaliteiten
✔️ Inschakeling van een Duitstalige notaris of advocaat
✔️ Vertaling van een Duitse koopovereenkomst en ondersteuning door een Duitstalige advocaat
✔️ Ondersteuning bij het opnieuw aanvragen van elektriciteit, gas, water, enz.
✔️ Op verzoek: betrouwbaar vastgoedbeheer tijdens uw afwezigheid
🌟 Immocenter Hongarije – veilig, competent en altijd aan uw zijde.
We kijken ernaar uit u persoonlijk te ontmoeten en uw droom van een woning in Hongarije te verwezenlijken!
💡 Tip: Let op onze unieke A-B-C-classificatie in de titel van onze woningen! De betekenis van deze classificatie wordt uitgebreid uitgelegd op onze homepage.
✅ Woningcheck – Veiligheid vóór aankoop
Heeft u al een woning gevonden en wilt u er zeker van zijn dat de prijs en staat van onderhoud kloppen? Onze gecertificeerde bouwexpert inspecteert uw droomwoning grondig en bepaalt de juiste aankoopprijs. Zo voorkomt u dure verrassingen – want in Hongarije geldt meestal "verkocht zoals gezien" en zijn latere klachten over gebreken nauwelijks afdwingbaar.
🤝 Individueel advies – persoonlijk, onafhankelijk en eerlijk
U kunt desgewenst een onafhankelijk adviescontract met ons afsluiten – uiteraard op vrijwillige basis en niet gebonden aan een specifieke woning. Onze service omvat:
✔️ Gedetailleerde vastlegging van uw zoekcriteria in een gepersonaliseerd zoekprofiel
✔️ Suggesties voor geschikte woningen – totdat u uw droomhuis vindt
✔️ Gezamenlijke bezichtigingen inclusief een grondige risicobeoordeling door onze bouwexpert en energieadviseur (binnen een straal van circa 50 km van Hévíz/Keszthely)
✔️ Ondersteuning en assistentie bij alle aankoopformaliteiten
✔️ Inschakeling van een Duitstalige notaris of advocaat
✔️ Vertaling van een Duitse koopovereenkomst en ondersteuning door een Duitstalige advocaat
✔️ Ondersteuning bij het opnieuw aanvragen van elektriciteit, gas, water, enz.
✔️ Op verzoek: betrouwbaar vastgoedbeheer tijdens uw afwezigheid
🌟 Immocenter Hongarije – veilig, competent en altijd aan uw zijde.
We kijken ernaar uit u persoonlijk te ontmoeten en uw droom van een woning in Hongarije te verwezenlijken!
Provisie:
Als koper betaalt u 2,54% inclusief Hongaarse btw voor deze woning bij overlegging van de factuur en ondertekening van de koopovereenkomst. Deze prijs is inclusief:
- Controle van het kadaster op bezwaren en eigendomsrechten
- Inschakeling van een Duitstalige advocaat (in Hongarije notariseren advocaten de koopovereenkomsten, geen notarissen zoals in Duitsland)
- Een Duitse vertaling van de koopovereenkomst
- Alle nutsvoorzieningen zoals elektriciteit, gas, water, afval, enz.
- Controle van het kadaster op bezwaren en eigendomsrechten
- Inschakeling van een Duitstalige advocaat (in Hongarije notariseren advocaten de koopovereenkomsten, geen notarissen zoals in Duitsland)
- Een Duitse vertaling van de koopovereenkomst
- Alle nutsvoorzieningen zoals elektriciteit, gas, water, afval, enz.
Opmerking:
De informatie die wij verstrekken is gebaseerd op informatie van de verkoper. Wij aanvaarden geen aansprakelijkheid voor de juistheid of volledigheid van de informatie. Onder voorbehoud van eerdere verkoop en fouten.
Algemene voorwaarden:
Raadpleeg onze algemene voorwaarden. Door gebruik te blijven maken van onze diensten, bevestigt u dat u hiervan op de hoogte bent en ermee instemt.
Maak een gratis zoekopdracht aan en we sturen je automatisch een melding wanneer er geschikte panden beschikbaar zijn!
www.immocenter-ungarn.com
www.immocenter-ungarn.com
Die Preisangabe in Euro dient der Orientierung und kann je nach Wechselkurs geringfügig abweichen.
Unsere Preisgestaltung für unsere deutschen und ungarischen Kunden ist identisch
Terug naar het overzicht








































+43 (0) 677 6282 0325