Ajánlat 405 tól 591
Következo
Elozo
Vissza az ajánlatlistához
Vissza az ajánlatlistához
Következo
Elozo
Vissza az ajánlatlistáhozTapolca: (AAA) Kiváló családi ház Tapolca északi részén
Nyilvántartási sz.: KK2223
Gyors kapcsolat
Opciók
Opciók
Legfontosabb adatok
Cím:
8300 Tapolca
Régió:
Veszprém
Terület:
Lakóterület
Vételár:
293.000 €
Lakóterület kb.:
93 nm;
Telek kb.:
410 nm;
Szobák száma:
3
További adatok
További adatok
Ház típusa:
családiház
Jutalékköteles:
igen
Jutalék:
a vételár 1,21%-a, ÁFA-val együtt
Konyha:
Beépített konyha, Nyitva
Fürdoszoba:
Fürdokád, Ablak, Bidé
Hálószobák száma:
2
Fürdoszobák száma:
1
Terasz:
1
Szauna:
igen
parkoló helyek száma :
1 x Garázs
Bútorozás:
Részben bútorozva
Utolsó felújítás/ tatarozás:
2024
A berendezés minosége:
Emelt szintu
Építés éve:
1996
Padlóburkolat:
Járólap, Laminat
Állapot:
Teljesen felújított
Futés:
Kandalós futés, Központifutés, Radiators
Futés módja:
Gáz, Fa
Részletes leírás
Részletes leírás
ingatlanleírás:
Tapolca egyik legkeresettebb lakóövezetében található ez a kivételesen jó állapotban lévő családi ház, amely ideális ingatlant kínál azok számára, akik új életet szeretnének kezdeni Magyarországon, vagy megbízható befektetést keresnek a Balaton közelében.
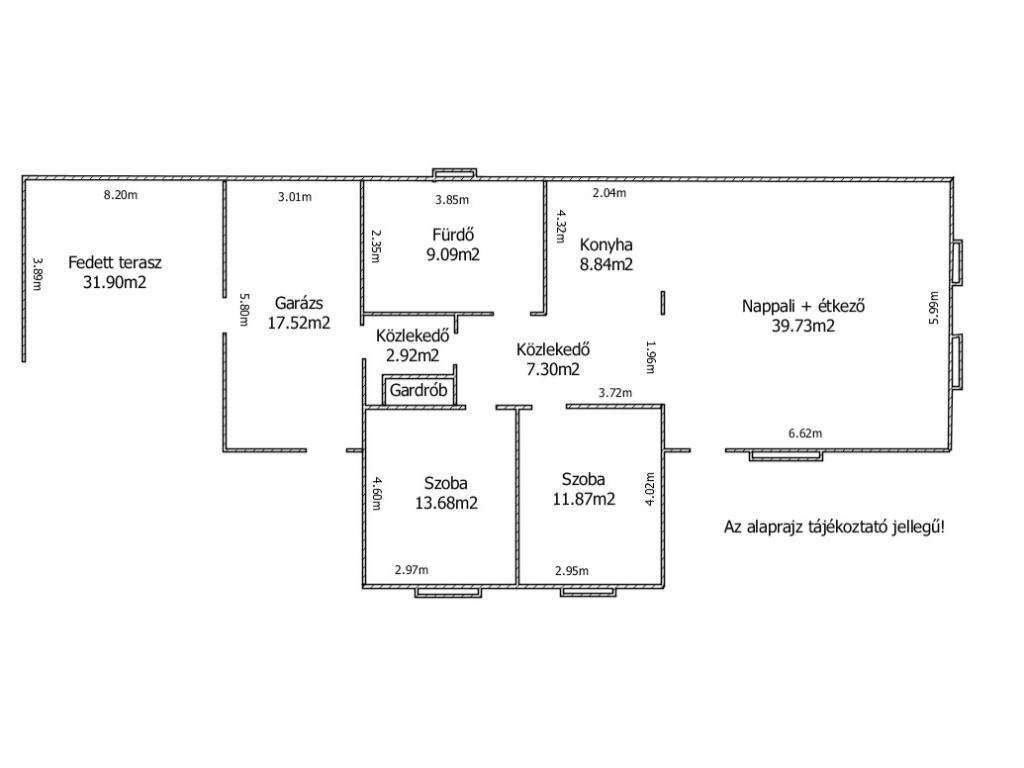
A ház körülbelül 130 m² lakóterülettel rendelkezik, két szinten elosztva, és egy gondozott, körülbelül 726 m²-es telken fekszik. Összesen négy szobával, köztük három hálószobával és két fürdőszobával rendelkezik, így az ingatlan tökéletesen alkalmas családok, párok vagy külföldiek számára, akik tágas teret igényelnek.
A folyamatos modernizációknak köszönhetően a ház kiváló állapotban van, és azonnal beköltözhető, nagyobb felújítások nélkül.
Lakhatási kényelem és jellemzők:
A ház a klasszikus építészeti stílust modern elemekkel ötvözi:
Tágas nappali és étkező nyitott konyhával
Kijárat a kertre néző fedett teraszra
Kiváló minőségű padlóburkolat (parketta és járólap)
2 fürdőszoba (zuhanyzó és kád)
Modern PVC ablakok
Részleges pince (kb. 20 m²)
Az ingatlan műszakilag is modernizált:
Új gázfűtés (2023)
Klíma mindkét szinten (2024)
Felújított tető (2019)
Riasztórendszer és biztonsági kamerák
A gyümölcsfákkal teli kert rengeteg helyet kínál a pihenésre, grillezésre és a szabadban való időtöltésre.
A ház körülbelül 130 m² lakóterülettel rendelkezik, két szinten elosztva, és egy gondozott, körülbelül 726 m²-es telken fekszik. Összesen négy szobával, köztük három hálószobával és két fürdőszobával rendelkezik, így az ingatlan tökéletesen alkalmas családok, párok vagy külföldiek számára, akik tágas teret igényelnek.
A folyamatos modernizációknak köszönhetően a ház kiváló állapotban van, és azonnal beköltözhető, nagyobb felújítások nélkül.
Lakhatási kényelem és jellemzők:
A ház a klasszikus építészeti stílust modern elemekkel ötvözi:
Tágas nappali és étkező nyitott konyhával
Kijárat a kertre néző fedett teraszra
Kiváló minőségű padlóburkolat (parketta és járólap)
2 fürdőszoba (zuhanyzó és kád)
Modern PVC ablakok
Részleges pince (kb. 20 m²)
Az ingatlan műszakilag is modernizált:
Új gázfűtés (2023)
Klíma mindkét szinten (2024)
Felújított tető (2019)
Riasztórendszer és biztonsági kamerák
A gyümölcsfákkal teli kert rengeteg helyet kínál a pihenésre, grillezésre és a szabadban való időtöltésre.
Felszereltség:
Minden közműcsatlakozási lehetőség (víz, gáz, villany és csatorna) rendelkezésre áll.
Ház /Telek fekvése:
Tapolca a Balaton északnyugati partjának egyik legbájosabb kisvárosa. A város ötvözi a történelmi hangulatot, az egyedülálló természeti élményeket és a nyugodt életminőséget – ideális nyaralók, kirándulók és a nyugalomra vágyók számára.
A város abszolút fénypontja az egyedülálló Tapolcai-tavasbarlang, egy földalatti barlangtó, amely kis csónakkal fedezhető fel. Ez a rendkívüli természeti élmény teszi Tapolcát a régió egyik legnépszerűbb úti céljává.
A városközpontban a festői Malom-tó Tapolcán, történelmi malmaival, kávézóival és éttermeivel, csábítja a látogatókat időzésre. A víz, a régi épületek és a hangulatos hangulat kombinációja szinte mediterrán bájt kölcsönöz a városnak.
Tapolca környékét a Balaton-felvidék vulkanikus dombjai jellemzik. Túrázás, kerékpározás, szőlőültetvényekre és kilátópontokra tett kirándulások lélegzetelállító panorámát kínálnak a régióra.
Távolságok:
Bécsig: kb. 190 km (menetidő kb. 2–2,5 óra)
Budapestig: kb. 180 km (menetidő kb. 2 óra)
Keszthely a balatoni parton: kb. 15 km (menetidő kb. 15–20 perc)
Tapolca a természet, a történelem és az életminőség egyedülálló keverékét kínálja. A balatoni közelség, az egyedülálló barlangrendszer és a bájos óváros ideális úti céllá teszi a kikapcsolódáshoz, kirándulásokhoz, vagy akár állandó lakhatáshoz Magyarország egyik legszebb régiójában.
A város abszolút fénypontja az egyedülálló Tapolcai-tavasbarlang, egy földalatti barlangtó, amely kis csónakkal fedezhető fel. Ez a rendkívüli természeti élmény teszi Tapolcát a régió egyik legnépszerűbb úti céljává.
A városközpontban a festői Malom-tó Tapolcán, történelmi malmaival, kávézóival és éttermeivel, csábítja a látogatókat időzésre. A víz, a régi épületek és a hangulatos hangulat kombinációja szinte mediterrán bájt kölcsönöz a városnak.
Tapolca környékét a Balaton-felvidék vulkanikus dombjai jellemzik. Túrázás, kerékpározás, szőlőültetvényekre és kilátópontokra tett kirándulások lélegzetelállító panorámát kínálnak a régióra.
Távolságok:
Bécsig: kb. 190 km (menetidő kb. 2–2,5 óra)
Budapestig: kb. 180 km (menetidő kb. 2 óra)
Keszthely a balatoni parton: kb. 15 km (menetidő kb. 15–20 perc)
Tapolca a természet, a történelem és az életminőség egyedülálló keverékét kínálja. A balatoni közelség, az egyedülálló barlangrendszer és a bájos óváros ideális úti céllá teszi a kikapcsolódáshoz, kirándulásokhoz, vagy akár állandó lakhatáshoz Magyarország egyik legszebb régiójában.
Egyéb:
Talált egy ingatlant, és szeretne biztos lenni abban, hogy az ár és az állapot megfelelő?
Különösen külföldön előfordulhatnak felfújt árak vagy rejtett hibák. Építési szakértőnk a vásárlás előtt megvizsgálja az ingatlant, és segít elkerülni a kockázatokat.
Mivel a "látható állapotban eladó" elv alapján a későbbi hibákra vonatkozó igények nehezen érvényesíthetők.
Kérésre további szolgáltatásaink a keresési szerződés megkötésekor a következők:
- Keresési profil és megfelelő ingatlanjavaslatok
- Közös megtekintés
- Állapot- és kockázatértékelés
- Támogatás a vásárlási folyamat során
A jutalék tartalmazza:
- Ingatlan-nyilvántartási ellenőrzés (terhek és tulajdonjog)
- Németül beszélő ügyvéd/közjegyző ajánlása
- Adásvételi szerződés német fordítása
- Villany, víz, gáz, szemétszállítás stb. átruházása
- Ingatlankezelés kérésre az első évben
Megjegyzés:
Az ingatlanleírás részben vagy egészben a tulajdonos által megadott információkon alapul. Nem vállalunk felelősséget ezen információk pontosságáért és teljességéért.
Szeretné professzionálisan értékesíteni ingatlanát Németországban vagy Magyarországon?
Akkor kérjük, vegye fel velünk a kapcsolatot!
Több mint 200 000 aktív potenciális vásárló várja már az ajánlatát.
Felhívjuk figyelmét, hogy az ingatlan adatait mesterséges intelligencia (MI) segítségével hozhatták létre vagy módosíthatták. Azonban semmilyen lényeges funkció nem változott.
Különösen külföldön előfordulhatnak felfújt árak vagy rejtett hibák. Építési szakértőnk a vásárlás előtt megvizsgálja az ingatlant, és segít elkerülni a kockázatokat.
Mivel a "látható állapotban eladó" elv alapján a későbbi hibákra vonatkozó igények nehezen érvényesíthetők.
Kérésre további szolgáltatásaink a keresési szerződés megkötésekor a következők:
- Keresési profil és megfelelő ingatlanjavaslatok
- Közös megtekintés
- Állapot- és kockázatértékelés
- Támogatás a vásárlási folyamat során
A jutalék tartalmazza:
- Ingatlan-nyilvántartási ellenőrzés (terhek és tulajdonjog)
- Németül beszélő ügyvéd/közjegyző ajánlása
- Adásvételi szerződés német fordítása
- Villany, víz, gáz, szemétszállítás stb. átruházása
- Ingatlankezelés kérésre az első évben
Megjegyzés:
Az ingatlanleírás részben vagy egészben a tulajdonos által megadott információkon alapul. Nem vállalunk felelősséget ezen információk pontosságáért és teljességéért.
Szeretné professzionálisan értékesíteni ingatlanát Németországban vagy Magyarországon?
Akkor kérjük, vegye fel velünk a kapcsolatot!
Több mint 200 000 aktív potenciális vásárló várja már az ajánlatát.
Felhívjuk figyelmét, hogy az ingatlan adatait mesterséges intelligencia (MI) segítségével hozhatták létre vagy módosíthatták. Azonban semmilyen lényeges funkció nem változott.
Jutalék:
Vevőként Ön 1,21%-os áfát fizet az ingatlanért a számlázás és a vételi szerződés aláírásakor. Ez az ár tartalmazza:
- Az ingatlan-nyilvántartás ellenőrzése terhek és tulajdonjogok tekintetében
- Németül beszélő ügyvéd ajánlása (Magyarországon ügyvédek hitelesítik a vételi szerződéseket, nem közjegyzők, mint Németországban)
- A vételi szerződés német fordítása
- Minden közműszolgáltatás, például villany, gáz, víz, hulladékkezelés stb.
- Az ingatlan-nyilvántartás ellenőrzése terhek és tulajdonjogok tekintetében
- Németül beszélő ügyvéd ajánlása (Magyarországon ügyvédek hitelesítik a vételi szerződéseket, nem közjegyzők, mint Németországban)
- A vételi szerződés német fordítása
- Minden közműszolgáltatás, például villany, gáz, víz, hulladékkezelés stb.
Megjegyzés:
Az általunk nyújtott információk az eladó által szolgáltatott információkon alapulnak. Az információk helyességéért és teljességéért semmilyen garancia vagy felelősség nem vállalható. A köztes értékesítés és a hibák fenntartva vannak.
Általános üzleti feltételek:
Hivatkozunk az Általános Szerződési Feltételeinkre. A szolgáltatásaink további használatával kijelenti, hogy tudatában van ennek és egyetértésben van.
Hozzon létre egy ingyenes kérést, és mi automatikusan tájékoztatjuk Önt, ha megfelelő tárgyak érkeznek!
www.immocenter-ungarn.com
www.immocenter-ungarn.com
Die Preisangabe in Euro dient der Orientierung und kann je nach Wechselkurs geringfügig abweichen.
Unsere Preisgestaltung für unsere deutschen und ungarischen Kunden ist identisch
Vissza az ajánlatlistához


















