Ajánlat 160 tól 605
Következo
Elozo
Vissza az ajánlatlistához
Vissza az ajánlatlistához
Következo
Elozo
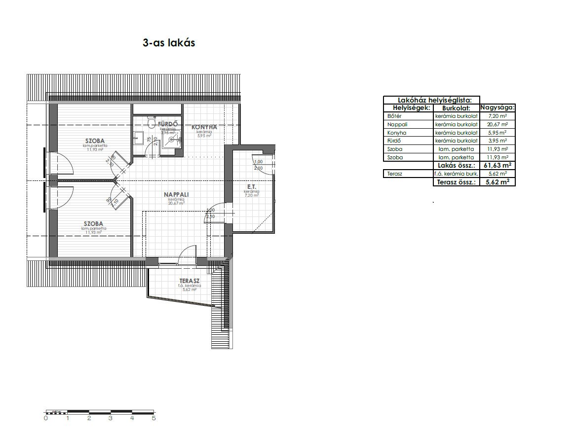
Vissza az ajánlatlistáhozKehidakustány: Új épület: Bútorozott első emeleti lakás a fürdővárosban
Nyilvántartási sz.: KK009-M
Gyors kapcsolat
Opciók
Opciók
Legfontosabb adatok
Cím:
8784 Kehidakustány
Régió:
Zala
Terület:
Lakóterület
Havi bérleti díj futés nélkül, rezsiköltség nélkül:
600 €
Lakóterület kb.:
67 nm;
Szobák száma:
2,5
További adatok
További adatok
Lakás típusa:
Emeleti lakás
Emelet:
2
Szintek száma:
2
Futési költség:
A költségek tartalmazzák
Jutalékköteles:
igen
Jutalék:
520 € ÁFA-val
Konyha:
Beépített konyha
Fürdoszoba:
Zuhanyzó, Ablak
Hálószobák száma:
2
Fürdoszobák száma:
1
Terasz:
1
Légkondicionáló:
igen
parkoló helyek száma :
1 x Külso beállóhelyek
Bútorozás:
igen
Háziállatok:
Megegyezés szerint
Kilátás:
Kilátás távolra
Utolsó felújítás/ tatarozás:
2025
A berendezés minosége:
Emelt szintu
Beköltözheto ...tól:
2027. január 1.
Padlóburkolat:
Járólap, Parketta
Állapot:
Újszeru
Futés:
Padló, Központifutés, teljesen klimatizált, Klíma
Futés módja:
Gáz
Részletes leírás
Részletes leírás
ingatlanleírás:
Zala megyében, Kehidakustányban tágas, világos, új építésű lakásokat adunk ki négylakásos társasházunkban, a Zala folyó és a kerékpárút közelében.
Az ingatlan gyönyörűen parkosított, csendes környéken található, teljes közműszolgáltatással és aszfaltozott úthálózattal ellátott területen.
Az épület és a lakások akadálymentesítettek és kerekesszékkel könnyen megközelíthetőek. A bútorozott lakások energiafogyasztását minden egységre külön mérjük, független főmérőkkel rendelkeznek, és rendkívül gazdaságosak.
A parkolás ingyenes a föld feletti parkolóhelyeken. A lakások teljesen berendezettek, gépesített konyhával és bútorokkal rendelkeznek, és azonnal beköltözhetők.
A társasház biztonságát riasztó- és kamerarendszer biztosítja. A kapuk vezeték nélküli, motoros, vagy akár távirányítású nyitórendszerrel rendelkeznek. A szerződéskötéshez 2 havi bérleti díj + 1 havi bérleti díj kauciója szükséges. További információért kérjük, hívjon minket!
Az ingatlan gyönyörűen parkosított, csendes környéken található, teljes közműszolgáltatással és aszfaltozott úthálózattal ellátott területen.
Az épület és a lakások akadálymentesítettek és kerekesszékkel könnyen megközelíthetőek. A bútorozott lakások energiafogyasztását minden egységre külön mérjük, független főmérőkkel rendelkeznek, és rendkívül gazdaságosak.
A parkolás ingyenes a föld feletti parkolóhelyeken. A lakások teljesen berendezettek, gépesített konyhával és bútorokkal rendelkeznek, és azonnal beköltözhetők.
A társasház biztonságát riasztó- és kamerarendszer biztosítja. A kapuk vezeték nélküli, motoros, vagy akár távirányítású nyitórendszerrel rendelkeznek. A szerződéskötéshez 2 havi bérleti díj + 1 havi bérleti díj kauciója szükséges. További információért kérjük, hívjon minket!
Felszereltség:
Minden kapcsolat elérhető
Ház /Telek fekvése:
Kehidakustány – Egy termálfürdői idill a Zala-völgyben, közvetlen közel a Balatonhoz
Kehidakustány híres a Kehida Termál gyógy- és élményfürdőjéről: egy tágas termálüdülő beltéri/kültéri medencékkel, csúszdákkal és szaunavilággal – ideális wellnesshez, családoknak és egész évben elérhető fürdőzéshez.
A faluban található a Deák Ferenc Kúria, amely a „Nemzet Bölcsének” állít emléket – egy kis, hangulatos múzeum történelmi környezetben.
kehidakustány.hu
Távolságok (autóval, kb.)
Keszthely (Balaton): ~21 km / ~25 perc (Zalaapáti/Zalacsány útvonalon).
Budapest: ~205 km / ~2–2,5 óra az M7-es autópályán.
Bécs: ~185–190 km / ~2,5–3 óra (A3 → határátkelő, folytassa Sárvár/Zala felé).
Kehidakustány híres a Kehida Termál gyógy- és élményfürdőjéről: egy tágas termálüdülő beltéri/kültéri medencékkel, csúszdákkal és szaunavilággal – ideális wellnesshez, családoknak és egész évben elérhető fürdőzéshez.
A faluban található a Deák Ferenc Kúria, amely a „Nemzet Bölcsének” állít emléket – egy kis, hangulatos múzeum történelmi környezetben.
kehidakustány.hu
Távolságok (autóval, kb.)
Keszthely (Balaton): ~21 km / ~25 perc (Zalaapáti/Zalacsány útvonalon).
Budapest: ~205 km / ~2–2,5 óra az M7-es autópályán.
Bécs: ~185–190 km / ~2,5–3 óra (A3 → határátkelő, folytassa Sárvár/Zala felé).
Egyéb:
🏡 Akár ingatlant szeretne vásárolni Magyarországon, akár eladni: az Immocenter Hungary az Ön hozzáértő és megbízható helyi partnere. Sokéves tapasztalatunkkal, kiváló piaci ismereteinkkel és személyes támogatásunkkal biztonságosan és átláthatóan végigvezetjük Önt a teljes vételi vagy eladási folyamaton.
💡 Tipp: Keresse egyedi A-B-C besorolásunkat ingatlanjaink nevében! A besorolás jelentését részletesen ismertetjük honlapunkon.
✅ Ingatlanellenőrzés – Biztonság vásárlás előtt
Már talált ingatlant, és szeretne biztos lenni abban, hogy az ár és az állapot megfelelő? Okleveles építési szakértőnk alaposan megvizsgálja álmai ingatlanát, és felméri a megfelelő vételárat. Így elkerülheti a költséges meglepetéseket – mert Magyarországon általában az „ahogy láttuk” elv érvényesül, és a hibák miatti utólagos reklamációk aligha érvényesíthetők.
🤝 Egyéni tanácsadás – személyes, független és tisztességes
Ha szeretné, független tanácsadói szerződést köthet velünk – természetesen ez önkéntes és nem kötött egy adott ingatlanhoz. Szolgáltatásunk a következőket tartalmazza:
✔️ Keresési kritériumainak részletes rögzítése személyre szabott keresési profilban
✔️ Megfelelő ingatlanok javaslata – amíg meg nem találja álmai ingatlanát
✔️ Közös megtekintés, beleértve az építési szakértőnk és energetikai tanácsadónk által végzett alapos kockázatértékelést (Hévíz/Keszthely kb. 50 km-es körzetében)
✔️ Támogatás és segítségnyújtás minden vásárlási formaságban
✔️ Németül beszélő közjegyző vagy ügyvéd biztosítása
✔️ Németül beszélő adásvételi szerződés fordításának biztosítása és németül beszélő ügyvéd támogatása
✔️ Támogatás az áram-, gáz-, víz- stb. átjelentkezésében
✔️ Kérésre: megbízható ingatlankezelés távollétében
🌟 Immocenter Hungary – biztonságos, hozzáértő és mindig az Ön mellett.
Alig várjuk, hogy személyesen is találkozhassunk Önnel, és valóra válthassuk álmait egy saját ingatlanról Magyarországon!
💡 Tipp: Keresse egyedi A-B-C besorolásunkat ingatlanjaink nevében! A besorolás jelentését részletesen ismertetjük honlapunkon.
✅ Ingatlanellenőrzés – Biztonság vásárlás előtt
Már talált ingatlant, és szeretne biztos lenni abban, hogy az ár és az állapot megfelelő? Okleveles építési szakértőnk alaposan megvizsgálja álmai ingatlanát, és felméri a megfelelő vételárat. Így elkerülheti a költséges meglepetéseket – mert Magyarországon általában az „ahogy láttuk” elv érvényesül, és a hibák miatti utólagos reklamációk aligha érvényesíthetők.
🤝 Egyéni tanácsadás – személyes, független és tisztességes
Ha szeretné, független tanácsadói szerződést köthet velünk – természetesen ez önkéntes és nem kötött egy adott ingatlanhoz. Szolgáltatásunk a következőket tartalmazza:
✔️ Keresési kritériumainak részletes rögzítése személyre szabott keresési profilban
✔️ Megfelelő ingatlanok javaslata – amíg meg nem találja álmai ingatlanát
✔️ Közös megtekintés, beleértve az építési szakértőnk és energetikai tanácsadónk által végzett alapos kockázatértékelést (Hévíz/Keszthely kb. 50 km-es körzetében)
✔️ Támogatás és segítségnyújtás minden vásárlási formaságban
✔️ Németül beszélő közjegyző vagy ügyvéd biztosítása
✔️ Németül beszélő adásvételi szerződés fordításának biztosítása és németül beszélő ügyvéd támogatása
✔️ Támogatás az áram-, gáz-, víz- stb. átjelentkezésében
✔️ Kérésre: megbízható ingatlankezelés távollétében
🌟 Immocenter Hungary – biztonságos, hozzáértő és mindig az Ön mellett.
Alig várjuk, hogy személyesen is találkozhassunk Önnel, és valóra válthassuk álmait egy saját ingatlanról Magyarországon!
Jutalék:
Vevőként 2,54%-os áfát fizet az ingatlanért a számla bemutatásakor és a vételi szerződés aláírásakor. Ez az ár tartalmazza:
- Az ingatlan-nyilvántartás felülvizsgálata a terhek és a tulajdonosi jogok tekintetében
- Németül beszélő ügyvéd biztosítása (Magyarországon ügyvédek hitelesítik a vételi szerződéseket, nem pedig közjegyzők, mint Németországban)
- A vételi szerződés német fordítása
- Minden közműváltozás, például villany, gáz, víz, szemétszállítás stb.
- Az ingatlan-nyilvántartás felülvizsgálata a terhek és a tulajdonosi jogok tekintetében
- Németül beszélő ügyvéd biztosítása (Magyarországon ügyvédek hitelesítik a vételi szerződéseket, nem pedig közjegyzők, mint Németországban)
- A vételi szerződés német fordítása
- Minden közműváltozás, például villany, gáz, víz, szemétszállítás stb.
Megjegyzés:
Az általunk nyújtott információk az eladó által szolgáltatott információkon alapulnak. Az információk helyességéért és teljességéért semmilyen garancia vagy felelősség nem vállalható. A köztes értékesítés és a hibák fenntartva vannak.
Általános üzleti feltételek:
Hivatkozunk az Általános Szerződési Feltételeinkre. A szolgáltatásaink további használatával kijelenti, hogy tudatában van ennek és egyetértésben van.
Hozzon létre egy ingyenes kérést, és mi automatikusan tájékoztatjuk Önt, ha megfelelő tárgyak érkeznek!
www.immocenter-ungarn.com
www.immocenter-ungarn.com
Die Preisangabe in Euro dient der Orientierung und kann je nach Wechselkurs geringfügig abweichen.
Unsere Preisgestaltung für unsere deutschen und ungarischen Kunden ist identisch
Vissza az ajánlatlistához
































