Objeto 70 de 590
Inmueble siguiente
Inmueble anterior
Volver al resumen
Volver al resumen
Inmueble siguiente
Inmueble anterior
Volver al resumenTürje: Casa que necesita reformas en un entorno tranquilo y armonioso.
Referencia: KK2209
Contacto rápido
Opciones
Opciones
Datos generales
Dirección:
8796 Türje
Región:
Zala
Área:
Área residencial
Precio:
34.400 €
Superficie útil aprox.:
81 m²
Terreno aprox.:
1.060 m²
Cantidad habitaciones:
2
Más datos
Más datos
Tipo de casa:
Casa unifamiliar
Comisionable:
sí
Comisión:
2,42% del precio de compra, IVA incluido.
Cantidad dormitorios:
2
Cantidad baños:
1
Mobiliario:
no
Calidad del mobiliario:
Sencillo
Estado:
Para ser reformado
Calefacción:
Estufa, Radiadores
Tipo de calefacción:
Gas, Madera
Descripción detallada
Descripción detallada
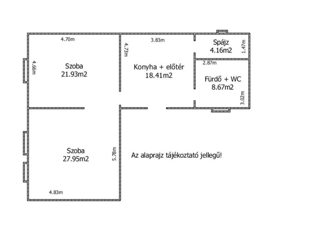
Descripción del inmueble:
- Superficie habitable: 81 m², Superficie del terreno: 1060 m²
- Construcción mixta (ladrillo de arcilla + ladrillo), exterior en buen estado, interior necesita reforma
- Techo de tejas, estructura del tejado en buen estado
- Conexión de agua disponible, tuberías de agua renovadas
- Nueva instalación eléctrica (32 Ah) en la pared exterior, cableado interior de aluminio
- Conexión de gas disponible
- Conexión de alcantarillado en la vivienda
- Dos habitaciones contiguas (también pueden utilizarse como habitaciones independientes), recibidor + cocina, baño con inodoro, despensa
- Calefacción: Convector de gas, chimenea disponible, por lo que también es posible la calefacción mediante estufa/chimenea
- Baño y cocina sin terminar
- Vistas: A la calle
- Pozo en el patio
- No hay otras construcciones anexas en la propiedad, solo un espacio de aproximadamente 1060 m² Caseta de madera abierta de 6 m²
- Amplia sala de estar, ideal para familias, ubicación tranquila, cerca del centro (5-10 minutos a pie)
- La propiedad está en buen estado
- Internet de fibra óptica de alta velocidad y televisión disponibles en la urbanización
- La propiedad puede ocuparse inmediatamente después del pago del precio de compra
¡La estufa que se muestra en la foto no está incluida en el precio de compra!
- Construcción mixta (ladrillo de arcilla + ladrillo), exterior en buen estado, interior necesita reforma
- Techo de tejas, estructura del tejado en buen estado
- Conexión de agua disponible, tuberías de agua renovadas
- Nueva instalación eléctrica (32 Ah) en la pared exterior, cableado interior de aluminio
- Conexión de gas disponible
- Conexión de alcantarillado en la vivienda
- Dos habitaciones contiguas (también pueden utilizarse como habitaciones independientes), recibidor + cocina, baño con inodoro, despensa
- Calefacción: Convector de gas, chimenea disponible, por lo que también es posible la calefacción mediante estufa/chimenea
- Baño y cocina sin terminar
- Vistas: A la calle
- Pozo en el patio
- No hay otras construcciones anexas en la propiedad, solo un espacio de aproximadamente 1060 m² Caseta de madera abierta de 6 m²
- Amplia sala de estar, ideal para familias, ubicación tranquila, cerca del centro (5-10 minutos a pie)
- La propiedad está en buen estado
- Internet de fibra óptica de alta velocidad y televisión disponibles en la urbanización
- La propiedad puede ocuparse inmediatamente después del pago del precio de compra
¡La estufa que se muestra en la foto no está incluida en el precio de compra!
Ubicación:
Excelentes conexiones de transporte: el pueblo cuenta con servicios de autobús y tren.
En Türje encontrará todo lo necesario: tiendas, cajeros automáticos, correos, consultorio médico, farmacia, guardería, jardín de infancia y escuela.
A 5 km de Zalaszentgrót y a 15 km de Sümeg, se encuentra en un pueblo bien cuidado (Keszthely, Tapolca y el lago Balaton están a 30-40 minutos, Zalaegerszeg a 30 minutos y Austria a 1,5-2 horas en coche).
En Türje encontrará todo lo necesario: tiendas, cajeros automáticos, correos, consultorio médico, farmacia, guardería, jardín de infancia y escuela.
A 5 km de Zalaszentgrót y a 15 km de Sümeg, se encuentra en un pueblo bien cuidado (Keszthely, Tapolca y el lago Balaton están a 30-40 minutos, Zalaegerszeg a 30 minutos y Austria a 1,5-2 horas en coche).
Otros:
¿Ha encontrado una propiedad y quiere asegurarse de que el precio y el estado sean los adecuados?
Especialmente en el extranjero, pueden darse casos de precios inflados o defectos ocultos. Nuestro experto en construcción inspecciona la propiedad antes de la compra y le ayuda a evitar riesgos.
Dado que, bajo el principio de "se vende tal cual", las reclamaciones posteriores por defectos son difíciles de hacer valer.
Si lo desea, nuestros servicios adicionales al firmar un contrato de búsqueda incluyen:
- Perfil de búsqueda y sugerencias de propiedades adecuadas
- Visitas conjuntas
- Evaluación del estado y riesgos
- Asistencia durante el proceso de compra
Incluido en la comisión:
- Consulta del registro de la propiedad (gravámenes y titularidad)
- Recomendación de un abogado/notario de habla alemana
- Traducción al alemán del contrato de compraventa
- Transferencia de los servicios de electricidad, agua, gas, recogida de basuras, etc.
- Gestión de la propiedad durante el primer año (si lo solicita)
Nota:
La descripción de la propiedad se basa total o parcialmente en la información proporcionada por el propietario. No asumimos ninguna responsabilidad por la exactitud e integridad de esta información.
¿Le gustaría comercializar profesionalmente su propiedad en Alemania o Hungría?
¡Contáctenos!
Más de 200.000 compradores potenciales ya están esperando su oferta.
Tenga en cuenta que los detalles de la propiedad pueden haber sido creados o modificados mediante inteligencia artificial (IA). Sin embargo, no se han alterado las características esenciales.
Especialmente en el extranjero, pueden darse casos de precios inflados o defectos ocultos. Nuestro experto en construcción inspecciona la propiedad antes de la compra y le ayuda a evitar riesgos.
Dado que, bajo el principio de "se vende tal cual", las reclamaciones posteriores por defectos son difíciles de hacer valer.
Si lo desea, nuestros servicios adicionales al firmar un contrato de búsqueda incluyen:
- Perfil de búsqueda y sugerencias de propiedades adecuadas
- Visitas conjuntas
- Evaluación del estado y riesgos
- Asistencia durante el proceso de compra
Incluido en la comisión:
- Consulta del registro de la propiedad (gravámenes y titularidad)
- Recomendación de un abogado/notario de habla alemana
- Traducción al alemán del contrato de compraventa
- Transferencia de los servicios de electricidad, agua, gas, recogida de basuras, etc.
- Gestión de la propiedad durante el primer año (si lo solicita)
Nota:
La descripción de la propiedad se basa total o parcialmente en la información proporcionada por el propietario. No asumimos ninguna responsabilidad por la exactitud e integridad de esta información.
¿Le gustaría comercializar profesionalmente su propiedad en Alemania o Hungría?
¡Contáctenos!
Más de 200.000 compradores potenciales ya están esperando su oferta.
Tenga en cuenta que los detalles de la propiedad pueden haber sido creados o modificados mediante inteligencia artificial (IA). Sin embargo, no se han alterado las características esenciales.
Comisión:
Como comprador, usted pagará el 2,42% (IVA húngaro incluido) sobre esta propiedad al recibir la factura y firmar el contrato de compraventa. Este precio incluye:
- Verificación del registro de la propiedad para comprobar si existen gravámenes y derechos de propiedad.
- Asesoramiento a un abogado de habla alemana (en Hungría, los abogados autentican los contratos de compraventa, no los notarios como en Alemania).
- Traducción al alemán del contrato de compraventa.
- Transferencia de todos los servicios públicos, como electricidad, gas, agua, recogida de basuras, etc.
- Verificación del registro de la propiedad para comprobar si existen gravámenes y derechos de propiedad.
- Asesoramiento a un abogado de habla alemana (en Hungría, los abogados autentican los contratos de compraventa, no los notarios como en Alemania).
- Traducción al alemán del contrato de compraventa.
- Transferencia de todos los servicios públicos, como electricidad, gas, agua, recogida de basuras, etc.
Nota:
La información proporcionada por nosotros se basa en la información proporcionada por el vendedor o el vendedor. Para la exactitud e integridad de la información, ninguna responsabilidad puede ser aceptada. Una venta intermedia y los errores son reservados.
Condiciones generales:
Nos referimos a nuestros términos y condiciones. A través de más utilizar nuestros servicios usted explicar su conocimiento y consentimiento.
Cree una solicitud gratuita y le informaremos automáticamente cuando lleguen los objetos adecuados.
www.immocenter-ungarn.com
www.immocenter-ungarn.com
Die Preisangabe in Euro dient der Orientierung und kann je nach Wechselkurs geringfügig abweichen.
Unsere Preisgestaltung für unsere deutschen und ungarischen Kunden ist identisch
Volver al resumen
















