Objeto 113 de 590
Inmueble siguiente
Inmueble anterior
Volver al resumen
Volver al resumen
Inmueble siguiente
Inmueble anterior
Volver al resumenSopron: Un complejo de sitios con características únicas
Referencia: IN9413
Contacto rápido
Opciones
Opciones
Datos generales
Dirección:
9400 Sopron
Región:
Gyor-Moson-Sopron
Área:
Área comercial
Precio:
1.615.000 €
Tipo de objeto:
Propiedad industrial
Más datos
Más datos
Comisionable:
sí
Comisión:
1,27% del precio de compra incluido IVA
Terreno aprox.:
5.550 m²
Superficie total:
2.750 m²
Descripción detallada
Descripción detallada
Descripción del inmueble:
Un complejo comercial único para su negocio: ¡Producción, almacenamiento y logística, todo bajo un mismo techo!
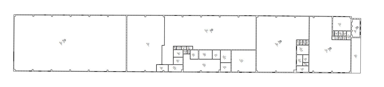
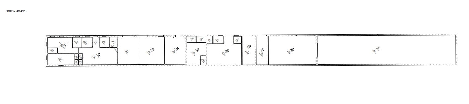
Se vende un local comercial con características excepcionales en una parcela de 5.550 m². Consta de dos naves de producción independientes (1.950 m²) y un almacén (800 m²), con una superficie total de 2.750 m². El inmueble cuenta con todos los servicios y está listo para su uso inmediato, ya sea para producción, logística o almacenamiento.
¿Por qué esta propiedad?
• Espacioso y práctico: Edificios separados para producción y almacenamiento.
• Excelente accesibilidad: Fácil acceso para camiones, ideal para logística.
• Uso versátil: Ideal para fabricantes, distribuidores, empresas de logística e incluso empresas agrícolas.
¿Para quién es ideal esta propiedad?
- Empresas manufactureras que buscan establecer o ampliar su propia planta.
- Empresas de logística que buscan una ubicación regional para su almacén.
- Empresas comerciales con altos requerimientos de inventario.
- Para empresas constructoras que buscan una ubicación adecuada para almacenar maquinaria y materiales.
Para negocios agrícolas que requieren capacidad de procesamiento o almacenamiento.
¿Por qué mudarse ahora?
La demanda de inmuebles comerciales está en constante aumento, especialmente para espacios versátiles con excelentes condiciones. ¡Aproveche esta oportunidad y gestione su negocio en una ubicación que se adapte perfectamente a sus necesidades!
CARACTERÍSTICAS CLAVE DE LA PROPIEDAD
Zonificación:
La propiedad está clasificada como zona comercial y de servicios Gksz-6 dentro del límite urbano.
Superficie del terreno: 5550 m²
Superficie total (neta): 1950 + 800 = 2750 m²
Superficie útil (reducida): 2750 m²
Servicios: Totalmente equipado: agua, electricidad, alcantarillado, conexión a la red pública, calefacción: caldera mixta de gas, aire acondicionado (frío/calor).
Uso actual: Terreno
I. Nave de 1950 m² con área de almacenamiento y producción
II. 800 m² – Nave de producción y almacenamiento
¡Oportunidad de inversión con inquilinos y negocios existentes!
La propiedad consta de varias unidades, actualmente arrendadas a inquilinos estables a largo plazo. Es una excelente oportunidad para inversores que buscan ingresos inmediatos y continuos y desean mantener el contrato de arrendamiento actual.
La propiedad se puede adquirir junto con la empresa propietaria, lo que garantiza una transferencia de propiedad fluida y sin complicaciones.
Se vende un local comercial con características excepcionales en una parcela de 5.550 m². Consta de dos naves de producción independientes (1.950 m²) y un almacén (800 m²), con una superficie total de 2.750 m². El inmueble cuenta con todos los servicios y está listo para su uso inmediato, ya sea para producción, logística o almacenamiento.
¿Por qué esta propiedad?
• Espacioso y práctico: Edificios separados para producción y almacenamiento.
• Excelente accesibilidad: Fácil acceso para camiones, ideal para logística.
• Uso versátil: Ideal para fabricantes, distribuidores, empresas de logística e incluso empresas agrícolas.
¿Para quién es ideal esta propiedad?
- Empresas manufactureras que buscan establecer o ampliar su propia planta.
- Empresas de logística que buscan una ubicación regional para su almacén.
- Empresas comerciales con altos requerimientos de inventario.
- Para empresas constructoras que buscan una ubicación adecuada para almacenar maquinaria y materiales.
Para negocios agrícolas que requieren capacidad de procesamiento o almacenamiento.
¿Por qué mudarse ahora?
La demanda de inmuebles comerciales está en constante aumento, especialmente para espacios versátiles con excelentes condiciones. ¡Aproveche esta oportunidad y gestione su negocio en una ubicación que se adapte perfectamente a sus necesidades!
CARACTERÍSTICAS CLAVE DE LA PROPIEDAD
Zonificación:
La propiedad está clasificada como zona comercial y de servicios Gksz-6 dentro del límite urbano.
Superficie del terreno: 5550 m²
Superficie total (neta): 1950 + 800 = 2750 m²
Superficie útil (reducida): 2750 m²
Servicios: Totalmente equipado: agua, electricidad, alcantarillado, conexión a la red pública, calefacción: caldera mixta de gas, aire acondicionado (frío/calor).
Uso actual: Terreno
I. Nave de 1950 m² con área de almacenamiento y producción
II. 800 m² – Nave de producción y almacenamiento
¡Oportunidad de inversión con inquilinos y negocios existentes!
La propiedad consta de varias unidades, actualmente arrendadas a inquilinos estables a largo plazo. Es una excelente oportunidad para inversores que buscan ingresos inmediatos y continuos y desean mantener el contrato de arrendamiento actual.
La propiedad se puede adquirir junto con la empresa propietaria, lo que garantiza una transferencia de propiedad fluida y sin complicaciones.
Equipamiento:
Completamente
Ubicación:
Desde Sopron, Budapest, por la autopista M1 y las carreteras principales 85 y 84
en coche, autobús o tren.
La propiedad se encuentra al noroeste de la ciudad, en un polígono industrial consolidado.
En las inmediaciones se encuentran empresas manufactureras, comerciales y de servicios. La zona es fácilmente accesible en coche, camión o transporte público.
Los edificios no dan directamente a la calle.
La estación de tren está a unos 2500 m y la parada de autobús a 200 m. Se puede llegar al centro de la ciudad en coche en pocos minutos.
en coche, autobús o tren.
La propiedad se encuentra al noroeste de la ciudad, en un polígono industrial consolidado.
En las inmediaciones se encuentran empresas manufactureras, comerciales y de servicios. La zona es fácilmente accesible en coche, camión o transporte público.
Los edificios no dan directamente a la calle.
La estación de tren está a unos 2500 m y la parada de autobús a 200 m. Se puede llegar al centro de la ciudad en coche en pocos minutos.
Otros:
Si busca comprar o vender una propiedad en Hungría, Immocenter Hungría es su socio competente y de confianza. Gracias a nuestros años de experiencia, excelente conocimiento del mercado y servicio personalizado, le guiamos de forma segura y transparente durante todo el proceso de compraventa.
Consejo: ¡Busque nuestra exclusiva clasificación A-B-C en el título de nuestras propiedades! Encontrará una explicación detallada de esta clasificación en nuestra página web.
Inspección de la propiedad: tranquilidad antes de comprar
¿Ya ha encontrado una propiedad y quiere asegurarse de que el precio y el estado sean los adecuados? Nuestro perito inmobiliario certificado inspeccionará minuciosamente la propiedad que desea y evaluará un precio de compra justo. De esta forma, evitará sorpresas costosas, ya que en Hungría se aplica generalmente el principio de "venta tal como se ve" y las reclamaciones posteriores por defectos son difíciles de hacer valer.
Consulta individual: personal, independiente y justa
Si lo desea, puede firmar un contrato de consultoría independiente con nosotros, totalmente voluntario y sin vinculación a ninguna propiedad específica. Nuestros servicios incluyen:
- Registro detallado de sus criterios de búsqueda en un perfil de búsqueda personalizado
- Sugerencias de propiedades adecuadas hasta encontrar la ideal
- Visitas conjuntas con una evaluación exhaustiva de riesgos por parte de nuestro perito en edificación y asesor energético (en un radio aproximado de 50 km alrededor de Hévíz/Keszthely)
- Asistencia con todos los trámites de compraventa
- Referencia a un notario o abogado de habla alemana
- Entrega de una traducción al alemán del contrato de compraventa y asistencia de un abogado de habla alemana
- Asistencia con la transferencia de suministros (electricidad, gas, agua, etc.)
- Si lo solicita: gestión fiable de la propiedad durante su ausencia
Immocenter Hungría: seguro, competente y siempre a su lado.
¡Esperamos conocerle personalmente y hacer realidad su sueño de tener una propiedad en Hungría!
Consejo: ¡Busque nuestra exclusiva clasificación A-B-C en el título de nuestras propiedades! Encontrará una explicación detallada de esta clasificación en nuestra página web.
Inspección de la propiedad: tranquilidad antes de comprar
¿Ya ha encontrado una propiedad y quiere asegurarse de que el precio y el estado sean los adecuados? Nuestro perito inmobiliario certificado inspeccionará minuciosamente la propiedad que desea y evaluará un precio de compra justo. De esta forma, evitará sorpresas costosas, ya que en Hungría se aplica generalmente el principio de "venta tal como se ve" y las reclamaciones posteriores por defectos son difíciles de hacer valer.
Consulta individual: personal, independiente y justa
Si lo desea, puede firmar un contrato de consultoría independiente con nosotros, totalmente voluntario y sin vinculación a ninguna propiedad específica. Nuestros servicios incluyen:
- Registro detallado de sus criterios de búsqueda en un perfil de búsqueda personalizado
- Sugerencias de propiedades adecuadas hasta encontrar la ideal
- Visitas conjuntas con una evaluación exhaustiva de riesgos por parte de nuestro perito en edificación y asesor energético (en un radio aproximado de 50 km alrededor de Hévíz/Keszthely)
- Asistencia con todos los trámites de compraventa
- Referencia a un notario o abogado de habla alemana
- Entrega de una traducción al alemán del contrato de compraventa y asistencia de un abogado de habla alemana
- Asistencia con la transferencia de suministros (electricidad, gas, agua, etc.)
- Si lo solicita: gestión fiable de la propiedad durante su ausencia
Immocenter Hungría: seguro, competente y siempre a su lado.
¡Esperamos conocerle personalmente y hacer realidad su sueño de tener una propiedad en Hungría!
Comisión:
Como comprador, pagará el 2,54% (IVA húngaro incluido) por esta propiedad al facturar y firmar el contrato de compraventa. Este precio incluye:
- Verificación del registro de la propiedad para comprobar si existen gravámenes y derechos de propiedad
- Referencia a un abogado de habla alemana (en Hungría, los abogados autentican los contratos de compraventa, no los notarios, como en Alemania)
- Una traducción al alemán del contrato de compraventa
- Todos los gastos de suministros como electricidad, gas, agua, gestión de residuos, etc.
- Verificación del registro de la propiedad para comprobar si existen gravámenes y derechos de propiedad
- Referencia a un abogado de habla alemana (en Hungría, los abogados autentican los contratos de compraventa, no los notarios, como en Alemania)
- Una traducción al alemán del contrato de compraventa
- Todos los gastos de suministros como electricidad, gas, agua, gestión de residuos, etc.
Nota:
La información proporcionada por nosotros se basa en la información proporcionada por el vendedor o el vendedor. Para la exactitud e integridad de la información, ninguna responsabilidad puede ser aceptada. Una venta intermedia y los errores son reservados.
Condiciones generales:
Nos referimos a nuestros términos y condiciones. A través de más utilizar nuestros servicios usted explicar su conocimiento y consentimiento.
Cree una solicitud gratuita y le informaremos automáticamente cuando lleguen los objetos adecuados.
www.immocenter-ungarn.com
www.immocenter-ungarn.com
Die Preisangabe in Euro dient der Orientierung und kann je nach Wechselkurs geringfügig abweichen.
Unsere Preisgestaltung für unsere deutschen und ungarischen Kunden ist identisch
Volver al resumen









